前言:
业主在找到我们之前,结合旧屋居住时的居家生活习惯和痛点,对新家的各个空间规划重点,以及自己想要的生活环境细节等,都有了比较明确的想法了。比如想要一面玻璃砖装饰墙、客厅需要开放式的书桌、小孩房、厨房的收纳不够等,从前期洽谈开始到落地过程中的整个沟通效率是很高的,提出问题,发现问题,解决问题,是一次充分感受到信任的合作。
本案的设计改造重点,主要集中在收纳设计、门厅+小孩房原有空间尺度动线的调整、厨房+餐厅的空间优化、灯光设计等,可以说是细节干货满满。整体装饰以水泥灰地砖+白色柜门+少量木色,形成简约大方的居家氛围。
整个家沉稳、安静,三餐四季、植物萦绕,无疑家成为了最舒适的避风港。
阅读顺序:图片在上,文字说明在图片下方。
原始结构图:
原始户型结构是比较优秀的,除了厨房和南次卧的尺度不能完全满足收纳、生活需求外(后期的改造重点),1.63米开间的双阳台,7.16米开间的大横厅、3.59米开间的主卧,尺度都相当优秀,内卫也方正且面积达到了6.6平方,这在同类型毛坯中是比较少见的。南北通风,采光也很好。层高通过敲除原始地坪,总高增加了8公分,给无主灯设计创造了条件。
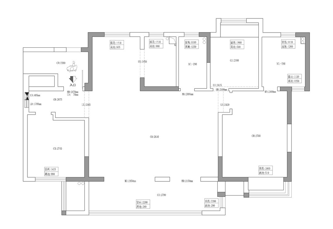
优化后平面:
1、门厅划分一部分空间给到小孩房做补充收纳
2、优化原小孩房房门对着入户门,风水、生活动线上的不适感,调整开门方向,同时设置学习区和重组的收纳区
3、厨房的改造,功能延申到餐厅部分,增加了餐边柜
4、主卧改变床头方向后,床对面整面衣柜+化妆区域,增加了储物面积,同时避开卫生间门对床问题
5、客厅沙发后砌半墙,做空间分隔,视觉也更洗练
BEFORE:
1、原始门厅结构松散,走道空间浪费。
2、次卧孩子房需要经过门厅才能到达餐客厅、卫生间等区域、动线不合理,也不利于家人之间的互动,同时原始结构孩子房只能放下一组衣柜,没有单独的学习区域
AFTER:
1、 门厅的一半给次卧使用,定制L型门厅柜。进门右侧有换鞋区(深度40公分)、挂衣区、拖鞋区,钥匙摆放区、备用烘鞋机插座。
2、正对入户门的收纳柜,2扇是可使用的柜门,另外2扇是从次卧打开,给次卧使用的收纳。
门板嵌入竖向感应灯带,使得门厅区域既功能圆满又有细节勾勒,成为整体设计的一部分。
客厅是全家人的共享空间,拆除原阳台移门,阳台纳入客厅空间。划分为沙发休闲区、开放式书房、阳台区域一侧为家务区,一侧为业主最喜欢的绿植区。
钢琴旁的高柜里还收纳了一个专门的零食柜哦。上方的开放格可以放书籍,开放格底部加装了阅读灯,方便看琴谱。顶面设计了L型灯带延申到餐厅区域,空间也有了视觉导向。
书桌是网上采购的书桌脚,桌面木作方提供,现场组装的,成本节约了一半。
半高墙的高度提前计算好,不高也不矮,兼顾两侧的沙发高度、书桌+轨道插的高度。
卫生间玻璃砖+弧形门洞施工:1、计算好玻璃砖总高度,厚度,先做干区平顶,高度低于玻璃砖总高5公分。2,砌一部分砖墙 3、做外侧弧形造型 4、分3次,把玻璃砖墙砌完。顶部和侧面都有受力点,再打胶收口就牢拉。
阳台望向客厅
厨房移门是极简边框吊轨移门,木工阶段预留好轨道槽,做好加固即可。
平时不用的时候收在墙体后侧。
移门需要时可以拉出来。墙面乳胶漆色号:立邦蛋清
餐厅望向厨房,进厨房的墙体原来是直角,通过准确计算后,重新设计了斜角墙体。
既满足了移门的暗藏需求,又让进厨房的时候,角度扩大行进舒适感,是很有巧思的设计。业主也非常喜欢。
主卧墙面立邦杏子灰,真的是yyds ,各种场景都能融入,床头不对称小吊顶品质感很好。
床对面一排衣柜,过道还有83公分
床头一侧做了弧形墙,更有包裹感
床的颜色是看图片选的,最终窗帘、乳胶漆和床的颜色还是很协调统一。
镜子大小和窗洞大小基本一致。原窗洞更宽,设计图纸阶段计算好窗洞宽度,缩小比例。餐厅窗户也是同理,否则冰箱会挡住窗,影响开窗和形成卫生死角
下沉淋浴房地砖铺贴角度同淋浴房角度一致,砖需要提前计算好尺寸到加工厂做加工
主卫一角
最后,还是祝福,业主一家在新居里,顺风顺水,阖家幸福!
相关案例推荐
无锡不知设计事务所
设计师相关作品

粤公网安备 44010602000156号