前言:
本案的整体风格以现代简约和侘寂风相结合,日式的舒适整洁加上实用简约的功能设计,使空间的整体视觉既不会过于清冷单薄也不会只服务于功能。
色彩上整体采用柔和温暖的暖调卡其色,让家给人更多的温暖、柔美、自由的氛围感。
整体的空间造型极为简洁流畅,清晰的线条、结构的突出、几何的运用让设计可以多角度融合展示。注重实用收纳、结构呼应、审美性和自然性。
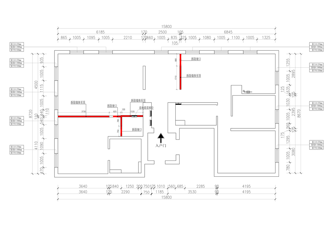
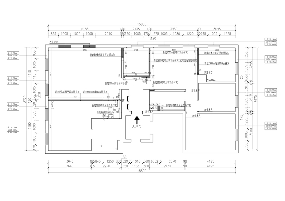
【拆改说明】:
本案的楼体结构很有特点,因此在结构上受到很多的改动限制,我们在避免影响主结构的同时尽最大可能满足业主的生活需求。
1、为了满足业主不减少卧室的前提下增加一个书房的需求,我们将客厅和餐厨中间的部分做了一个相对独立的隔间,作为书房使用。
2、我们将主卧的小衣帽间打开并平移主卧入户门位置,让客厅墙面更完整,也为定制柜设计做好基础,让主卧内的空间更加规整实用。
3、原来的开放式厨房我们利用玻璃推拉门做了半封闭,避免安全隐患同时也切断油烟扩散问题。
入户是一个狭长的过道,为了弱化过道的局促感,入户正对的墙面我们做了栅栏设计,利用透光原理和结构厚度的变化来丰富入户玄关的视觉,同时也可以做到一定的补充光。
入户门外有鞋柜储物,玄关空间只保留了过道功能和装饰功能,没有加宽储物。
沙发墙
地板
地毯
装饰画
灯具
客厅
艺术漆
沙发
侘寂
饰品
窗帘
客厅的整体色彩选用了 原木、白色、卡其、沙色等中性偏暖的色彩,质朴的自然肌理和白色基底相互融合,素雅大方,同一色调内的不同变换也让空间不失内敛的层次感。
沙发墙
绿植
地板
地毯
装饰画
客厅
艺术漆
沙发
侘寂
饰品
窗帘
相对精简的装饰,注重实用的舒适,去除不必要的修饰后生活更加有朴素和自然的质感。
沙发墙
地板
地毯
灯具
客厅
沙发
侘寂
电视墙
电视柜
窗帘
皮质沙发的蓬松,短绒地毯的柔软,原木地板的自然脚感,让客厅的每一处落脚都是轻柔的、暖绵的。
沙发墙
地板
装饰画
地毯
艺术漆
饰品
绿植
客厅
灯具
沙发
侘寂
电视柜
电视墙
因为顶暖结构的限制,想做散点光但又不能随便施工。因此我们在内嵌灯槽时选择了定向打孔,是对设计和施工的精准度的考验。
客厅空间选择了很多亚光和吸光设计,利用材质本身的肌理效果来弱化自然光,调整居室的光感。
除去繁复的花样造型,肌理带来的装饰效果,更简约,更舒适,更纯粹。是一种低调的深入骨髓的气质美。
由于户型主体结构的影响,电视墙有一定的斜角,我们则通过用定制柜将其调整到最佳舒适角度。
隐形门设计也是尽量减少墙面的视觉破碎感。而一侧的格栅弧度造型,让整体的墙面有了一个自由流畅的过度。
绿植
沙发墙
地板
灯具
客厅
沙发
艺术漆
侘寂
饰品
窗帘
业主选择了一款较大较为舒适的沙发,为了不让沙发过于突兀,在其它配饰上,我们也是尽可能的来调整整体视觉,达到好的使用效果和审美相结合。
“简约温馨,舒适自由”是卧室设计的重点,所以空间内没有过多的装饰。软绵的沙发床、简约的梳妆台、单薄的衣帽架,一切以简出发,落点舒适实用。
主卧套间原本有一个小衣帽间,储物力不够且实用性不高,我们改变入户门位置后将其拆除,选择在整屋床尾处加入定制柜,扩大储物,优化空间结构。
定制柜
艺术品
灯具
侘寂
镜子
床品
床
床头柜
卧室
窗帘
地板
定制柜
灯具
侘寂
床品
饰品
床
衣柜
床头柜
卧室
窗帘
根据业主的习惯,我们在定制柜中间掏空嵌入电视,让卧室也具备观影条件。
地板
定制柜
灯具
侘寂
镜子
床品
饰品
衣柜
床
床头柜
卧室
实木地板,原木色储物柜,卡其色床品,所有的色彩统一相融,释放着暖暖的温度,让卧室色彩更柔和安神。
绿植
餐椅
餐厅
烛台
装饰画
餐桌
灯具
餐边柜
侘寂
饰品
橱柜
餐厅虽是相对独立的但没有一处墙壁的阻隔,只借助空间结构达到独立效果。
特意选择了岛台餐桌设计,一方面增加一个餐厅的置物台台面和台下都多了储物力。另一方面也是将烤箱移出,日常做一些小甜点更便捷。
透过百叶窗映入室内的剪影斜阳,是自然给予生活的闲适美妙。残影绰绰,暖溢满室。
餐厅吊灯选了FLOS款的玻璃制吊灯,非常通透轻盈。
相关案例推荐
言叙空间设计
设计师相关作品

粤公网安备 44010602000156号