前言:
这个家是一对90后小夫妻的温暖新居,舒适的大两居有足够充盈的使用空间,他们不需要太多繁缛的修饰,不需要太过杂乱的空间。温馨、舒适、实用、长久,是他们给出的家的定义。
因此,我们将原本过于拙笨的中式红木风格全部推翻,从实用与舒适性出发,以浅暖色调为基础,结合业主对储物的需求,并结合他们的生活习惯,给出一个自由舒适的、简约实用的北欧现代风家居生活空间。
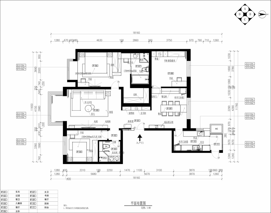
本案是精装房,整体户型格局很好,南北通透,格局也比较周正并且大多为承重墙,因此我们并没有做太多的格局变化,而是根据需求做了局部的调整。
我们将主卧内的卫生间重新进行布局,在卫生间外侧再增加一个开放式的衣帽化妆间,满足业主对衣帽储物和独立梳妆台的需求,并扩展了卫生间的使用便捷度。
本案的入户门开在中间,所以功能分区以左右分部,为了不遮挡采光和通风,我们并没有做独立的或半遮挡的玄关空间,而是选择做开放式玄关。
利用凸出的墙体结构做了一组定制的中轴对称玄关柜,让入户视觉既简约舒适又有美感,而且能保证充足的隐形玄关储物。
本案整体设计的出发点是温馨实用、舒适放松,因此我们并们有做过多的装饰手法,而是利用材质、灯光、色调来进行减法设计。去除浓重的装饰气息,回归朴实干净的生活氛围。
客厅空间保留最大自由空间,全屋整铺的实木地板,两侧靠墙空间布局,暖白的长方地毯和简约的定制电视柜,让空间更加整洁纯粹。
悬吊定制电视柜和置物架的搭配,简约实用,配合线条灯带的装饰,既给了墙面前后的层次和光影效果又不会过分曾将修饰感。
客厅悬浮吊灯的设计,在整体的顶面视觉上是简单干净的,但在细看后中间的内嵌、边缘的凹陷,让顶面简约中多了细腻的层次。
月球灯,一个很浪漫的地灯饰品,给阳台多了一些时尚和浪漫。
沙发背景墙选择了木饰面拼接设计,刚好将卧室的隐形门藏匿于其中,简单的块面分割让墙面有变化但不突显。配上深咖色的窗帘盒翠绿的盆栽植物,清新舒适。
客厅阳台没有很大,所以没有做单独的设计,而是将其融入到客厅内,延伸客厅的视觉,并让客厅空间更为通透明亮。
在灯光的选择上,我们用散点光源的柔和感增加居室的温馨氛围,内嵌筒灯和线性灯带的暖光结合,再加上磁吸灯是时尚元素,打造出多重变化、柔和自然的舒适光感氛围。
全屋的黑色踢脚线没有选择与地面或是墙面相近的颜色,而是做了一个与门框同色同款的设计,让整个室内空间的墙面都有了视觉延伸,形成墙面的另一种装饰。
家里的很多开放式垭口都做了弧角的过度,不是方正锐利的横切,也没有达到完全半圆的曲线,给人更柔和的视觉感受。
餐厅是开放性的布局,不做封闭空间,让整体的客厅、玄关和厨房可以有良好的空气能循环流通。
餐厅空间没有做西厨准备,橱柜也是用来基础储物,岛台餐桌的岛台石材部分也是用于简单的装饰,整体的简约也是和业主的生活习惯息息相关。
简约的岛台餐桌、按压式沙色橱柜、精致的餐厅吊灯,让餐厨空间既精致简约又实用舒适。散发着低调的、温和的、高贵的气质。
餐厅吊顶是我们推荐的一个品牌,【中山】,比较小众的一个品牌,但是他柔和的光感,中式粉彩水墨的淡雅,简约的造型,与餐厅的整体氛围非常合拍,还略微加入了一些国风淡彩的儒雅。
简约壁灯设计与餐厅吸顶灯形成了餐厅的氛围光源,让灯光有多种层次和变化。餐厨空间我们选择用隐形门做链接,不破坏餐厅的整体简约感,将门隐于橱柜一侧。
厨房面积不是很大,外侧还做了生活阳台。所以我们将一部分的储物转移到餐厅,而厨房内保留最基本的需求。
橱柜选择的磨砂烤漆饰面,大块的大理石纹贴砖,让厨房更有品质感。
主卧的入户门为了不影响客厅整体的简约感,选择了隐形门设计,藏于墙面。
主卧套间整体采用暖杏色和实木地板结合,加入同色系的深调的咖色。打造一个柔软、唯美、优雅的空间。更能让紧绷的精神得到放松,有效提高睡眠质量。
主卧床头选用烤漆墙板,利用简单的线条做装饰。边侧还做的弧度处理与柜体流畅的衔接,增加视觉的延伸感。
卧室休息区和衣帽间没有加建墙面,而是用通顶暗色玻璃衣柜来做隔断,既做到了视觉隔断效果又扩大了储物力。
暗色玻璃衣帽柜的材质选择,有光感却不透明,能减弱柜子对卧室的视觉空间压缩感。
业主也是个盲盒控,钟爱POP MART,钟爱Molly,所以我们在衣柜转角对门的侧面加了一组展示格柜,用业主的收藏爱好做加的独特装饰。
地面鱼骨拼,有视觉引导的作用。
衣帽间其实有两部分组成,一部分入户门后侧较为封闭的衣帽间,另一部分就是在卫生间外侧利用定制柜新增加出来的一部分衣帽间。调整后的主卧衣帽间有更大更便捷的储物和使用功能,卫生间的动线也得到了很好的优化。
地面的嵌铜处理是一个比较有特点的装饰手法,为了能让衣帽间与卧室、卫生间能衔接的更为舒适并且增加衣帽间的视觉空间感,所以采用类似的瓷砖铺贴方式嵌入铜条装饰。
另一部的衣帽间保持黑色玻璃推拉门的设计,存放换季后的衣物。
主卫空间和衣帽间是平行相连的,纵向的空间分部为了不让开门占用空间,我们在衣帽间和主卫中间做了一道推拉栅栏门。既实用有装饰性。
深褐色的栅栏门刚好和暗色玻璃衣帽柜色系统一,视觉更为统一。
在细节设计上,主卫洗手池选择做隐藏墙排水和一体式定制台面,简洁中更有品质感。mini洗衣机、马桶旁的插座预留都是让生活更便捷的小心思。
浴缸与淋浴间的双设计,是满足业主的更多使用需求,同时享受生活。
相关案例推荐
言叙空间设计
设计师相关作品

粤公网安备 44010602000156号