前言: 丰富的色彩,将个性鲜明的特点通过空间展示,以趣味性的混搭设计语言,打造极具风格的个性化居家空间。
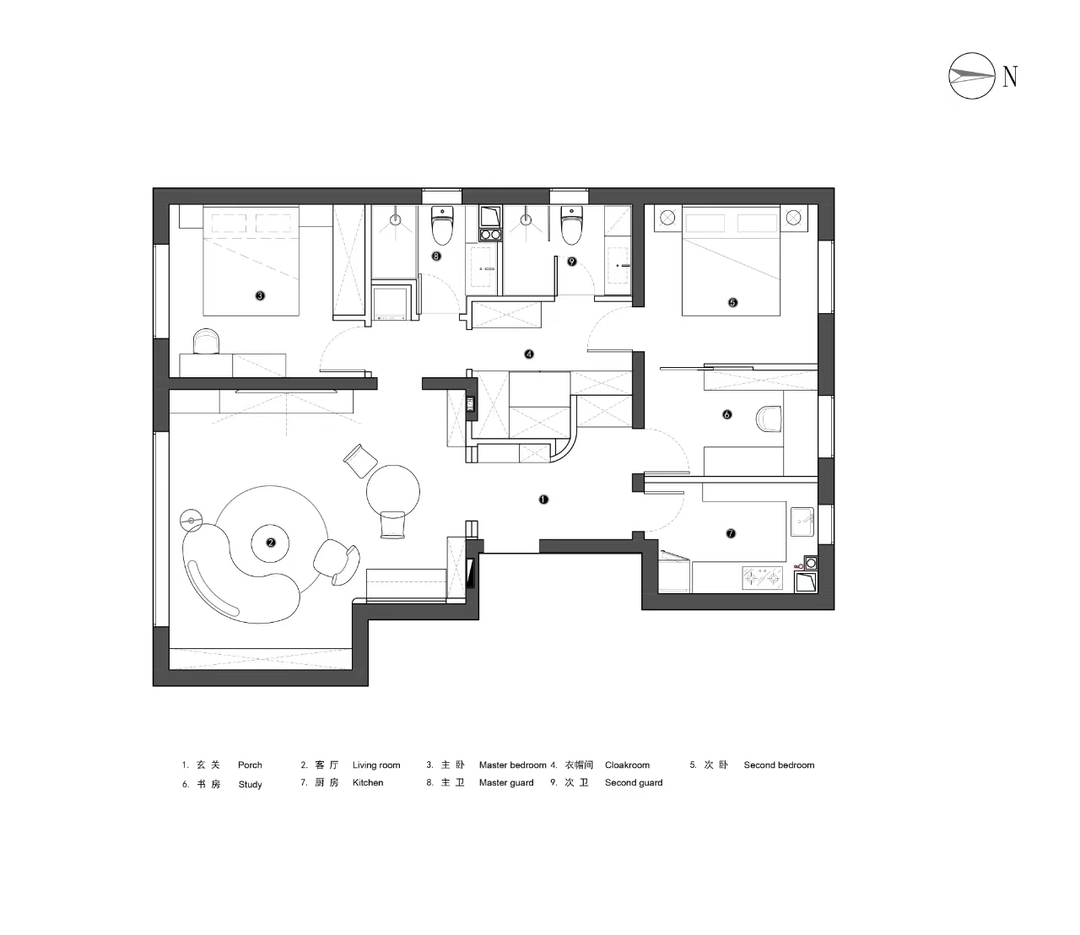
户型图
改造前原始户型存在问题:
1.空间动线不流畅
2.三间卧室格局不能满足业主居住需求
改造后:
1.优化空间动线,以储物间为核心形成洄游动线
2.北向两间卧室“二合一”,形成书房+休息区套间形式
3.优化玄关布局,增加入户玄关收纳
玄关
洄游动线是空间优化后业主最满意的点之一,玄关空间作为洄游动线中心点的组成部分,也为归家后顺畅自由揭开序幕。
客厅
丰富的色彩,将个性鲜明的特点通过空间展示,以趣味性的混搭设计语言,打造极具风格的个性化居家空间。将客厅的“灰色”区域作为业主个性的延伸,浪漫的钢琴与潮玩手办的完美融洽,确保每一件物品都有一份专属的叙事空间。
不拘泥于传统形式,空间整体配色以浅暖灰打底,搭配鹅黄,灰蓝,浅草绿并点缀些许玫红色,马卡龙式的配色使得色彩并没有很鲜艳,反而带来些许温暖和谐的空间氛围。
卧室
因为女主是文学专业,需要独立的书房用于办公以及收纳大量书籍。将北向两间卧室“二合一”,形成书房+休息区套间形式,满足业主个性化居住需求。
卧室的主色调并没有脱离主要的色调,与客厅空间相似,但在床品与部分家具的色调添加部分深色调,将氛围沉稳下来,更加适合休憩的状态。
相关案例推荐
网友评论
云深空间设计事务所
设计师相关作品

粤公网安备 44010602000156号