前言:
遇到 业主 是在去年此时,历经一年终于拍了成品照片;在沟通之初就有十分明确的居住需求,例如客厅功能划分,厨房电器规划,衣帽间等等;审美好的业主对于设计师可遇而不可求,遇到女主可以说是斯人若彩虹,遇上方知有。她喜欢复古风稍偏简约型,先生喜欢中古风,于是就有了这一套简约复古的家;一路走来,感谢信任和理解。我们相信,只要初心不变,就一定会迎来美好的结局!
主案设计师:子衿
施工单位:北京云深装饰有限公司
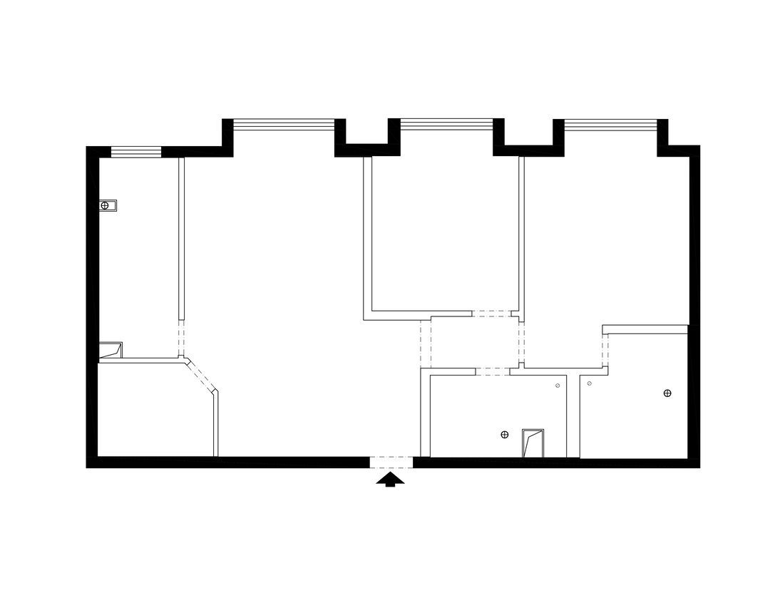
原始的户型采光优秀,大格局工整,但是左下角隔出的一小间既无采光又破坏了客厅的整体性,两个卧室和两个卫生间通过一个甬道连接,卧室与卫生间的门口相对,浪费了大量空间
改造后布局: 1.利用户型本身打造半开放式玄关,集中衣物、鞋帽收纳,仪容整理等功能; 2.客餐厅一体,动线平行; 3.拆除原有储藏间,扩大厨房面积,在业主原有需求下橱柜增加至U型,美观的同时兼顾实用收纳功能; 4.厨房半墙,打造真正“明厨”; 5.重新规划卧室与卫生间的格局,实现干湿三分离;卧室联通衣帽间,满足业主储物收纳需求。
业主喜好的暖黄色和墨绿色在客厅空间得到了淋漓尽致的体现,大面积的绿色搭配做旧木色的家具,复古的味道油然而生;
相比电视墙面克制的墨绿色,沙发面整体色调要更加温暖。半围坐式的客厅空间搭配一张做旧的暗纹地毯,感觉是乘坐时光机穿越到了1940年代。
半高的墙面与电视墙齐平,沙发坐落正中央,落地灯与小边几两边排开,惬意舒适。
棕色的皮革沙发充满质感的折纸落地灯像一位老上海的绝世名伶坐在旁边;几何纹理的抱枕与猴子托盘增添了几分俏皮;赭石色天鹅绒窗帘搭配柔光纱帘,阳关轻轻洒进来。“这样的午后,就想坐在这沙发上美美的喝个下午茶。”
弧形的过道门侧面的白色形成错觉,好像是一面镜子,进入了纪念碑谷的世界。滴答滴答~复古的皮质挂钟带来岁月的质感。
厨房拼色的小地砖、白色巧克力墙砖、铜质把手延续了复古的风格,在保证宽度的前提下增加一排柜体,增加储物。厨房与客厅的墙体减至半高,用黑色铁艺隔断与玻璃隔开,最大限度地让光线穿过,客厅与厨房互相受益,更加明亮。
原有的小储物间被规划进了厨房,设计师创造性的安装了窗帘折叠门,不占用任何多余空间而起到遮挡的作用,一举两得。
为了延续复古的风格,设计师并没有设计过多的嵌入式柜体,而是通过单个柜子的错落摆放实现了收纳的要求。
深色桃木的地板与踢脚线与餐边柜颜色呼应,凸显的厚重感和 &tradition flowerpot 吊灯看似风格碰撞,却流露出恬静;
黑色木纹的实木拼接桌在维也纳椅和温莎椅的衬托下被灯光照射散发出原木的温暖;几幅不规则搭配的装饰画体现了业主的喜好与审美。
脚步轻转,来到了改造后的 #卫生间
经过三分离设计的卫生间,洗漱区域在通道右侧,使用起来方便卫生。#卫生间 #洗手柜 #花砖
马桶后方大胆采用了防水乳胶漆落地,给卫生间增加一些活泼的可能。
厕所与洗浴的功能区也实现了干湿分离,磨砂长虹玻璃、人字拼墨绿巧克力砖、竖拼壁龛处处体现了复古的小心机。
繁花纹路的主灯与中古式的琉璃灯材质统一,深色柚木的床体符合男主人的喜好。
静谧的海蓝色墙壁点缀一台金色的圆形壁灯似夜空圆月,很适合卧室的气氛。
卧室内衣帽间采用滑动谷仓门,不需要普通门体开关所需要的空间,可以把空间完全留给储物收纳,非常实用。
相关案例推荐
云深空间设计事务所
设计师相关作品

粤公网安备 44010602000156号