前言: 一个人只拥有此生此世是不够的,他还应该拥有诗意的世界。生活的仪式感来提醒我们,除了眼前的苟且,还可以盼望诗和远方。把自己喜欢的一切都放进自己的房子,不为悦人,只开心自己。
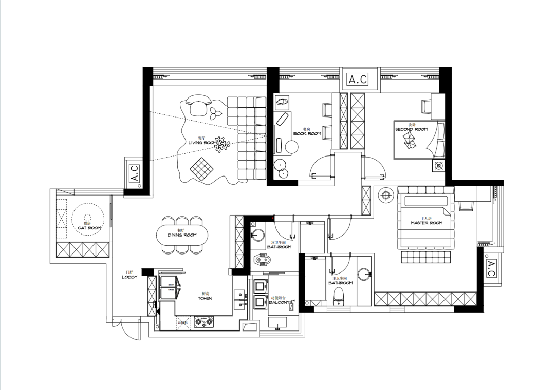
原始图——
业主诉求:
1.目前是小两口常住,主卧希望宽敞舒适。
2.需要一个备用卧室,以便不时之需。
3.空间开阔宽敞、收纳多。
结构改造——
1.由于是旧房改造案例,所以设计上还是变动较大,将次卫的空间分一半出来,分别给厨房和生活阳台,这样多出了独立的晾晒空间,还互不影响。
2.将门厅改造成猫房+工具杂物柜。美观的同时更是增加了收纳空间。猫猫的活动空间也更大。
3.厨房做可开可合推拉门,与开放式餐厅连接又独立,餐厅外面紧接着客厅,整个空间被光照耀,显得又大又敞亮!会客、玩耍、工作等等都可以轻松进行。
4.套房是常规配置,业主的主卧较大,经过改造后收纳空间绰绰有余,除了主卧,其他空间也预留了足够多的收纳空间。
在设计上,大面积采用柔和的奶白色,再搭配米色的沙发、美拉德色系的茶几和地毯,以及充满原创感的落地灯;低饱和度的挂画、自然感的坐垫和单椅作点缀,升华和对比的视觉并不冲突,反倒让空间更加灵动。
特有的空间氛围往往牵引着生活的情趣,在满墙大白中,选取四角,将其塑造为电视,赋之大理石地台,增强感官层次,也形成独立的功能体块。最大化做到在有限的空间里尽可能多地实现一家所需。
厨房设置可开可合的推拉门,存放、储藏、水池、准备台、操作台,统统塞进这个小小的空间,并秩序不紊的排列为最便利化的工作动线。
赴一场浪漫的人间烟火吧。餐桌是忙碌最好的安慰。坐在餐桌前,听一段恰好的音乐;吃一顿纯粹的饭菜。餐厅没有多么华丽的设计,宽敞明亮足矣。
午后的阳光书房,是最普通,却最不普通的样子。光影在桌面歇脚,赶走风吹日晒的烦恼。如果感到无能;如果感到无助,在书房窝一晚就好了。这相顾无言的温和,胜过世间一切嘈杂。
大道至简,举重若轻。穿过主卧,入目没有繁杂的装饰,整个空间的材质选择,遵循和主卧的共处,用顺从来记录光明,迎接每一位短暂停留的过客,却没有任何怨言。
卧室里面,这个小小角落就是留给自己的温柔。软软的单人沙发包裹一天的疲惫;温柔的灯光点亮无力的黑夜;满墙的衣柜挂满所有的美丽衣裳。原木的温柔与白色的利落,充满整个祥和的空间。
相关案例推荐
素朴设计
设计师相关作品

粤公网安备 44010602000156号