前言:
业主需求:
1、保留4个卧室。
2、中西厨结合,方便操作。
3、需要一个大浴缸缓解工作的疲劳。
4、客厅的空间不要太局促,通风和采光一定要充足。
5、家里的收纳要充足,并满足设计师提倡的就近收纳原则。
6、早上用餐环境嘈杂会影响睡觉,所以主卧的门要靠餐厅最远。
7、虽然定义是现代风格,但是还是希望可以混搭一些其他元素,让家里不要太冷清,有自己的特色。
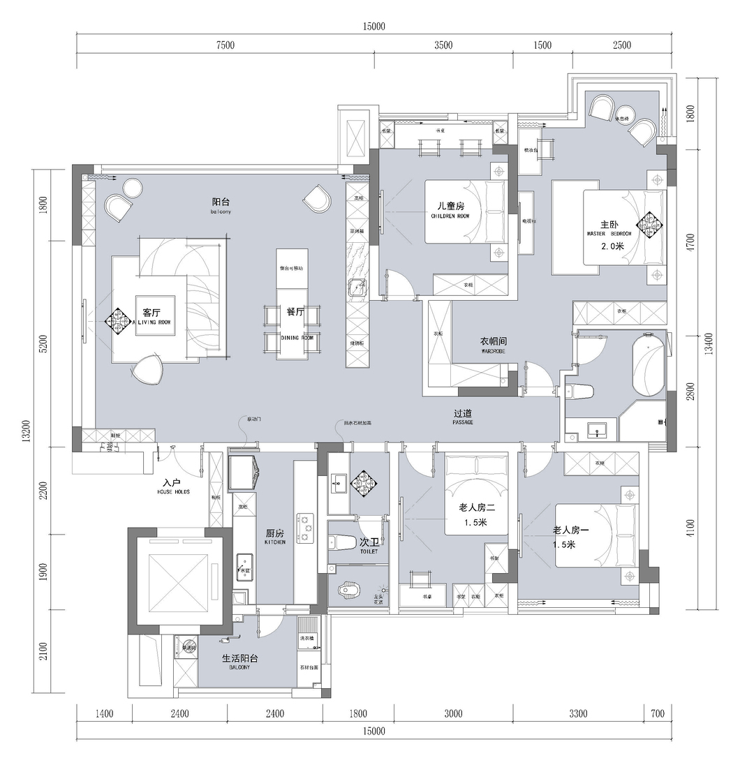
原始结构图
1、客厅空间宽度过窄。
2、主卧空间不够宽敞。
3、儿童房的位置过道空间很浪费。
户型改造
1、取消景观阳台,把客厅和原阳台融为一体,增大客厅的容量。
2、家里只需要两个卫生间,取消一个卫生间作为主卧的衣帽间,并把主卧搭配的小阳台纳入主卧室,既满足了主卧的收纳,也让空间变得比较充足。
3、把原来儿童房的过道墙体拆除,在小朋友卧室门口做收纳柜。小朋友的玩具书籍等物品可以在这个位置进行最近的收纳,也让过道不再那么浪费。
整个大客厅的墙面被奶咖色及木纹色包裹,设计师在墙面融入了简单的PU线条、在顶部阴角位置加入了法式浪漫的线条、电视墙面的展示柜也融入了细长的线条。
不同线条的穿插,让整个空间更加灵动,细节饱满,空间层次分明。
黑色的茶几与黑白条纹的单椅相互对应,搭配跳跃的暗红色抱枕,让整个空间极具灵动感。
开放式西厨,卡拉拉金石材岛台搭配岩板餐桌极具生活的精致,仪式感满满。
开放式西厨,卡拉拉金石材岛台搭配岩板餐桌极具生活的精致,仪式感满满。
墨绿色的木作衣柜,柔和的墙面线条加顶部线条,再加上墙面拼色的深灰色,是别具一格的风采。
搭配极具女性调性的“女王”床,如同刚认识的重庆女子一般刚烈,多识两日,却又似水柔情。
热爱粉色是小女生的常态,橙色也代表了他们这个年纪该有的活泼,大面积的灰也让房间可以安静下来。
设计师把飘窗改成书桌和小卡座,让女儿在自己的小空间也能畅游学习休息。
相关案例推荐
素朴设计
设计师相关作品

粤公网安备 44010602000156号