前言:
家庭人员结构:一对新婚夫妻
屋主需求:
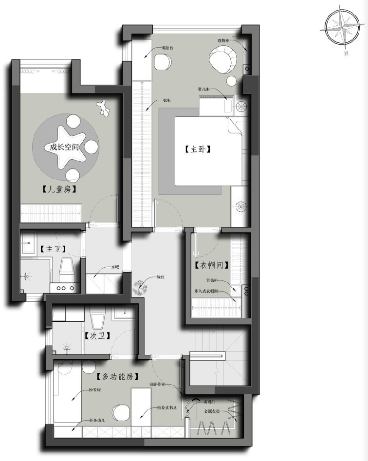
①未来的宝宝房和玩耍空间要提前设计好
②厨房空间比较小,冰箱希望放在外面,但是也不要裸露在外面
③榻榻米茶室空间,要兼具会客需求
④空间的亮度一定要足够,卧室可以稍微暗一点
⑤衣帽间一定要有,如有必要可以舍弃一个卫生间
装修前:
· 空间整体要通透,亮度足够
· 客厅外面的开放露台需要利用来休闲,需要遮阳棚
· 房子的收纳尽可能的隐藏起来
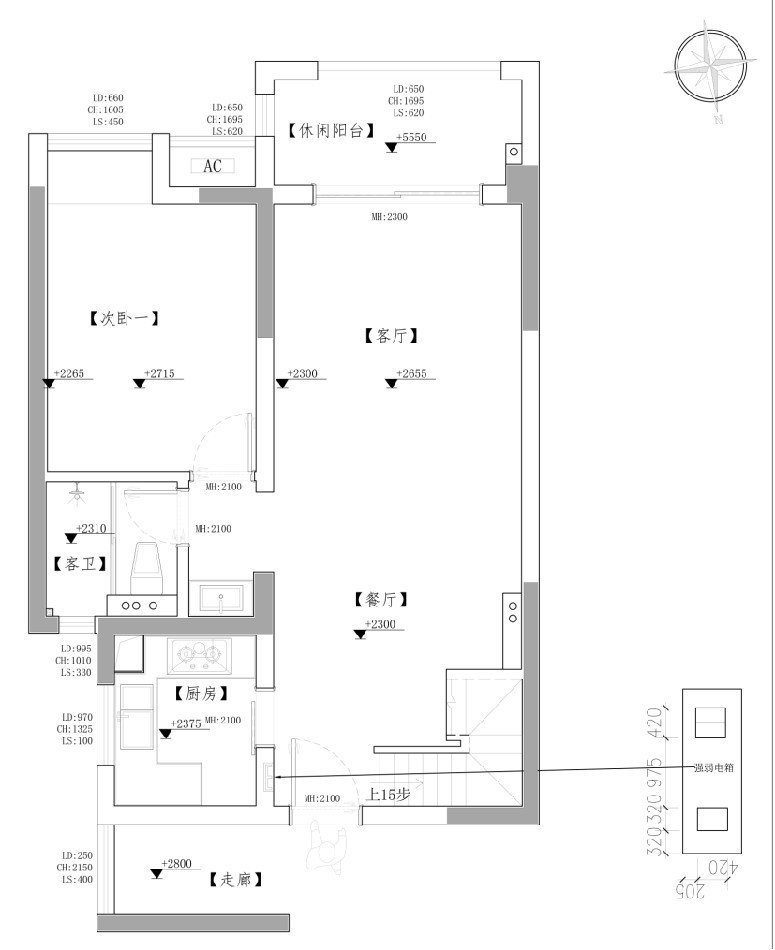
· 进门的位置很拥挤,且没有玄关也没有收纳
装修后:
· 拆掉原有楼梯下方的非承重墙,设计嵌入式冰箱和储物间
· 客厅阳台打通,落地窗和地台设计,随时都可以休闲和路过
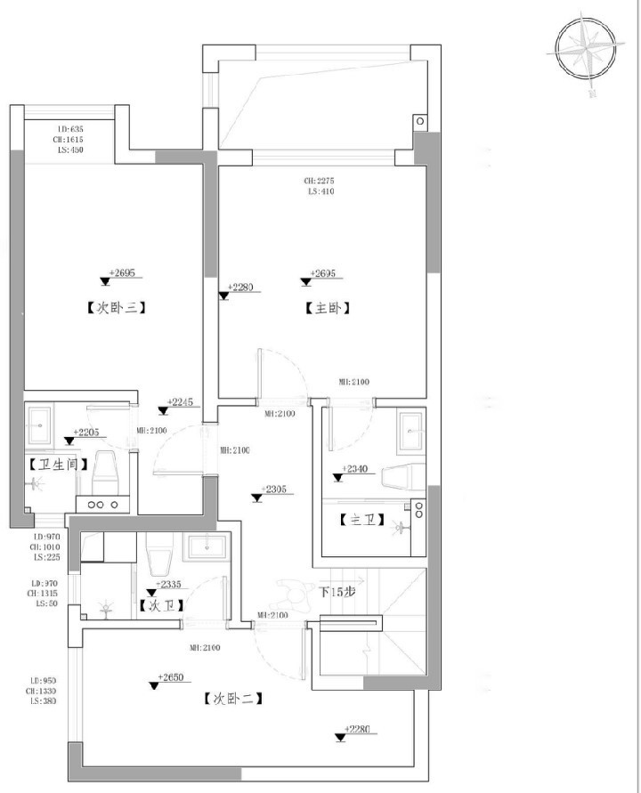
· 主卧卫生间改造为衣帽间收纳
· 多功能书房也将原有北向房间利用起来了
拆掉非承重墙,进深不足200mm的原木玄关收纳柜也足够使用了,沿用厨房原有格局,玻璃滑门也将采光引入了入户空间,连转角的楼梯都有了光源感,木质与嵌入式灯光也在散发着实用性
整个空间选择温馨的原木和金色元素,抬高地面的地台阳台设计,应该是空间通透感和休闲感的得力助手,嵌入地台的灯光也有了一丝时尚感,穿过去茶几化的客厅空间,跨过地台就是外面的露天阳台空间,整个空间真的很通透,阳台收纳柜和隐藏式晾衣设计,都是在增添空间的美观化和实用性
超大地毯铺设在客厅,可以感受随时的盘腿而坐,移动设计的金属石材边几,真的很适合懒人和宅家党,壁挂式的灯光与石材电视背景设计的碰撞,都被原木元素巧妙的融合了,整体的原木真的很舒服,坐再这里看一本书也很悠闲了
与入户收纳连为一体的,转角就是餐厅空间。开放式餐厅占据的视觉效果引入眼帘,原本放不下的冰箱,利用原有楼梯转角空间设计收纳储物间,嵌入式设计在这里就理所应当了,无拉手设计真的是屋主想要的隐藏收纳!
一整块的原木元素,穿插些许的金属、玻璃元素,也多了一分层次感,皮质人体工程学轻奢餐椅,搭配石材方形餐桌,奢华和仪式感到位了,无主灯设计尽显简约,化解了累赘吊灯出现的危机
主卧就是妥妥的慵懒和自由空间,主卧靠窗的阳台门垛都拆掉,设计了一整排的床尾收纳柜,另一侧的角落也是收纳,妥妥的收纳大户了,延伸出来的还有女业主的梳妆台空间,悬空式设计床头柜都在尽可能的减少拥挤感,连卫生间都被设计师改造为衣帽间了,屋主真的不用担心衣服包包没地方放了
开门即是大大落地窗和纱帘,采光和通透没得说了,为数不多的粉色系出现在梳妆台区域,穿插游走在白色和黑色元素,隐藏起来的灯光搭配轻法式吊灯,给足了屋主想要的少女感,柔软轻巧的化妆凳,随时都能挪动~
相关案例推荐
时一设计
设计师相关作品

粤公网安备 44010602000156号