前言:
本案屋主两人都是艺术从业者,居家拍摄是常态。
高颜值+高审美=高标准,加上两人常在外地,
如果设计团队没有强大的落地能力和认真负责的工作态度,真的很难完成这个项目。
历时8个月,他们心中的dream house终于落成,一起来看看吧~
这个家在效果图阶段就已经被很多人喜欢,干净的留白让人有种从生活琐碎中抽离出来的感觉,
但细看又会发现它并非不食人间烟火,而是在功能与美学之间找到了平衡。
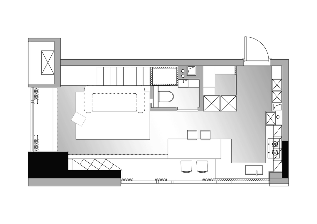
◍客厅大胆挑空,用近一半的面积换来开阔视野和充足光线,
玄关、餐厨、储物间、客卫、洗衣房则合理安排在另一半区域,又保证了各功能的舒适尺度;
◍悬浮楼梯、玻璃扶手,空间更极简轻盈,增强了一二楼的联结;
◍让结构本身成为空间亮点,不必繁冗的装饰,也能产生高级的层次感。
Loft虽然面积不大,但也要避免一镜到底的平铺直叙。
首先在入户我们增加了独立玄关,作为归家第一站,这里不仅有换鞋凳和满墙鞋柜方便穿脱和收纳,
还有一个被折叠百叶门隔出的储物间,旅行用到的大大小小的行李箱都将在这里存放,
日常穿脱的外套包包也放在里面,轻松维持视觉上的整洁。
餐厅地台延伸至客厅,其实一根厚重的地梁正隐藏其中。
挑空的客厅配以建筑结构感极强的书架展柜,Loft也能有别墅的居住体验。
材质、光线、线条交织成独特的韵律,带来极强的视觉张力。
我们将书架的堆叠感提炼出来,运用在空间各处,形成家中独特的记忆符号,比如吊顶与墙面衔接处。
挑空的设计为空间带来更充足温暖的光线,于是在光线最佳的位置我们同样做了地台,
铺上毛毯,平常可以在这里看看书、听听音乐。
地毯是屋主旅游时淘到的手工地毯,当居住者自身的特点、喜好渐渐融入空间之中,家也将变得越来越独一无二。
在设计之初屋主就强调说喜欢悬浮楼梯带来的高级和轻盈感,在沙发背后就是楼梯区域,
悬浮且不带扶手的形式带来更极简的视觉感受,
底部端景投射出的灯光可以穿过台阶间隙,在简与繁中取得微妙的平衡。
从楼上俯瞰的角度也是美的,其实在整个空间中我们并没有特意规划拍摄区域,因为把任何一个场景放到取景框中都很美,
屋主可以根据拍摄需要任意选择场景,而且每个场景的光线一定是充足的。
与玄关相连的是开放式餐厨区域,极简黑白有着错落的层次,
由于屋主身高都偏高,因此在水槽一侧的橱柜加高,这也给背面的酒柜留出了更多空间。顺带一提,酒柜是屋主亲手制作的哦。
灶台在背光一侧,吊柜底部的感应灯补充台面照明。
电磁炉与岩板台面融为一体,烟机是可伸缩的,使用时才拉出来。
从橱柜悬挑而出的桌面被透明亚克力桌腿轻盈托起,餐桌两侧是不同的地面高度
——地台一侧可作为正常餐桌使用,而另一侧则是吧台高度,
试想在某个平常的夜晚,一边望向窗外星星点点的城市,一边在灯光渲染的浪漫氛围下喝到微醺,生活的每一个平凡时刻都值得被重视。
你或许会有疑问,那冰箱在哪?其实在餐桌后方的白色墙面中,隐藏着嵌入式冰箱,从底部的圆形散热孔就能发现它的存在,
冰箱左侧的柜体内是洗衣机+烘干机+储物的组合,小空间设计就是要高效利用空间,又要让各功能的使用都足够舒适。
在楼梯下方,也就是端景的位置,其实是客卫,它与冰箱、洗衣机一样被一扇门隐藏于白色墙面之中。
打开隐形门,会瞬间被带有镭射效果的黑色马赛克墙砖包裹的空间所震撼,黑与白带来强烈的视觉反差,
低调奢华且时尚,造型独特的镜子更是加强了这种感受。
这里原本是暗卫,我们在墙上做了一列透光不透人的玻璃砖,在楼梯下的角落我们并没有完全封住,
而是以半开放的形式将绿植景观与灯膜的均匀光线引入,既解决了采光通风问题,又为客卫注入了新的可观赏性。
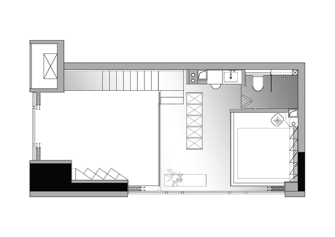
踏上悬浮楼梯,我们来到二楼,墙面的圆弧造型配合灯带在公共空间到私人领域之间形成柔和过度。
一排衣柜划分出卧室区域,也为二楼带来一定的私密性。
地台界定出睡眠区,用地台+床垫的形式而非成品床,既保证空间高度,又产生一种柔和舒适的氛围感与趣味性。
叠级元素同样出现在了这里,并且利用叠级厚度,我们在床头也增加了储物空间。
在衣柜尽头就是妆台+洗漱区,柜子特意留出间隙,为这里引入光线,镜子我们选择了带灯的款式,以确保化妆时能拥有充足的光线。
不同于客卫的绚丽,主卫采用了朴素的色彩,墙顶灯带、入墙花洒、半玻璃隔断都让这个小空间显得更高级,
值得注意的是,地漏位于马桶和淋浴区之间,这样无需高差就能解决排水问题。
相关案例推荐
咫尺设计
设计师相关作品

粤公网安备 44010602000156号