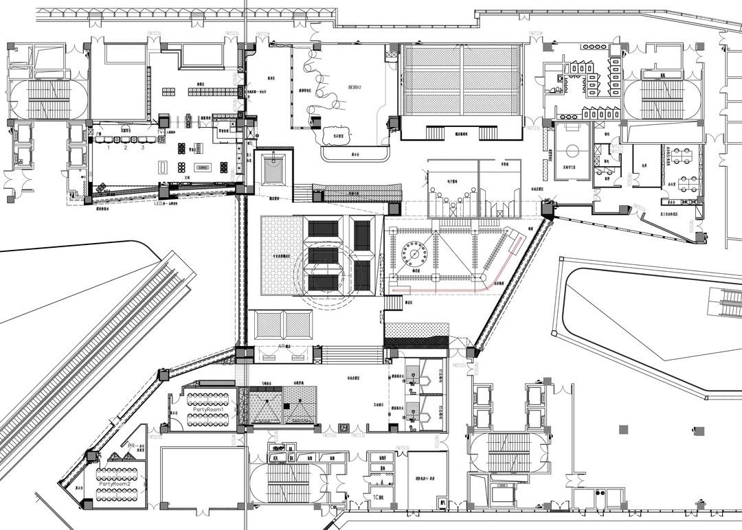
前言: BomBomSpace弹力猩球超级运动中心,位于杭州大悦城购物中心的8层,两个中庭之间。内部使用空间11米高,独特的“几”字型平面格局,与外立面作延展,我们打开周围所有视线,强化视觉吸引力,使沿着中庭的区域形成重要的视觉展示面。整个空间被划分成左、中、右三个部分,中部通高,左右两侧区域的半空中是一片钢结构梁体构成的骨架网格。所以,方形、网络,可堆叠,可延展,可变化的立方体,也就渐渐在我脑海里浮现。 猩球概念的创作是基于广袤无垠的星际空间,结合空间中的钢骨架网格,产生了联系和无尽的变化,于是“猩际魔方”这个概念也就诞生了。 整个外展面,我们以画框为基础,魔方元素作为基石,将立面空间作出划分。通过大量拱形门洞,作为穿越星空,连接宇宙空间的媒介。高空区域的每幅画的窗口,都做了拱形门洞的连续化处理,使其完整且具备神秘感,扩大了整个外展面的视觉联动效果。连续的拱形门洞,看似是门,也是窗,更是构成了守护整个猩球的城墙,称之“猩城之门”。每个门洞的下方做了延伸处理,伸出的部分演变成每一个小魔方,底部加入的灯具,展示出魔方飞行器的效果,也点缀了照明。在空间内部,我们用光带将空间的两侧做成了时空隧道的窗洞,来营造更丰富的星际空间,也是对未知和探索精神的表达。 悬浮在空中的巨大logo,装入了透明的立方体中,用光将它和其他的立方体相连接,用以阐述世间万物的诞生,演变和生生不息。 我们运用魔方的变化能力,将魔方放大,缩小,飞天,入墙。融合进货架、导台、座位、墙面装饰、空中装置等等,几乎一切,都是魔方构成。由多个独立的大魔方构成的前台,每一个都是独立体,通过发光的能量光柱,连接成一个整体。 “魔方天柱”,零售的货架是用一个个小魔方连接构成的盒子所形成的两根柱子,拔地而起,顶天立地。同时,在黑暗空中,由多个分离又相互连接的小魔方,构成一艘大的魔方飞船,守卫猩空。象征着时光穿梭的冰蓝色光带,贯穿着整个换鞋空间,一直延伸到游玩区的入口。空中,零散地放置了几个魔方演变的多面体飞行器,作为空中卫士,守卫猩球的时空隧道。游玩区的入口,通过搭建一排拱形门洞,来划分公共区域和洞穴探险区,来表达空间的穿梭与变化。拱形门洞,也代表着一扇扇时空之门,屹立于虚空中。 猩际舞台区是由许多立方体矩阵和弯曲的立方柱所构成的,是对宇宙能量敬畏的表达。星际间,强大的引力,可以托起一个个星球,使得星际空间内的一切可以井然有序地排列运作,超强的引力同
相关案例推荐
张笑
设计师相关作品

粤公网安备 44010602000156号