前言:
家的底色不止于柴米油盐的琐碎,也有诗意与远方的浪漫。本案屋主夫妻,对新家的期许稍有不同,女主人喜欢清爽饱满的色调和质朴的自然元素,向往鲜活洋溢、有故事感的家。男主人醉心书法与阅读,希望家是安静内敛的,有着鲜明的东方文化属性。
深度剖析两人的需求与喜好后,整屋以奶咖与原木为主旋律,糅合复古绿与内敛黑等高饱和色块,以及拱门、藤编和花砖等经典异域元素,奠定空间南洋复古基调,归家的刹那,仿佛闯入电影中的场景。背景墙恰到好处的留白,怀旧感软装家具的加持,又适时引入东方美学概念,展现家潜藏中古韵味的一面,至此,家居审美有所分歧的两人,各得其所,达成统一。
屋主夫妻一致认为“家代表着情感寄托与人文关怀”,迎合两人所想,我们将厨房与客厅的共墙局部移除,增设多功能吧台兼传菜台,连通厨房与客餐厅,让家成为一处沟通畅达的开放场域,即使身处不同空间,家人依然能够交流自如,情感链接紧密,让家宅不再是一栋的冰冷空洞的建筑,而是有温度、有个性的自我表达空间。
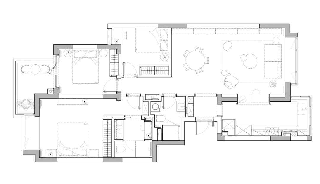
原始户型图
平面布局图 1、厨房纳入生活阳台,拓展可利用空间,面向客厅侧拆墙植入吧台,增加与客餐厅的互动体验。折叠窗取代平开窗,优化厨房采光与通风。 2、玄关直达室内的门洞改为拱门,拓展入户视野,增加归家仪式感。 2、次卫与儿童房的共墙砌薄,增设床头衣柜,确保日常衣物收纳无忧。 4、主卫向主卧外扩,同时改装嵌入式口袋门,争取更多使用面积,空间布局三分离并增设梳妆台,提升功能体验。 5、全屋阳台窗户,均以落地窗封闭,最大程度引入一楼的户外风光,让家明媚开阔又充满自然力。
素雅地砖直拼木色地板,流畅划分玄关与室内边界,异域风情的黑色拱门,婉约的石膏线吊顶,悄然宣告整屋南洋复古调性,入户的仪式感,也得以升华凝结。
以悬挑造型呈现的满墙鞋柜,轻松化解了柜体的厚重感,门扇采用自然透气的藤编材质,丰富的材质肌理,有力提升了空间视觉表现力。
高悬的奶油灯,灯光温和可亲,敛去繁忙一天的身心疲惫,给予归家温柔致意。
奶咖色艺术漆与恬淡木色交织的客厅,慵懒闲适又渗透着温度与柔情。客厅打破以电视为中心的格局定式,将一应功能纵向排列串联,居者可以坦然享受开阔空间感与自由动线,家在此刻,成为真正的居心之地。值得一提的事,布局的调整,也扬长避短,确保了一楼场域的私密感。
沙发靠窗不靠墙,轻暖日光长驱直入,客厅完整沐浴在明媚的光影里,通透异常。沙发与落地窗的间隙,轻置一席长桌,伴着绿意与阳光,阅读、饮茶,生活雅致悠然。
宽尺落地窗让客厅与户外风光产生链结,近一步放大室内空间与自然环境的关联。将采光优势、迷人景色完全引入室内,拉近居者与户外距离,构建人与自然和谐的居所。
被点亮的柠檬草落地灯,灯光微黄,犹如灵魂之笔,为品茗阅读更添了一份温暖的意趣。
低调内敛的灰色羊羔绒沙发,质地柔软舒适,理所当然的成为客厅的视觉焦点,可拆卸的模块设计,给予客厅充分的灵活机动性,布局可以随心改变,摆脱拘束与限制。做旧的民族风地毯,绳编的中古单椅与南洋感的抱枕碰撞交织,演绎出复合多元的客厅格调,
折叠的飞鸟屏风默伫一隅,引入东方禅意与美学,在静谧中展现出客厅独特的艺术美感。
藏露兼备的斗柜,作为展示美感与功能实用的集合体,填补了客厅的空旷感,家也因此更为充实饱满。
东方意境的美无法脱离物质独立存在,而寄情于物是凸显意境美的绝佳方式。沙发旁肆意吐蕊的插花,将语言难以描绘的意境借助细节表现,让东方之美得以充斥每处角落。
轻巧的圆几采用胡桃木材质,增添了一丝怀旧韵味,同时也将客厅的氛围感,引入臻境。
从客厅看向厨房。 客厅的悠然自得与厨房的烟火气分合交融,互为彰显,家的底色有着浪漫的一面,也不乏质朴的生活气息。
整合套内阳台面积的厨房,由逼仄转为开敞,游刃有余的应对着各种烹饪需求。整齐划一的复古绿橱柜,加以骨骼线装饰,将中古韵味与南洋风情完美结合。 白色岩板为主导的厨房台面,取消臃肿挡水条和下挂设计,极简与质感兼备。局限性较大的平开窗,改设为灵活性更高的折叠窗,有效改善了厨房的采光与通风环境,下厨成为一件令人愉悦的事情。
吧台身兼多职,是晨起享用简餐的临时餐桌,也是深夜小酌的放松尽兴之所。独立的水槽配置,延伸出更多生活场景,冲饮、烘焙和备菜都可有条不紊的进行。底部暗藏的储物空间,也从功能上弥补了厨房收纳的短板。
厨房与客厅共墙局部拆改,开设拱形门洞,并植入西厨吧台,打通空间回路,强化厨房与客餐厅的互动体验,为家人隔空对话,提供交流窗口,情感链接,也因此愈发紧密。 吧台兼任传菜台功能,成功缩短餐食上桌距离,厨房与外界的联系不止于一处通道,功能紧凑却也自在从容,于三餐四季中,开启这漫漫生活的旅程。
客厅看向餐厅。 客厅回望餐厅,纹理自然的木地板通铺,带来极致的空间延伸感。贯通的悬浮吊顶,点缀以几何石膏线,并以弧度包裹锐利边角,拉伸视觉层高之余,考究的细节,也让竖厅以空代满,以繁驭简,张弛有度。
餐厅是食飨之地,也是情感交流的重要场所,这里承载着一人的团圆美满,空间的调性风格与客厅高度一致,达成视觉的和谐圆融。摈弃不必要的装饰与陈设,餐厅聚焦于场地氛围感的营造,享用美食、闲谈茶歇,多种生活场景在此轮番交汇上演。
餐厅启用深邃胡桃木圆桌,既撷取团团圆圆的寓意,便于家人围坐增进交流,又将用餐之所,塑造成一处摩登时尚的艺术空间。与餐桌配套的绳编中古椅,则展示出餐厅细腻柔软的一面,让人情绪缓和,心生安定。
餐桌细节。#餐桌 #餐椅 #胡桃木 #圆桌 #餐椅 #中古 #餐厅布局
黑色踢脚线与奶咖色墙面对比鲜明,家的层次立现。无边框的加长风口,形态极简,印证less is more的真谛,回溯家宅的纯粹本源。
抽象艺术画、写意的插花与粗陶摆件,都是餐厅的装饰主力,与木质家具产生奇妙的化学反应,意外的融洽协调。
洁净的百褶灯以垂落姿态跃入视线,铺开一桌的缱绻生动,简单的餐食沾染上柔和的灯光,也不免让人食指大动。
斗柜餐边选择纹理粗犷斑驳的橡木材质,扑面而来的是自然的气息和岁月沉淀的美感,繁琐的收纳,也变得赏心悦目。
餐厅背景墙,一如既往着墨谨慎,寥寥几笔的石膏线,勾勒出框架层次,留待屋主日后填补与发挥。光是氛围感的源头,顶面留有射灯洗墙,留白亦不觉单调,反惹人遐想。
地处一楼的优势,在主卧得以充分彰显,向外延伸的阳台,以全景式落地窗封闭,邀约葱茏绿意入内,与床头延续自公区的,那一抹深邃复古绿相映成趣,打造与自然相通的诗意就寝空间。
主卧的色彩运用,高雅凝练,奶咖色与复古绿共同运作的床头背景墙,层次分明又不失复古腔调。含蓄内敛的胡桃木床与床头柜,则为空间植入安静沉稳的内核。顶天立地的藤编衣柜配以古朴精巧的木质拉手,满足基础的衣物收纳需求的同时,也为主卧增加了高级的内涵。
树影婆娑,白纱翩跹,阳光延展进主卧,晕染出生动的光影,空间浸润在明亮的气息里,岁月静好,安然若素。
方格纹玻璃口袋门搭载浪漫拱门,释放主卫空间感之余,亦将仪式感的生活态度贯彻到底。牛油果绿花砖通铺,主卫的俏皮活泼感油然而生。洗手台与梳妆台相向而立,淋浴房借助清透的玻璃隔断自成一体,空间在干湿分离的基础上,拓展出更多功能体验,全方位服务屋主的日常需求。
相关案例推荐
菲拉设计
设计师相关作品

粤公网安备 44010602000156号