前言: 岁月不居,于时光流逝中凝练成回忆。“我时常用这些老物件告诉自己慢下来未尝不是一件好事,毕竟这个世界从来不缺冷漠和步履匆匆的商人,没办法抓住时间的我们只能好好抓住时间的载体。”设计师将现代法式的浪漫精致和中古家具的复古怀旧相融合,以折衷主义的方式提炼出独属于屋主的家的气质,整个家即成为屋主的情感载体与记忆的守护者。
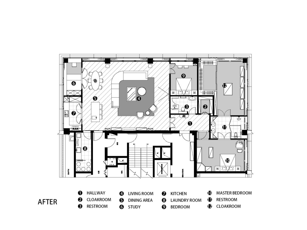
设计师以屋主的生活方式为出发点,对房屋进行了大刀阔斧的空间改造。客厅的原始横梁不可拆除,设计师巧用故宫建筑构思,井格的吊顶设计,达到延展开阔的动感视觉效果。原始房屋以幕墙玻璃为主,同时拥有50cm宽的窗台不可拆卸。为处理此处结构的弊端,设计师在窗台处巧妙地新增经典的法式窗,兼具艺术与实用性。打通两间卧室做独立步入式衣帽间,极大地丰富储存空间,满足女主人的收纳需求。卫生间以三分离+双台盆设计,大大提高使用效率与舒适性。
推开居所大门,过厅处摆放着屋主在外淘来的路易十六风格的樱木五斗柜,为迎接主人的回归做好收纳准备。古铜金把手与金纹镶边,彰显屋主复古雅致的艺术品味。珍珠白的墙面整洁利落,墙上Vintage挂画稳重气韵,两架温润复古的单椅静置于挂画之下,再次为过厅增添了一丝中古硬朗的艺术气息。在此处设计师以四扇法式双开门的巧妙布局,周密防止宠物进入屋主私人空间造成混乱或出逃户外的隐患
原本房屋天花板的横梁非常多,我们设计师巧妙地运用故宫的建筑结构,精巧构思贝联珠贯的井格吊顶,达到延展开阔的动感视觉效果。采用无主灯设计,实现明暗结合,增强空间的层次感。当屋主步入此处,抬眼视线流动之处,轻松体会复奏的视觉韵律之美
Art Deco高脚柜独具装饰艺术风格,由黑色乌木U形底座与鸟眼枫木组成,兼具艺术与收纳实用性,与上方的vintage挂画一齐静默无声地诉说着悠远岁月的痕迹。绵软丰盈的Giorgetti扶手椅,铁木扶手造型别致,其灵感来自古董手杖,柔软细腻的羊绒触感顺滑,让人在坐下的那一刻不由自主放下防备。猫咪居于室内自由活动,蕴含历史韵味的中古家具与一系列现代家居相融共生,我们设计师聚焦材质、色彩与空间舒适度,突出多元融合与舒适随性的生活方式
壁炉右侧的Vintage抽屉柜造型简约,色泽温润,上方的Vintage挂画,也是屋主精心淘到的珍藏品,承载着业主记忆的故事。屋内摆放着的众多中古物件,都是屋主的“心头好”,经过岁月的洗礼,其不可复制的稀缺性与独特性,都是对历史的庄严回溯,寄托着屋主的情怀与人生态度
原始房屋以幕墙玻璃为主,同时拥有50cm宽的窗台不可拆卸。我们为了处理此处结构的弊端,在窗台处新增经典的法式格子窗,增强整屋浓郁的氛围感。并将空间巧妙运用起来,两窗之间的间隙可以作为猫咪亲密接触阳光的场所,悠闲又惬意。一卷罗马帘为引入室内的光线镀上一层朦胧与温柔。设计师将门窗艺术创作融入空间的组成和人与宠物的情感之中,打造真实客观、艺术与实用兼具的情景空间
整体空间以奶油色系分层呈现,使得家既精致,又不失简洁纯粹的关键。Samsung画境电视下方内嵌式储物设计,巧妙地解决了线缆的美观性,有效舒缓空间的厚重感。左侧B&O音响,饱满圆滑的机体与黑胡桃木支腿,精致又耐看,轻松撑起苍穹与深海的旋律。在室内陈列上,我们设计师呼应时空记忆的色彩,让每一件物什的摆放呈现出和谐共融的状态,各自述说着其与屋主独有的经历和故事
居于客厅中央的茶几是屋主喜爱的Louis Vuitton硬箱系列,经典的monogram老花图案与利落的几何线条散发着沉稳庄严的气息,彰显着经久不衰的岁月馥郁之美。主沙发是来自意大利品牌的B&B沙发,柔软亲肤又带有支撑,以半围合姿态营造温和舒适的氛围。低饱和色调的手工地毯淡雅不失韵味,沙发上的LV钟形台灯,在夜幕降临时散发柔和暖光,将温柔传递到整个空间
客餐厨区域整体呈洄游动线,开放式空间更显简洁流畅,明亮通透。同时餐厅作为猫咪可以自由活动的公共场域,设计师在角落处为猫咪贴心配置了猫抓板等用品,给予猫咪舒适的居住体验,增强家庭中人与宠物的互动性,将客厅角落处的餐厅与吧台联动,建立起浑然一体的协调美
Baxter餐桌细腻的天然白洞石桌面呈现出令人惊艳的自然纹理,椭圆形横切面以及皮革包裹的底座,诠释出丰富的生活艺术。Corinne座椅以精致的曲线给予屋主舒适坐感。此外,我们设计师在家居选材方面,优先考虑到“猫宝贝”的日常生活习惯,创造人与宠物和谐共处的空间来回应家的温馨
Christofle昆庭心境餐具蛋,以器皿平衡艺术与烟火,圆润结实的外观和银质餐具凸显出餐厅一隅的典雅氛围。桌台上点缀着自然质朴的绿植,是屋主对生活的无限热爱。与家人相对而坐共享人间美味,用美食与爱抚慰工作的疲惫,满满的幸福感洋溢其间
法式压花玻璃门友好地隔绝中厨区域的油烟味,水波纹理透出隐隐约约的朦胧,以自身材质为室内引入自然光线。公共区域选用天然洞石通铺地面,足以抵御日常宠物的磨损,也方便日常清理,维护健康和整洁的居住环境。墙上的樱梅柳图画呈现出静态和谐的空静景致,自然之韵与生活之诗于家中交织错落
为了更好的融入家的整体氛围,吧台选用优质木材与宝格丽台面相结合,温润的木质增添几抹时光的厚重与静美。大理石台面平添了几分自然气息,并且方便屋主的日常备餐与清洗蔬果,无惧猫咪的上下跑酷,转角的曲面设计规避了直角带来的生硬感
SMEG水壶的奶油色烤漆外观为备餐区增添优雅的法式格调,将此处的时尚氛围立体呈现,巧妙地点缀出屋主不凡的家居品味。备餐区与餐桌相邻而作,GUBI的吧台凳与Baxter餐椅遥相呼应,提升空间的简约精致性
设计师抛弃刺激和艳丽的对撞,使用低饱和度的色彩,打造恬适优雅的休憩空间。推开水纹玻璃的法式双开门,优雅的格调带着真实原味的典雅,当屋主进入私人空间的那一刻,外部的嘈杂即被隔绝在外,本能的沉静舒适下来
Pierre Frey的金丝壁纸是卧室的视觉焦点,简约的室内陈设与东南亚湖畔风情相互碰撞而彼此交融,调动屋内的整体氛围,半墙壁纸设计赋予空间不同情绪,让优雅层层递进
Flexform的风信子床柔软舒适,给予屋主怡然的深睡体验。Giorgetti储物柜采用贴面和胡桃木制成,拉丝玻璃与马鞍皮革的碰撞,融合生活美学与几何哲学。黄铜顶灯散发着色泽莹润的暖光,营造出素雅恬静的疗愈式空间
纱帘与罗马帘共同承接光线的洗礼,双层设计同时满足室内的隐私性与遮光需求。poliform床头柜以圆柱形态诠释曲线之美,大理石台面与皮革抽屉手柄,散发精致的气息。Vintage台灯是孤品,整体造型精美典雅,开灯时光线折射到台柱上的方形玻璃体,卧室顷刻间便可溢满钻石般的璀璨星光,整个卧室的氛围温暖治愈
此处连接卫生间与主卧,经典的老钢窗双开门勾勒出精致典雅的仪式感,一黑一白的配色划分不同空间,通透的水纹玻璃让光线自由穿梭,过道处通透明亮
卫生间标准的三分离设计,展示出独立与干练的气质,双人洗漱台与三面镜,大大提高空间的使用率。ZAMANI地毯简约的图案赏心悦目,与Vintage吊灯上下呼应,于井然有序的过道空间增添生活的松弛感
黑米系回型铺贴地面与纯天然粉色玉石共同营造出与其他空间明暗有别的节奏变化,让人不自觉地在这既定的节奏中沉淀、放松。在高压忙碌的生活中享受沐浴带来的放松时刻,实现由身心至灵魂的极致放松
这里是女主的玩偶屋,井然有序的衣帽间,是女主人自信与美好的安放地,诠释着她的生活品味与态度。我们设计师依据屋主的喜好,强化空间的文化格调与情怀,将对生活美学的思考藏于收纳之中。天花板上饱满立体的法式雕花,绚烂又精致,勾勒出浓郁的浪漫主义气息
设计师对空间结构进行大刀阔斧的改造,打通两间卧室为女主人构建空间充裕的玩偶屋。屋主收藏的各类Vintage家具交相辉映,精湛工艺的内核充分展现“木”的温润,人字拼木地板为整体空间增添浑厚而宁静的氛围。Vintage吊灯由奶玻璃与黄铜共同演绎出复古风情
Vintage边柜桃花心木纹理清晰,色泽温润,木质结合玻璃的设计,复古配色保留法式的经典特色,处处考究的细节延续至整个空间。室内姿态各异的玩偶都是女主人的宝贝,华美闪耀而不浮夸。环视整个衣帽间,它承载着非常多的女主人的情感,室内的每一件物什都是丰富而立体的存在
中岛柜将女主人喜爱的首饰器具尽数收纳,首饰陈列一目了然,银质器具散发着低调奢华的质感,于细微处彰显出女主人优雅浪漫的审美品味。藏在细枝末节里的浪漫,优雅的居家生活述说着永不褪色的美
相关案例推荐
双宝设计
设计师相关作品
编辑精选

粤公网安备 44010602000156号