62㎡法式复古风二居室,全屋吊顶设计,客餐厅一体,审美颜值长在了心巴上!
									前言:
									1.业主是一位非常文艺的小姐姐,生活简单随性;
2.钟爱浪漫的法式风格,并希望居家的每一刻都是温暖的;
3.父母朋友偶尔过来小住,故保留两房设计。
									
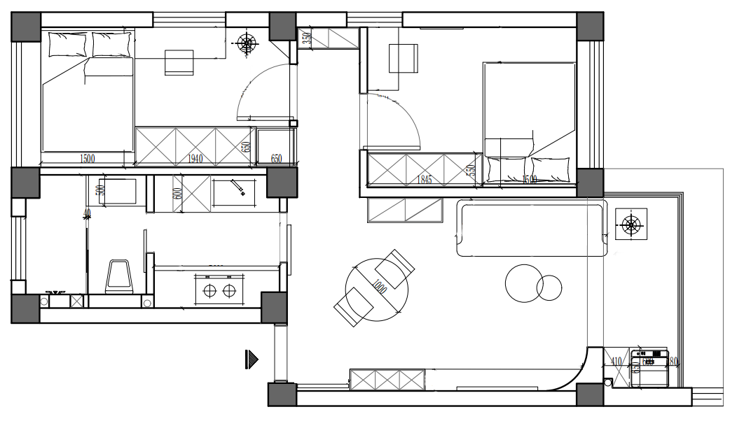
▲原始户型图
///
户型存在问题:
1、一进门就是厨房,出入也非常拥挤;
2、厨卫的使用空间都比较小,不利于业主的发挥;
3、走廊过短,以致于两卧室入口显得特别拥挤。
▲平面方案图
设计师在整体风格上融合了法式、复古、现代多重元素,使空间装饰丰富而多元,感性而又温馨。
改变入户门位置后,进门直对的就是玄关+客餐厅的一体式空间,扑面而来的是一阵阵温馨且浪漫的气息。
通屋刷上奶油色乳胶漆,配上胡桃木色的家具,在暖灯光的结合下,仿佛自带一层复古滤镜,营造出了一个氛围感拉满的居家空间。
客餐厅顶面做吊顶,一侧留空做暗藏灯源,灯光顺着墙面洒下来,消除了墙面原本的单调感;配上通铺的木地板,营造更加丰富的层次感和更为广阔的视野。
客厅中间业主选择了一款米白色豆腐块沙发,消减空间中较为暗沉的深木色,融入其中,给人一种简单干净的视觉体验。
电视背景墙向着原本阳台墙垛的方向做内弧处理,在视觉上弱化了墙垛的存在以及减少尖锐的直角,增添一丝柔和,让空间过渡更加自然。
一字型悬空的电视柜,造型简单轻巧,在视觉上给人以轻盈的简约感,一直延伸到玄关,减轻柜体带来的压迫感。
白色玄关柜上下悬空,给足入户呼吸空间,柜体直对门口的转角处中间留出一个可以置物的洞口,方便业主出入放置一些常用小物件。
两个悬空的柜体交叠在一起,塑造了一个倍感轻松的过渡空间;用一个小巧的黑白色伞桶作为点缀,让玄关区域瞬间个性鲜明起来。
客厅与阳台结合在一起,定制洗衣柜与墙垛平齐,白色的柜体和洗衣机烘干机,浑然天成,视觉上和谐统一,整体性更强。
一个人居住不需要多大的用餐空间,一张小小的圆桌就承包了日常的三餐,极具文艺复古感的餐桌椅,呈现出温馨有格调的空间。
上方一盏百褶造型的吊灯,将光线过滤成朦胧的美感,映在餐桌上,彰显了不俗的品质,简约中增添了几分唯美的魅力。
业主选了这款高脚餐边柜,纤细的柜脚与方正的柜身形成对比,有分量又不显得笨重。
半高的柜体给餐厅留足了置物台面,可以当做小吧台,放置小型饮水机或咖啡机等。
长长的走廊尽头是一个纯黑色的法式斗柜,个性十足又有一种高不可攀的错觉,让人眼前一亮既又怦然心动;侧面借用了次卧一点面积,将冰箱向次卧方向嵌入,完美融合。
主卧延续整体的装修设计,暖暖的色调营造了一个温馨舒适的睡眠环境。
在纱帘的基础上添加胡桃木色的百叶帘作为遮光,是卧室空间显得雅致而不落俗套。
入门处至床头处定制衣柜+床头柜的组合柜,靠近床头的侧边镂空做床头柜,充分利用空间满足卧室的功能。
次卧拥有两面大窗户,同样使用百叶帘,可以任意调节光线,使室内呈现出不一样的光影氛围,为居室增添一份奇妙的意境。
因为次卧只是偶尔有人过来住,所以平时业主会把它当作简易的书房使用,丰富使用功能,将有限的空间发挥到最大。
到顶大衣柜+无把手设计,给卧室保留了一份简洁和时尚感,远看如同隐形,不会显得突兀。
次卧顶面做平吊顶造型,吊顶在空调的位置留空,遮住三分之一的机身,提升居室的气质。
一扇炫酷的纯黑色谷仓门,加上门板上的杂志架,如同置身于一部有年代感的电影当中,让人身临其境。
推开门进入这充满复古色彩的厨房,整个空间有深藏着灵动的交流感,令人无法自拔;在两边墙体定制橱柜,呈走廊式布局,拥有双线操作的空间,更加灵活多变。
细腻纹理的胡桃木橱柜加上骨骼线的点缀,无不彰显空间的精致,就连下厨都是一件浪漫的事。
在橱柜下安装智能感应灯带,做饭的时候可以看清楚细节,还能看清卫生死角;绝美的开关插座,无不透露着居住者高品位的审美。
卫生间位于厨房里面,用折叠门作为隔断,极大节省厨卫空间,打开的时候会显得更加地通透大气。
与其它空间不一样的是,卫生间是通篇的奶白色,给人一种清新、明亮和干净的感觉,用浴帘隔绝淋浴区,尽可能地在满足干湿分离的情况下,还不影响空间感。
相关案例推荐
							拓界空间设计
设计师相关作品
												
													
														
															
																
												
													
														
															
																
												
													
														
															
																
												
													
														
															
																
												
													
														
															
																
												
													
														
															
																
												
													
														
															
																
												
													
														
															
																
												
													
														
															
																
												
													
														
															
																
												
													
														
															
																
												
													
														
															
																
												
													
														
															
																
												
													
														
															
																
												
													
														
															
																
												
													
														
															
																
												
													
														
															
																
												
													
														
															
																
												
													
														
															
																
												
													
														
															
																
												
													
														
															
																
												
													
														
															
																
												
													
														
															
																
												
													
														
															
																
												
													
														
															
																
												
													
														
															
																
												
													
														
															
																
												
													
														
															
																
												
													
														
															
																
												
													
														
															
																
												
													
														
															
																
												
													
														
															
																
												
													
														
															
																
												
													
														
															
																
												
													
														
															
																
												
													
														
															
																
												
													
														
															
																
												
													
														
															
																
												
													
														
															
																
												
													
														
															
																
												
													
														
															
																
												
													
														
															
																
												
													
														
															
																
												
													
														
															
																
												
													
														
															
																
												
													
														
															
																
												
													
														
															
																
												
													
														
															
																
												
													
														
															
																
												
													
														
															
																
												
													
														
															
																
												
													
														
															
																
												
													
														
															
																
												
													
														
															
																
												
													
														
															
																
												
													
														
															
																
												
													
														
															
																
												
													
														
															
																
												
													
														
															
																
												
													
														
															
																
												
													
														
															
																
												
													
														
															
																
												
													
														
															
																
                                                    
                                                        
                                                    
                                                        
                                                    
                                                    
                                                    
                                                        
                                                    
                                                        
											
											
										
											
											
											
											
											
														
														
														
														
														
				
                
粤公网安备 44010602000156号