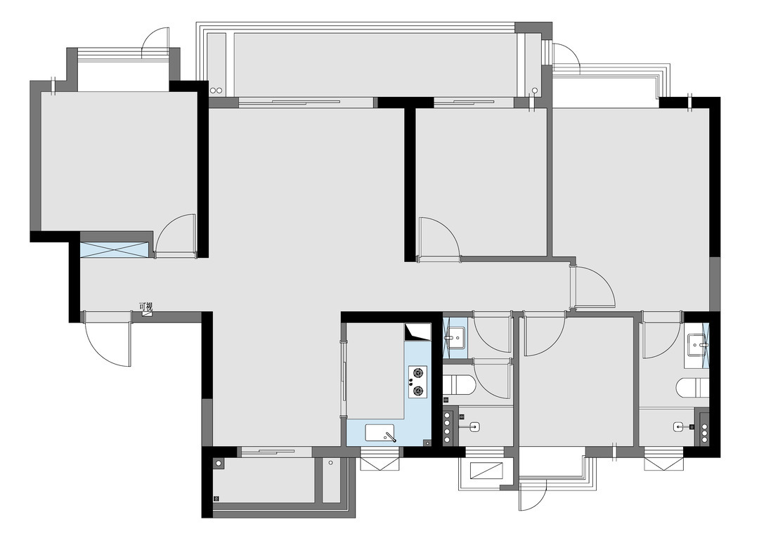
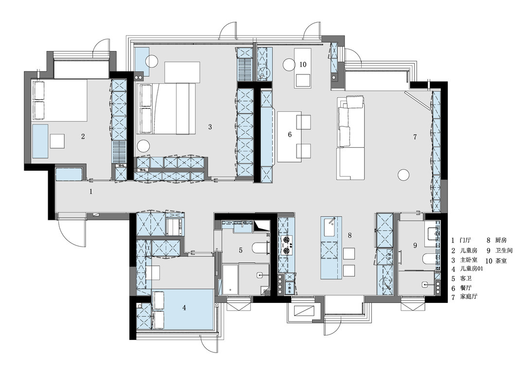
前言: 原户型为一个常见的精装套四,女主人不需要千篇一律的精装布局,希望空间视野空旷,既能保持自我空间的隐秘,同时又能满足家里聚会时的随性自由,所以我们设计的第一步便是为户型做一个优化创新。整个方案我们做了卧室与客厅空间互换,开放式厨房,LDK一体式设计,让客厅有更好更大尺度的空间感。实际体验感受就是整个空间开阔,动线流畅,“简约而不简单,充实而不堆砌,周全而又灵动”未来十年仍能保持美观实用的理想家。
➊打开阳台,最大程度把阳光并入室内,客厅洄游动线超级宽敞, 超大公共区域双面沙发摆放,一面对着客厅一面对着半隔茶室。
➋ 厨房分为轻食区和热炒区,热炒区移门可开可关。
➌主卧重新规划功能区间,增加衣帽间和包包展示柜,同时实现了三分离卫浴空间。 将主卧沐浴功能分解,在小阳台摆放浴缸,在家就能享受高级酒店套房。
❹利用走道空间打造公卫干区家政储藏柜,增加收纳空间,将台盆区设置在外面,让洗漱更加方便,避免了上洗手间和洗漱的冲突。
玄关通往客餐厅的走廊上有几根梁,我们引用弧形顶+天际线灯来弱化。过道两侧都是设计的整墙收纳柜,隐形门颜色与柜体材质一致,悄悄关上门还真和收纳柜融为一体了捏~
为了让视觉更开阔,我们结合业主需求将原本的主卧与客厅位置调换,客厅、餐厅、厨房彼此串联成一个公共场域,光线与空气相互流通,在敞开互联的空间里,让轻松、互动在每一个角落绽放~
餐厅定制长型卡座+通顶柜,柜体位于卡座一侧,有开有合,方便收纳书本、手办、艺术摆件,卡座下方也设计储物格,餐边杂物“藏”好,一整个干净清爽,每1m²都不浪费。
客厅餐厅厨房大胆拆除墙体,LDK一体化设计,让空间更通透自如,全家人在不同地方活动也能够无障碍交流。餐厅阳台联通,将丰富的采光引入室内,客厅也更显开阔大气。
客厅背景墙选用暖调木饰面,营造极简气质。背景墙和飘窗连贯一体,业主喜欢的书籍和工艺品都可以作为点缀,不同于传统电视上墙,画境电视更加灵活,不看电视时也是室内一道风景。
茶室设计在房子里最靠窗的极佳位置,采光视野俱佳,光影穿透进来,让整个茶室也如盏中清茶一般,纯净清香治愈。静谧的茶室更好的营造出美好的氛围感,是【日日是好日】的治愈。
嵌入式冰箱和蒸烤箱并排放置,顶柜+地柜+水吧台组合把西厨面积利用到了极致。圆形水槽平常清洗用具或水果都很方便,上方透明展示柜,下方抽屉+封闭柜相结合,满足多重收纳,西厨也不显凌乱。
开放式中西厨一体,洄游操作空间,巧妙创造生活场景。厨房做双排式橱柜格局,动线科学合理,地柜+高柜+独立岛台设计,轻松解决厨房收纳问题。独立岛台的哑光白岩板直接落地,视觉上极简感十足,延伸了餐厨的使用空间。
浅色系为主的卫生间,用简单的材质带来高级的质感,创造干净通透的感觉,淋浴和浴缸放在一起,实现干湿分区。简而不简的搭配让小户型也高级显大~
公卫延续了相同的基调设计,标准高效的卫生间三件套,尺度上也布置的非常舒适。马桶侧面收纳,整面镜柜,淋浴区壁龛,整套设计照顾了方方面面的细节。
回家就是最好的休息,所以主卧选择了自然宁静气息的氛围。整面护墙板造型,木饰面和灯光带来温暖的居住感受。侧面+床位整排大衣柜,挂衣 次净衣 叠放区完备,一体式梳妆台同时定制。整面落地玻璃,可以享受到温暖和阳光。
相关案例推荐
张鹤龄
设计师相关作品

粤公网安备 44010602000156号