前言:
“黑色”在世界各地文化中的词根词源里,都有“燃烧”一义。本案屋主喜欢厚重的调子、幽暗的灯光以及自然的肌理,我们用黑色铺开浓重的第一印象,而沉浸其间,则能看到屋主的个性气氛如何随着材质的肌理纹路漫延生长,细细燃烧。
项目地址 | 芜湖长江之歌
设计团队 | 研己设计
合作模式 | 设计+半包施工
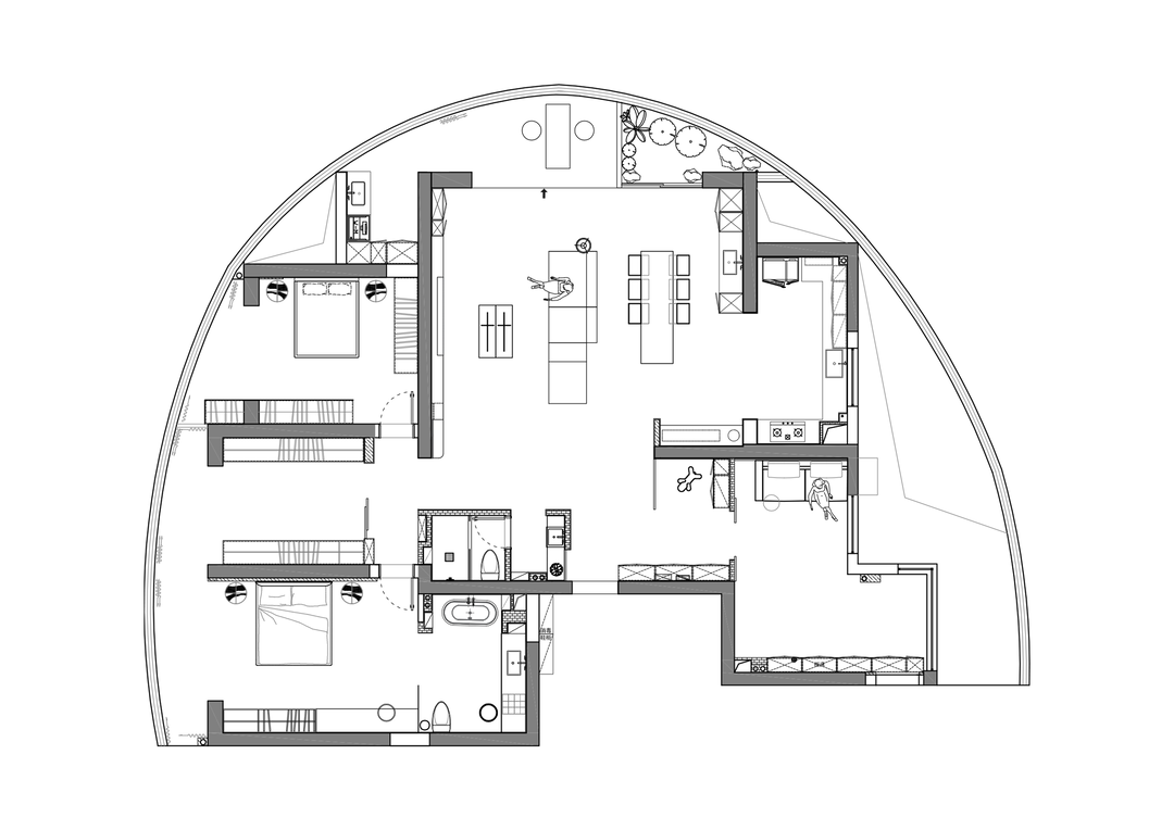
建筑面积 | 270㎡ 4室2厅
项目类型 | 平层
依据屋主需求,主要对如下空间做出改造:
1.拆除玄关隔墙,右侧卧室改为影音室,增设宠物活动区;
2.将一间次卧合并进主卧做衣帽间;
3.阳台改为半开放,半封闭的模式,做室外花园。
简约
现代
玄关
鞋柜
装饰画
门厅柜
混搭
轻奢
现代简约
瓷砖
玄关柜
作为个性空间的入场,除了营造归家的温馨体验,玄关也充当着全屋风格调性的序曲:黑色/碳黑、木质、金属、绿植、体块结构,精致的灯光设计……这些作为主要构成的元素,将首先在玄关一一出场。
简约
绿植
现代
玄关
灯具
混搭
轻奢
现代简约
隔断
瓷砖
将客卫干区打开,利用绿植造景,也与电视墙处的自然元素呼应。将地面标准尺寸的瓷砖再度加工运用于墙面,丰富层次的同时,也利用统一的材质带来整体性。
简约
现代
玄关
鞋柜
灯具
门厅柜
混搭
轻奢
现代简约
隔断
瓷砖
玄关柜
原本入户玄关的隔墙全部拆除,在影音室与玄关之间增设宠物活动区,让宠物可以第一时间捕捉到屋主回家的动态。 而更改布局后露出的梁体,我们用体块穿插的手法去解决。裸露的梁体与木饰面包裹的体块,不做过多处理,形成开合自如的气势。
简约
现代
地毯
客厅
沙发
艺术漆
混搭
轻奢
现代简约
瓷砖
电视墙
窗帘
简约
现代
客厅
沙发
艺术漆
混搭
轻奢
现代简约
瓷砖
电视墙
屋主不喜欢浅色轻飘飘的感觉,偏爱厚重的质感,我们选用有丰富肌理质感的炭灰色艺术漆,通刷墙顶,氛围厚重、内敛。屋主常在家招待朋友同事,选用有围合感的长沙发,营造放松亲密的休闲氛围。
简约
现代
客厅
沙发
艺术漆
混搭
轻奢
现代简约
瓷砖
电视墙
窗帘
柜体与电视机均做嵌入式,与墙面齐平,保留大平层的开阔印象。而背景墙面上方分割比例的线条,黄铜,石材及绿植点缀,则带来精致自然感的魅力。
艺术漆
现代简约
饰品
窗帘
现代
简约
客厅
灯具
沙发
混搭
轻奢
瓷砖
电视墙
简约
现代
地毯
客厅
沙发
艺术漆
混搭
轻奢
现代简约
瓷砖
电视墙
窗帘
屋主偏爱幽暗的灯光,客厅采用无主灯设计,用多层次的灯光搭配,满足不同情境下的需求。在自然光中,落地灯与软装装饰散发出金属的辉光,而点亮灯光后,则折射出不同氛围。
餐厅
餐边柜
饰品
现代简约
绿植
餐椅
现代
简约
灯具
餐桌
混搭
轻奢
橱柜
瓷砖
炭黑色吊顶延伸至餐厅一侧,在餐边柜上方缓缓垂落,为空间增添温柔涌动的戏剧感,烘托餐厅的独特氛围,为日常三餐或亲朋聚餐带来仪式感。
餐厅
装饰画
现代简约
绿植
餐椅
现代
简约
艺术品
灯具
餐桌
混搭
轻奢
瓷砖
简约
现代
餐椅
餐厅
餐桌
灯具
混搭
轻奢
现代简约
瓷砖
餐桌上方的灯带设计与电视背景墙处呼应,不论是亮起的灯带明晰的分割,还是自然光下由高差带来的微妙差异感,增添空间层次感的同时,也避免空间被切分得过于零碎。
简约
现代
餐椅
餐厅
餐桌
灯具
餐边柜
混搭
轻奢
现代简约
瓷砖
橱柜
餐厅
餐边柜
现代简约
绿植
餐椅
现代
简约
艺术品
餐桌
灯具
混搭
轻奢
橱柜
瓷砖
餐厅
餐边柜
饰品
现代简约
绿植
餐椅
现代
简约
灯具
餐桌
混搭
轻奢
橱柜
瓷砖
用一些小元素,保持空间的节奏感。阳台吊顶稍微挑出,加深框景的感觉,一块赏石用不规则的形态,带来自然的松弛感。水吧台同样用拉丝黄铜板搭配绿植,做元素的呼应。餐桌则结合天然石材与金属,是符合空间形态和使用场景的分量感。
置物架
现代简约
嵌入式家电
开放式厨房
现代
简约
艺术品
灯具
混搭
轻奢
厨房
橱柜
瓷砖
“对软装的挑选、购买、使用、搭配,是持续进行的‘审美积累’的过程”。我们借用橱窗的概念,在餐厅通向厨房的一面做了展示区,用于摆放画作、手办和其它摆件,展示屋主趣味所在。
简约
绿植
现代
玻璃移门
灯具
混搭
轻奢
现代简约
瓷砖
阳台
“广庭怜雪净,深屋喜炉温”。远近、冷暖、广狭,不同甚至截然相反的感知,挑逗着神经,使感觉力丰富、敏感起来。结合地理景观优势与屋主需求,我们最终选择将阳台做成半封闭、半开放的形式。
屋主喜欢绿植,我们将阳台部分开放,做成露天小花园,随着季节荣盛枯败的植物,向十里江湾开放的景观,远近之间拉出独特的景观角。
封闭的部分抬高,做成开放的茶室,蒲团矮几,沉香小炉,是屋主放松休闲之处。
简约
现代
定制柜
衣帽间
混搭
镜子
轻奢
现代简约
衣柜
瓷砖
简约
现代
定制柜
衣帽间
混搭
镜子
轻奢
现代简约
衣柜
瓷砖
将主卧旁的次卧并入,改为衣帽间,一面做顶天立地的封闭柜体储物,一面用模块化开放架,开放架背景表面做仿金属的特殊肌理,顶面则用镜面不锈钢,利用反射拉高空间视觉效果。
简约
现代
定制柜
衣帽间
混搭
轻奢
现代简约
衣柜
瓷砖
简约
现代
定制柜
衣帽间
混搭
轻奢
现代简约
衣柜
瓷砖
仿旧的,带来粗粝感的金属元素恰好与过道裸露的梁体相称,过道原为两间卧室各自独立的阳台,我们将它打通,表面使用仿水泥的艺术漆,突出空间的结构。
相关案例推荐
研己设计
设计师相关作品
编辑精选

粤公网安备 44010602000156号