前言:
本案位于上海梧桐区的核心地段,长乐路靠近安福路附近,用房产中介的话说,就是“十里洋场,衡复风貌”。
小区也很有意思,只有一栋临街的法式小高层,仅24户,原本是用于外事的公寓楼,后来才开始作为住宅在市场上流通,据说当年开盘即被“秒光”,old money 的实力还是不容小觑。
业主从小在国外出生长大,决定回国发展后,购置了本套房产作为婚房。在生活方式和审美上,俩人的接纳度比较高,所以才有了将如此昂贵的房子,三房变一房的方案。
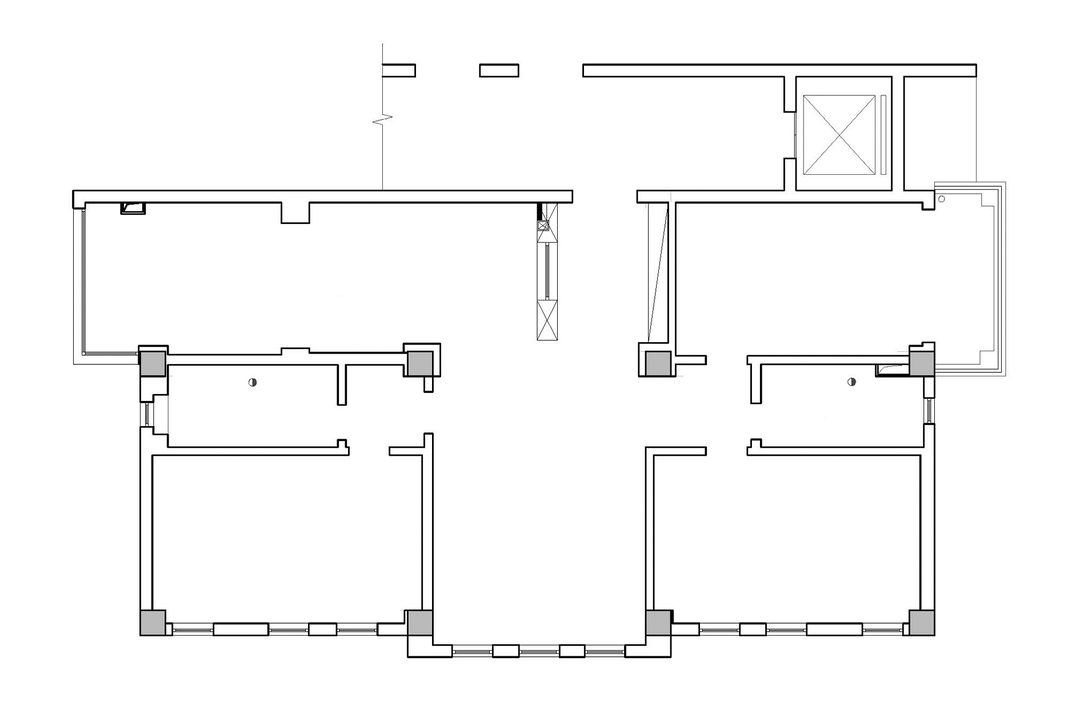
房屋原本是作为外事公寓使用,原本三房两厅的格局,不符合年轻业主二人居的生活方式,所以需要进行完整的改造。
建筑本身的优势很明显:
1. 东面是上海老式里弄,原滋原味的老上海风貌;南面是长乐路,窗外正好看到梧桐树的树冠;西面是小区的绿化,绿树成荫;北面入户。
2. 框架结构,墙体都可以进行拆改。
本案做平面规划时,主要考虑两点:
1. 窗外景观的利用。业主购置这套房产,也是景观起了决定性因素,需要充分发挥它的价值。
2. 仪式感。不同于小户型注重功能,这样的大宅里,更在意营造生活的仪式感。
根据以上两点,本案的改造均围绕“借景”与“融合”展开:
1. 入户玄关的借景,与家务间的融合。
2. 餐厨区的借景。
3. 客厅与书房的融合。
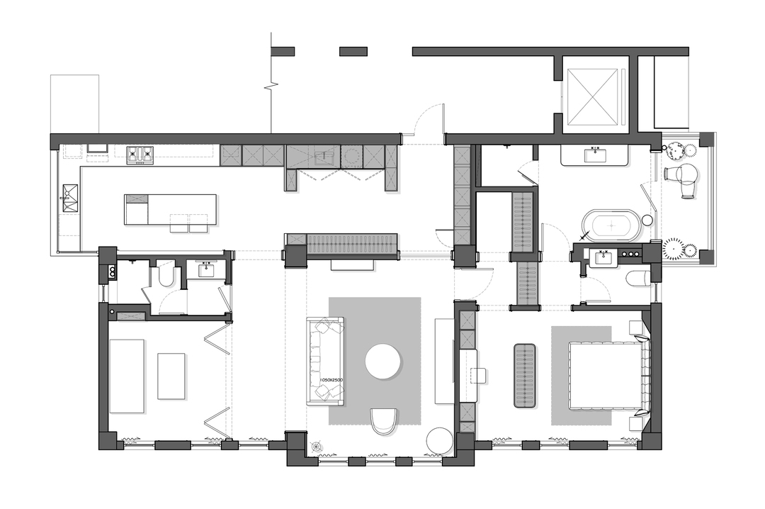
4. 直接将一间次卧改造成浴室,并入主卧,形成一个超大尺度主卧套间。
这套案子里,我最喜欢的,就是对主卫的改造,既有室内外的借景融合,亦有新居住体验与老上海风情的呼应,所以放在前面先讲。
在上海很有意思,市区的豪宅里,很大一部分溢价是给景观的,比如同一栋楼里,能看到黄浦江的房子,就会比看不到江面的房子要贵很多。本套房子也是同理,一张窗景,就能定位出房屋所处的大致方位,浓浓的老钱味。
一墙之隔的外面,就是有着百年历史的老式里弄,坐在这里喝上一杯咖啡,仿佛能穿越到“十里洋场”。
原本这里是次卧空间,我们将之改造成了一个拥有大开间的主卫。仪式感,某种程度上,就是一种浪漫的浪费。
说一些改造的细节:
1. 阳台是保留原有的,做了翻新处理。
2. 阳台门用的是内置百叶,相比窗帘,会更清爽。
3. 墙面用了半墙的宝格丽大理石,可以解决防水防潮问题,是业主亲自去我们石材工厂挑的。
4. 地面是大理石马赛克,脚感非常好,对铺贴师傅的手艺要求也很高。好的大理石马赛克,每一小片都是做了磨边倒角的,很费工。业主希望地面呈现编织的效果,我们从石材到美缝,来回选了好几款,又到现场比对了好几次,跟师傅仔细交代,才得以实现。一般如果找不到手艺特别精细的师傅,千万别尝试这种石材马赛克的铺贴,贵还容易翻车。
5. 顶面用的是大金的厨卫专用空调,不怕潮气。
传统卫生间的墙面,通常会用瓷砖或大理石铺设,这里沿用法式石膏线条+防水涂料,营造温暖松弛舒适的感受。
悬空的双台盆,同样用了宝格丽大理石来做台面。石材的圆弧倒角,为了实现连纹的效果,供应商也是被折腾得够呛,质感都是用细节磨出来的。
淋浴房,业主希望能找到一种粉嫩的色调,石材里面挑了好多,都没找到满意的,后面就从德赛斯的岩板里选到了一款,现场质感非常好。
特别说明,将次卧改造为卫生间,是需要具备一些硬性条件的。
1. 上下水的处理,我们依旧借用原来主卫的上下水管道,实际用水区域改造的都不算太远,都还能接回原管道,地暖的抬高也解决了排水坡度问题。
2. 防水处理,整个空间我们是重新做了多层的防水保障。
3. 马桶没有移位,一是技术难度,二是楼下邻居的考虑。
回来讲入户。
原本入户没有玄关,能直接望进室内。
现代生活里,许多家庭开始重视“落尘”这个概念。例如:快递盒不想带家里、到家要先洗手等等……本案设置了放-换-洗的系列动线——入户进门,面向室内,直接把手上的东西,先放在右手边的开放柜,接着转身换鞋、进屋洗手。
入户换洗之后,就是真正的归家感,内外身份的转换,能更轻松地享受家的感觉。
女主人从小生活在国外,本身就读的也是艺术类院校,非常时尚。一组镀膜玻璃玄关柜,收纳了女主人常用的鞋靴包包。平时不开灯的时候,作为镜子,能让女主人出门之前整理仪容,开了灯,就能让人一眼就看清陈列的鞋靴款式,不用打开翻找。
玄关开一扇室内窗,向客厅借景。
梧桐光影透过玻璃窗映入玄关,一开门就能感受四季流转带来的美景,充满回家的仪式感。
视线延伸,长廊尽头就是开放式餐厨区,西向的梧桐景观映入室内,又是一片绿意映入眼帘。
西面长廊,左边是满墙收纳,放置男女主人隔夜的大衣和一些常用杂物,右边则是家政区。
日常盥洗衣物的家政间,同时承接了回家顺便洗手的功能。为什么把家政间设置得靠外:
1. 洗烘机器工作时,会产生噪音,设置在离卧室远的位置,不影响主人休息。
2. 家政间作为一个软性的区域划分,能够方便阿姨在公区工作,不打扰到室内主人生活。通常家里配有家政阿姨的,需要考虑将工作区域设置尽量靠外,确保与主人动线少重叠或不重叠,让双方不管是活动上还是心理上都感到舒适。
回到平面图看,不论是东西横向,还是南北纵向,视线都是完全通透的。
这样的布局让室外景色得到最大化的利用,而且视线上没有遮挡,十多米的纵深一览无余,极大改善采光的同时,让空间更显开阔。
业主夫妇的用餐习惯比较西式,且原始餐厨区狭长,我们于是保留开放式餐厨区,并用中岛代替餐桌。中岛作为餐桌,也是为了保持更高的坐姿,可以欣赏室外风景。
中岛下设置了酒柜,业主平时在家吃饭的时间较少,但会时常在这里享用一些小食和餐酒。
中岛的岛台,是我们做好钢结构基础后,用石材包起来的,也是业主去我们大理石工厂挑的一块玉石石材。
从餐厨区的角度望向玄关长廊。
虽然不常做饭,但按业主西式的生活习惯,餐厨的功能都需要完备。
从客厅望向餐厨区。
空间转换之间的通道,用了门套包裹的方式化解梁柱结构,让轻法式线条营造高挑的视觉效果。
左侧沿用竖向格栅的方式,设置客卫隐形门,我们后面细说。
业主夫妻从小在海外长大,女主人还是艺术从业者,对软装的品味和要求比较高。
左侧的白色落地灯来自Flos,而沙发茶几等全套软装则来自B&B,均为意大利原装进口。来自荷兰品牌Moooi的烛光吊灯,营造复古晚宴之感,为家增添一分浪漫的气息。
原始的一间次卧打开,成为书房,扩大了客厅面宽。
很多业主的居家办公需求,并不止是一间独立安静的环境,更多地还是需要一边办公时,与家人也有情感的交流。于是书房应用了折叠门,打开时与客厅融合,男主人平常办公也能与女主人聊聊天,需要线上会议时关闭就好。
右侧客卫,为了化解卫生间对着客厅,保护隐私,用了格栅隐形门。
最初设计时,业主夫妻本想再过几年二人世界,项目落地时却迎来了意外之喜。
书房后方,就是客卫。原始客卫与书房之间,有一根管道,我们在确保淋浴房空间充裕的前提下,为书房借出了一段书柜的空间,同时将管道化解。
一个卫生间岩板铺贴的技巧:大板自上而下铺贴,让切割拼缝留在视线下方,保证空间的整体连贯性与美观。
项目坐落于梧桐区,周围建筑受保护,为了保留统一的外立面景观,物业规定不能换窗。于是在设计之初,就需要把保留原窗考虑进方案中。
窗内是轻法式的慵懒,窗外是老梧桐区的腔调,室内外景观交融,成就了新上海的洋气。
拆除完成后,顶面留有两处八字造型不能去掉,于是沿用这个造型,给客厅做了个八字吊顶,更添复古风情。
客厅反方向,为了与八字顶对称,将空调设备也呈八字形态安装,使整个顶面形成八角吊顶,保留层高的同时,别有意趣。
从这个角度看门套化解全屋梁柱的方式,更加清晰。
从客厅,可以透过室内窗看向玄关,直接看到是谁回来了。
从客厅望向卧室。
全屋都做了感应踢脚灯。
相关案例推荐
史鹏巍
设计师相关作品

粤公网安备 44010602000156号