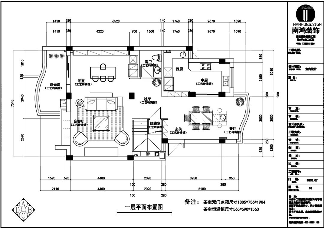
前言: 本案为300方现代轻奢风格的叠排设计。业主希望居住的空间能够兼具明朗和优雅,家人也能在此自在行动、温馨交流。现代的黑白灰作为主框架,木色和大地色佐配,共同营造轻雅的空间氛围,同时设计还使用了绿色、橘色等跳色来做居室内的视觉亮点,增添艺术感的格调。
现代
艺术品
灯具
客厅
沙发
饰品
轻奢
瓷砖
电视柜
电视墙
窗帘
中正的客厅空间,直曲线和谐交融,平衡的线条感拉出沉稳有力的框架。金属材质装饰上下,室内每一寸细节的铺陈,都在展示着轻奢美学的魅力。
黑白灰的色彩低调烘托着现代时尚氛围,营造从容雅正的居家格调。孔雀绿单人沙发椅成为空间中颇有趣味的一笔,室内光感丰沛,映照得所有家具熠熠生辉。
生活的丰盈和精彩尽数融汇在精简的设计笔触之中,柔和的木色与大地色呈现自然的力量与意境,让居家生活回归到本真之中。
电视背景墙的材质是岩板,华丽的石材用来铺垫轻奢格调是再合适不过了。
客厅与茶区融合为一,构建起了方便交流互动的“社交模式”,另一方面也不妨碍居者自主切换为各自独立的“陪伴模式”。
餐厅
装饰画
餐边柜
隔断
饰品
绿植
餐椅
现代
艺术品
灯具
餐桌
轻奢
瓷砖
餐厅延续了低调平和的大地色系,室内立面为避免白墙的单调而使用了素雅的墙布装饰,岛台的加入方便了备餐、收纳、洗手以及各种电器的使用,实用的功能有助于打造井井有条的就餐场景。
壁龛
现代
浴缸
浴室柜
镜子
轻奢
隔断
淋浴房
瓷砖
卫生间
卫浴空间巧妙地用石材、玻璃以及轻盈的窗帘来打造通透的质感,光线折射出梦幻光影,让氛围更为悠长。淋浴区、马桶区与浴缸、台盆分离来提升空间的实用性,各个功能相互独立,互不打扰,深刻诠释设计的周到关照。
现代
地板
定制柜
灯具
饰品
轻奢
床品
床
床头柜
卧室
窗帘
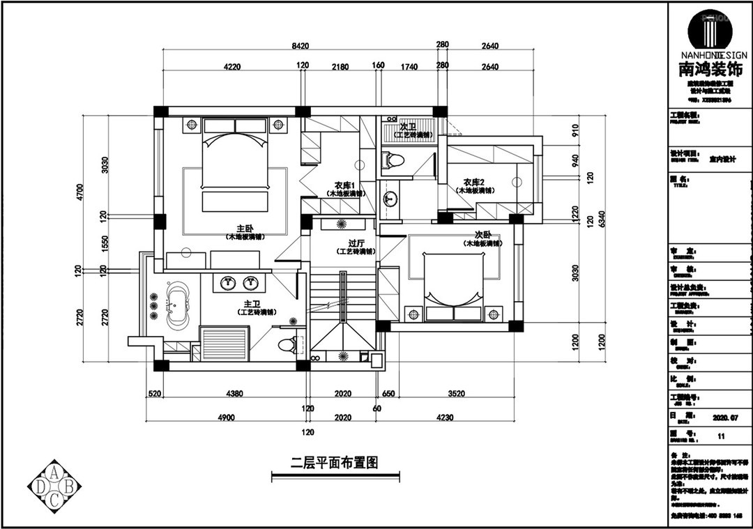
主卧摒弃繁杂,凭借中性的色彩和简洁的线条塑造了空间的平和气质,背景墙通过硬包与软包的拼接制造出了视觉层次。
次卧沿用优雅沉静的色调,舒适静谧、轻松自在的氛围感借由色彩缓缓延伸开去。
相关案例推荐
浙江南鸿装饰股份有限公司
设计师相关作品

粤公网安备 44010602000156号