前言:
以业主的需求为出发点,结合现代美学对空间进行重新划分,让区域得到最大化利用,同时在硬装上塑造简约的高级感,让简单也有格调,看似平淡,实则别有洞天。
本案以奶油调微水泥进行墙顶通刷,细腻柔和,自带高级肌理感,原木点缀其中,打造轻侘寂氛围,静谧温馨且质感丰富。简约的色彩、层次化的模块处理,搭配竖向的线条延伸空间的高度,一切都精致的恰到好处。
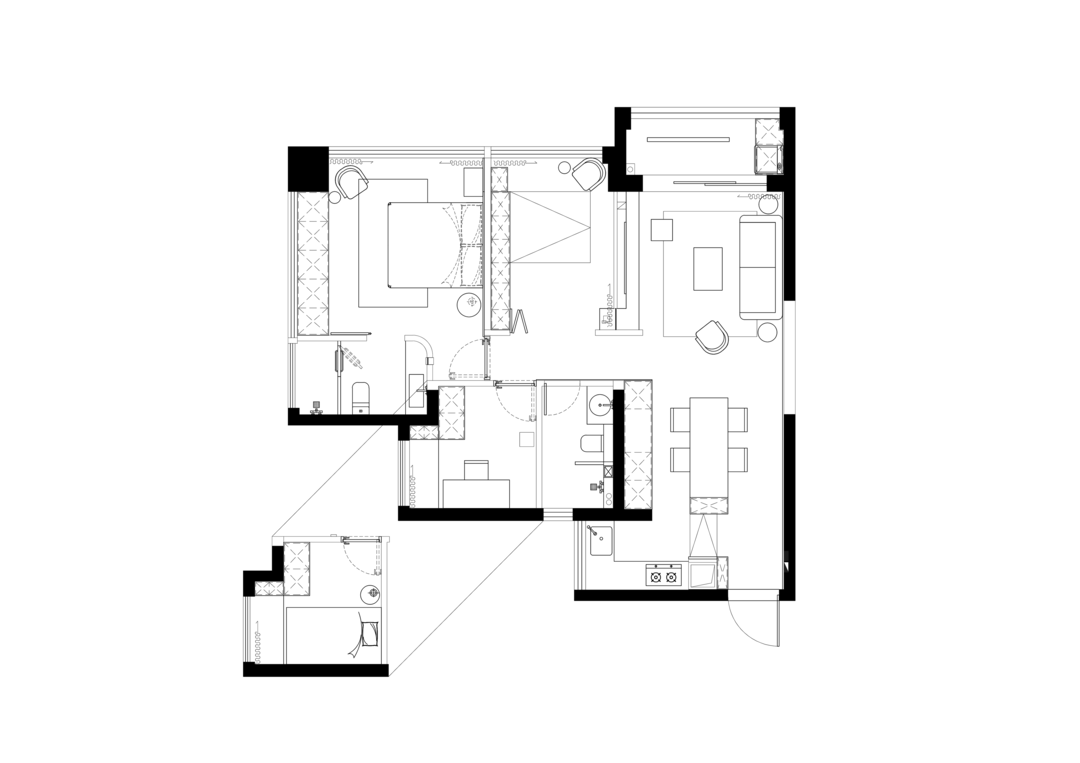
布局上空间形成隔而不断的联动关系,区域关系划分明确,功能性实用且便捷,满足多变的家居生活场景。
厨房、玄关以及餐厅建立互动,通过可调节的挡板变化关系,灵动有趣,同时向外扩展厨房台面,提高空间利用率。
客厅电视墙造型独特,半墙设计与多功能房建立互动,相互借光,灵动有爱,释放客厅开阔度,居家时光更加惬意自在。
1.餐厨区能形成洄游型动线
2.一间多功能房兼顾次卧的功能
3.独立书房
4.客厅有亲子互动的区域
1.厨房做半开放式,与玄关和餐厅形成联动关系,餐桌居中摆放,餐厨洄游动线便捷宽敞;
2.北向次卧做多功能房,设计收纳柜+翻板床,既是亲子互动区也能做客房;
3.电视背景墙做半墙设计,上方以玻璃隔断,与多功能房形成联动,空间开阔且灵动;
4.主卧卫生间采用弧形隔断,镂空设计打造走廊端景,景深效果高级灵动,主卧更有设计感;
5.全屋墙顶一体做微水泥,散发柔和细腻的高级质感,主卧吊顶采用圆弧设计,个性化处理吸人眼球。
餐厅纵向布局,餐桌靠墙延伸,居中而置形成洄游动线。全屋以奶油白微水泥为基调,自带高级感,原木与雅致黑点缀其中,丰富空间的色彩层次,简约不失质感。
岩板桌面搭配藤编餐椅,一副黑白调艺术感装饰画点缀餐厅背景,现代气息格调满满,共同营造出精致高雅的用餐环境。
从入户看厨房,可调节搁板将空间隔而不断,建立灵动的交互关系,使得狭小的厨房空间更加开阔多变,同时在有限的空间里增加储物量,同时拓宽通往其他空间的主体动线。
从餐厅看厨房,洄游动线流畅便捷,靠墙打造餐边柜,同时拓展厨房功能,中西分厨,缓解中厨压力,整体清爽美观,小厨房向四周借光,舒适自在。
从入户看厨房,可调节搁板将空间隔而不断,建立灵动的交互关系,使得狭小的厨房空间更加开阔多变,同时在有限的空间里增加储物量,同时拓宽通往其他空间的主体动线。
奶油白微水泥质感细腻柔和,营造舒适惬意的温馨情愫,木质的家居带来浓郁的自然气息,搭配无主灯设计手法,扩大空间感,显得更加的宽敞明亮。
大面积的奶油白治愈且浪漫,柔和的暖光落地灯提升温馨感,空间氛围简洁干净,散发柔美气质,令人神往。
布置惬意的豆腐块的皮质沙发,墙面背景留白,以线条与色块塑造高级的层次感。木地板通铺全屋,让整体空间更加的细腻,给人以恬淡安静的氛围感。
搭配原木底座的玻璃茶几,契合全屋质感,清透简约。纯白梦幻帘过滤出柔美日光,洒落在奶油调微水泥上,细腻高级感蔓延全屋。
落地灯向四周传递温暖光源,格栅板上方同样内嵌灯带,辅助夜晚温馨氛围,肆意享受家的疗愈感。
摒弃传统的电视墙做法,我们将功能与空间感达到平衡,采用半墙设计,上方以玻璃隔断,增强开阔感的同时,满足两个空间的实际需求,设计感也完美彰显。
侧面墙体以水磨石装饰,搭配黑色岩板电视墙底座,木调与石材相逢,硬朗与温柔交融,日光通过镂空端景穿梭而入,走廊清幽且充满意境,景深效果高级静谧。
从静区走向动区,背景墙同样制造雅致端景,通过绿植将自然与纯净呈现出来,家的每一处来回,都充满仪式感。
顶部安装蜂巢帘,需要时放下帘子,满足卧室隐私需求,空间灵活多变,按需选择,实现家居生活的场景多样化。
另一侧定制通顶收纳柜,原木开放格内嵌灯带,丰富柜体层次,同时设置壁挂翻板床,不用时则折叠进柜,满足临时客人留宿需求。
多功能房平时主要作为业主的休闲场所,满足亲子互动需求,开阔且自在,娱乐时光惬意有爱。
主卧延续整体基调,超大弧形吊顶搭配空调出风口,顺势包裹出睡眠区域,美观大气之余,更显柔美的高级格调。
与沙发背景墙异曲同工,线条及模块设计彰显层次感,软包床头嵌入墙体,黑白色块碰撞出时尚高级质感,延伸出定制悬空床头柜,让简约更有格调。
黑色线性壁灯点缀夜间氛围,全屋多处利用纵向的线条感向上延伸空间高度,整体更加大气开阔。
床头另一侧以原木饰面板上墙,黑色实木边几代替床头柜功能,色调搭配和谐高级,一切还原自然景象,营造出最简单舒适的睡眠环境。
两处弧线设计自然过渡,流畅且柔和,与微水泥质感相得益彰,共塑温馨感奶油卧室。
超大玻璃窗搭配日夜蜂巢帘,美观简洁,减少窗帘带来的厚重感,采光丰盈,卧室散发清爽闲逸之风。床尾打造满墙衣柜,完美与吊顶结合,墙柜一体,极简美学实现美观与实用的完美统一。
主卫采用玻璃移门隔断,透光不透人,两个区域相互借光,透亮且美观。极窄边框与黑色线条相互呼应,利落感带来清爽精致的氛围效果。
相关案例推荐
时光筑造空间设计
设计师相关作品

粤公网安备 44010602000156号