前言: 房子用于做婚房,业主两人之前在日本长期居住,还保留着那边的生活习惯,他们是二次元爱好者,家里有大量的手办和娃娃,另外家里养了一只猫,叫椰子,他们主张不用为孩子、可能到来的长辈或朋友留房间,用餐的地方不用考虑单独的餐厅,矮桌就可以,直接坐在地毯上。需要个能直接出冰块的冰箱,因为他们习惯喝冰水。
▲一层
改前:①原本是一个空白的矩形,楼梯在右边,不过只是留了个洞,所以改动楼梯的成本并不大;
②整个空间需要结合业主的需要进行重新划分和布局。
改后:①一层功能区有杂物间、玄关、家政间、客厅、两间游戏室、岛台和西厨以及客卫;
②楼下下方收纳和猫窝一起;
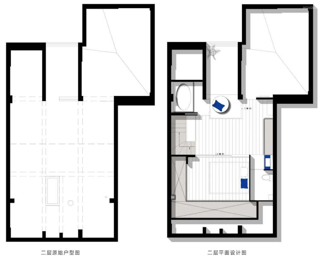
▲顶层
改前:①面积小,立面造型错综复杂,尤其靠近墙的位置很多用不了;
②和一层一样一片空白,需要业主理清自己的需求设计师才好入手,好处是不用拆改。
改后:①卧室、浴缸、卫生间、露台、收纳区可以满足需求,且采光也很好。
推开门,玄关隔断了一定室内的情况,镂空的立面造型简约,连接着室内外的光线;洞洞板随意组合解决挂放的收纳;左边一间杂物间存放的都是高频率使用的物品;上抬式玄关进一步隔绝室外的灰尘。
入户右手边是全身镜,成品鞋柜立于一边,吊顶筒灯和灯带结合,照射在胡桃木色的家具上,更显温馨。图片的左手边是家政间,洗衣机和衣服收纳都在这里。
正式进入房间后,全屋映入眼帘,右前方是西厨和岛台一起,左边是楼梯,还有椰子(猫)的“领地”,平整的布局,让透过窗子的光足以顺利的照亮全部室内,西厨在光的过滤下一不小心被我们“屏蔽”。
设计师紧跟日式原木风的主题,同色系列的电视柜略跳脱出空间。值得一说的是这个桌子,底下可以发热。冬天,直接用被子盖住,腿放在下面,两人可以一起打游戏追剧。
一盏日式的吊灯轻盈不累赘,猫窝至于窗边,且可以爬上爬下,椰子能够随意活动,沙发的一边日常会放着业主的跑步机。
深绿色沙发在满是原木色的氛围中尤其吸睛,没有绿植的参与,但可以调动情绪;初音未来的形象以各种方式出现,纸巾盒就很友爱。
他们基本不需要进行油炸甚至翻炒类的油烟动作,油烟机和电磁炉就已经满足所有的需求,冰箱放在整个空间的中心区域,方便所有空间的使用。
站在楼梯上,岛台设计石材和原木碰撞,搭配吧台椅,这里就多了一种可能。过去与未来的身影在这里交错,外出或回家、椰子或等待或玩耍,他和她一起打扫或用餐,尽皆可能。
简约的吊灯装饰平淡的顶面,灯光打在岛台上,在灯下彼此谈心,光芒和着温暖,促进理性的能量。偶尔椅子会被椰子霸占,没关系,都是对它的宠爱。
只容纳一人的电竞室,原本一人一间,现在主要是男主人再用,满桌的手办和背后墙上的挂画都是从日本打包带回来的,每一小件都有只特属于它的故事。
楼梯左边是客卫,楼梯正下方都是收纳,柜门根据楼梯的形状顺应设计,内部目前全部是空置状态,后续可以收纳需求在细化。弧形镂空的地方是椰子的地盘,也让这处空间更通透。
从地板到楼梯拾阶而上,两阶深灰色石材台阶过渡,带着年轮的木质台阶以静的姿态,沉淀着动态时光;玻璃扶手“嫁接”木质边缘,造成扶手悬空的错觉。
嵌入式浴缸更省空间,周边做宽可以放置临时使用的物品,冲洗方式多样,可以自由选择,打扫浴缸也很方便。采光充足且空气流动性也很好,卫生不用担心。
竹节围绕前端进行装饰,旁边简易的花架养些省心的绿植。因为不允许封顶,所以只能这样做敞开式。
合肥设计师高翀
设计师相关作品

粤公网安备 44010602000156号