前言: 房子位于海淀区首师大的家属院,主要用来小朋友上小学居住,房子属于一居室,建筑面积45平米,委托人希望可以改造出两个睡眠区,两个睡眠区最好分开布置,希望有活动的公共区域,可以放下电视、壁炉,卫生间最好干湿分离,要有可以洗脸化妆的地方,可以不考虑餐厅,同小区外婆还在租住一套,平时会去那边吃饭
▲改造前
1:进门空间狭小,视线不通透
2:进厨房的动线不够合理,产生空间面积浪费
3:卫生间面积小,使用率不高
4:空间储物严重缺乏
5:目前格局无法实现两个相对完整的睡眠区
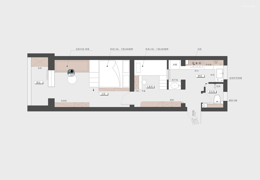
▲改造后
1:打掉玄关原始隔墙,扩大玄关面积,延伸进门视觉感受
2:重新规划进厨房的动线,把原来浪费的面积做洗手池,实现“干湿分离”提高卫生间使用效率
3:砌墙把儿童房和洗手池厨房隔开,留出通风采光窗,内嵌完整盒体,抬高睡眠区,下做储物,充分利用空间
4:主卧室本着纵向利用空间,同样利用盒体内嵌,抬高睡眠区,利用抬高部分做储物,增加储物楼梯可以轻松上下床
5:由于睡眠区利用多功能盒体的方式设计,不占用空间,轻松留出小客厅活动区域
6:功能和储物很好的结合到一起,把小户型功能的重复利用发挥到了极致
▲轴侧分析
内嵌两个多功能盒体实现储物、睡眠的生活需求
“红蓝椅”是我一直非常喜欢的一把椅子,案例里边也有借鉴红蓝椅的色彩元素
父母卧室设置在了有阳台一侧的空间,与儿童睡眠区有门阻隔,可以更好的保证隐私,床垫是标准的1800*2000,由于要留出小客厅的部分,选择了纵向利用空间,父母床抬高1.1米,下做储物区,得到一个接近4m³的储物空间,最大程度有效的利用空间面积满足储物需求
通过三步楼梯可以轻松的上下床,楼梯一侧也做储物,楼梯是一个整体,可以移动,不影响床下储物,蓝色元素延续到了楼梯踏步,与隐形门颜色相呼应
▲父母卧室改造前后对比
儿童睡眠区同样抬高,下做储物,增加储物楼梯方便上下床,面向北边窗户一侧留了采光窗,光线可以很好的到达睡眠区,睡眠区的圆形洞口可以更好的通风,睡在里边不觉的闷,也方便和外边的环境、人产生互动,儿童睡眠区也可以理解为一个完整的“盒体”,在里边切割出所需要的功能空间
儿童睡眠区旁边就是学习桌,满足平时小朋友的学习、阅读,吊柜和抽屉用来收纳学习用品和书籍,吊柜较低部分做开放格,可以放平时经常阅读的书籍,方便小朋友拿取
▲儿童睡眠区改造前后对比
小客厅突兀的管道刷了与墙面同样的颜色,起到弱化管道的视觉效果,卡座是定制,坐垫下方同样可以用来储物,阳台绿植的加入,为空间注入了生命力,电视柜不仅可以用来储物,深色也让空间更加沉稳,电视柜下方是委托人比较喜欢的壁炉,可以想象冬天外边漫天大雪,屋内点上壁炉温暖如春的惬意生活!
统一墙面的整体色调,卡座上方的壁灯跟墙面也是同色系,黄铜茶几丰富了空间材质层次,周末点一香薰,享受与家人在一起的幸福时光!
入户门左手边是玄关柜,悬空20公分方便放鞋换鞋,下做感应灯带,为晚上起夜去卫生间提供照明,柜体门板内嵌镜子,镜像空间扩大视觉感受,大面积的镜子也方便了日常出行整理仪容,当穿衣镜来使用
厨房可以说是“麻雀虽小,五脏俱全”,集成灶的使用可以省出吊柜空间用来储物,是小面积厨房的不二选择,内嵌的滚筒洗衣机方便日常洗衣,水池下方做了前置、净水,冰箱内嵌的上方吊柜也可以用来储物,厨房的瓷砖借鉴了红蓝椅里边的红色元素,个性十足!
相关案例推荐
李军
设计师相关作品
编辑精选

粤公网安备 44010602000156号