前言: 本套案例是一户幸福的三代同堂之家,房屋的装修风格主要由夫妻二人的喜欢来选择。比起精致复杂的混搭风格,户主更偏爱现代简约风,视觉上显得落落大方,整洁优雅,原木元素又能增添温馨感与归属感。整体保持简约与原木风的空间基调,给人以自然舒适的空间氛围。
❶ 原始客厅阳台两侧墙体拆除,封窗扩大客厅面积,增加茶室功能,达到储物与美观双重功能,电视背景墙打破传统设计,做了满墙书柜,电视做了可移动支架,还把投影幕布隐藏在吊顶中间,实现了娱乐,喝茶,读书三种功能的自由切换。
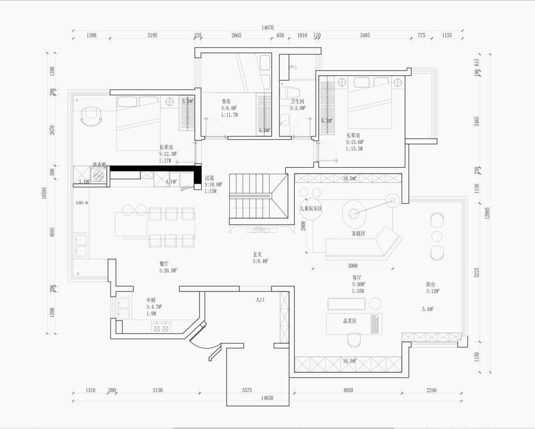
❷ 拆除原始储物墙体,厨房分为中厨西厨两个空间,西厨岛台跟餐厅结合设计,开放式的综合功能生活区使居住者在下厨的过程中还可以与家人互动。
➌ 二楼卫生间干湿分区,干区独立纳入公共空问使用。
➍ 改变主卧卫生间与衣帽间门洞位置,在视觉上形成一个统一美观的平面。
➎ 主卧借用阳台部分面积,增加了阅读休闲区。
➏ 二楼增加了一个阅读区,增加了两个孩子还有家长的亲子互动。
玄关,作为入户的第一印象,要的不仅是实用,更重要的气质在线!玄关墙两侧做了对称的弧形墙板,里两侧做了格栅+石材玄关台,还可以安装个性小吊灯,买一些艺术的装饰小品或者绿植盆栽,整体氛围一下就出来啦!步入玄关,生活画面开启,美的意识被唤醒。与自然同居,烟火可亲,空间秩序井然有序不刻板,人居其间,心情畅达,自在安闲。
客厅的满墙大体量电视柜,贴合户型设计,超大储物空间,收纳功能拉满。采用按压反弹器设计,高颜值显得简洁大气。玻璃柜与开放格相结合,视觉轻盈,空间灵动感强。浅卡其色异型皮质沙发搭配浅色地毯,开启专属的初春仪式感!
茶室区位于大横厅一角,自然原木元素的台面,营造生机盎然又充满禅意气息~充满暖意的杏色乳胶漆,毫不费力的清雅惬意,天花板独特的无主灯造型,层次感十足!靠墙一组收纳柜,底部悬浮留空强调轻盈感,灯带的烘托下,增添几分艺术氛围!
岛台+餐桌一体化的设计无论颜值还是实力都是“强强联合”的存在。餐岛一体的设计,可以最大化的利用空间。强调就餐仪式感的同时,也将入户与客餐厅动线分为一道风景。岩板岛台+胡桃木餐桌,呼应了整个大空间德 主题色调,机具设计感。岛台侧边做了轨道插座,日常聚会、火锅、烤肉、以及偶尔办公都很方便。
卫生间采用干湿分离式设计,各功能各占一角,平分秋色~长虹玻璃半隔断,轻奢风,高颜值,清洗只需要擦玻璃,没有藏污纳垢的轨道,方便打扫。种草了哑光浴缸,黑色五金,想想以后泡澡的日子就美滋滋。人喜欢回归到简单质朴的美好生活中,好的空间也不是一个客观的物理构成,生活美学它远不是一个简单的概念表达,它应该是由生活在此的人的意识决定,是对美好的精神诉求表达。而设计让爱有了温度,空间有了温情。
主卧背景墙是米兰护墙板+格栅+木饰面+LED灯线,可以让整个布局显得更高端大气与温馨。简约风格的卧室灯光设计以简单明亮为主,大部分都是会选择无主灯设计,加上小吊灯衬托床头灯,可以让卧室更加有格调。
卧室设计的好坏,关乎到我们的睡眠~所以卧室的舒适性与氛围感,显得尤为重要。温馨的氛围可以更好休息,让你达到深度睡眠提升睡眠提升睡眠质量。
一面书柜实现多用;展示、书架、储物,沿着墙面设计收纳柜,遵循三分漏七分藏比例,在视觉上实现“刚刚好”。一门到顶设计,外观简约大气,内部储物空间充足。玻璃柜门设计打破了单一的颜色,内部专做展示、乐高、手办、潮玩往里摆就行了,透过玻璃既能展示,又能起到保护作用,还能提升增加整个柜子的颜值。人一旦摒弃世俗之扰,便得到了精神的洒脱,于此,营造一个独处空间,让人静心,在这里与好友,家人怀情听谈,优雅感受生活的从容。
女儿房当然离不开粉粉嫩嫩啦!衣柜也不例外~满墙的设计一顶到底。拒绝平平无奇~女儿房衣柜这样装准没错,好看、实用,可盐可甜~还充满了无限趣味儿。女儿房无需过度的装饰,简单,干净,用必要的留白,来表现生活是需要纯粹的感受。
男孩房的楼梯转角处,我们做了一面柜体,同时采用抽屉、双开门和开放格展示柜的方式来完成设计。男孩房的空间位置是布局中最交织重叠的思考,设计师巧妙的来内筑空间,为小小男子汉实现一方自在天地的氛围而呈现。
5㎡就能拥有II型衣帽间,收纳能力天菜!衣帽间的长度在3350,宽度在2350,占的空间略大,收纳能力强,但是中间距离有1150,避免在开柜门时不方便。
楼梯是贯穿房子上下不可缺少的一部分,有创意的楼梯设计,不只是通行要道,还起到点缀空间的作用,提升整个空间的气质。一动一静是生活的状态,设计要呈现的就是它的韵律,不经修饰的舒适性。
相关案例推荐
张东林
设计师相关作品

粤公网安备 44010602000156号