前言:
本案例是一户幸福的四口之家,业主年龄在30+左右,一对可爱的儿女,儿子6岁女儿2岁,据男主人说,自己很喜欢妻子做的面包,当然妻子也很喜欢做饭,所以在对厨房功能性和实用性的需求上比较下功夫。
· 业主需求:
1、希望主卧卫生间能有干湿分离,使用起来更加舒适一些。
2、希望能有个入户的空间过渡,换鞋放置随手物品的鞋柜组合。
3、需要三间卧室,其中一间做客房兼书房。
4、希望在有限的空间实现中西厨并存,既能半开放又能封闭的厨房,但必须保留生活阳台。
5、喜欢灯光带来的氛围感。
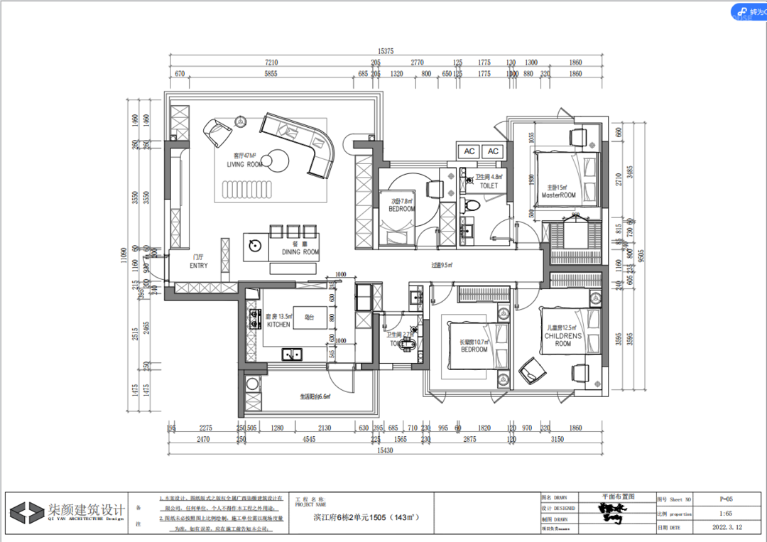
户型优点:
1、户型方正,客厅面积大
2、南北通透,既充分采光,又有利于室内空气流通
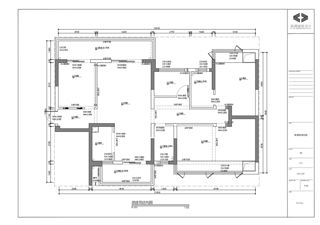
户型缺点:
1、原户型上,厨房较小,采用原始布局无法满足日常收纳以及电器摆放需求;与厨房相连的生活阳台空间有限;
业主要求:
业主想要三个房间,有限的空间能有足够的储物功能;
蒸箱,烤箱,洗碗机需要安排合理的位置,冰箱采用内嵌式
相比较传统入户鞋柜,新颖别致、质感轻盈的悬浮式设计更受大家的青睐。有效避免空间堆积和拥堵,减少大面积柜体带来的厚重感,带来轻盈通透的视觉效果,美观一体的玄关柜既满足进出时钥匙雨伞等小物品的摆放,更利用悬空区域收纳换下的鞋类,一改进门满是鞋的尴尬。
混搭元素哪能少得了贝壳沙发,粉色贝壳沙发再配上深蓝色的岩石沙发散发着本真与精致共存的家的气息。
在无主灯设计的基础上添加智能灯光,不用自己动手开灯啦。浪漫带进室内高频的生活节奏以及紧张的工作压力让现代人更向往自由、简单、宁静的生活。
厨房是烹饪一日三餐的场所,用设计重构空间,厨房亦可变身家人增进情感的空间。在厨房加入中岛,可以作为操作台备餐用,最重要的是有收纳功能。
餐桌是采用的北美黑胡桃木的大餐桌,造型复古,气质北欧,极简的设计思维,放在混搭装修风格别有一番滋味,十分有质感。纯天然木纹,曼妙美丽。实木家具丰富的肌理特色,营造出自然而具有现代感的家居氛围。
餐厅空间构建人与美食之间的联系,让空间生动。这款岛台餐桌一体,台面也变宽敞,不仅方便更多人就餐,还能做此处看书、办公、陪孩子做手工等等...岛台采用的是大理石材质,不仅满足了使用的舒适性和实用性,让整个餐厅温暖起来,让家居生活更轻松随性。
这个卫生间的墙砖采用深灰色大理石,淋浴房地砖则是浅灰色大理石。互相搭配,一深一浅,凸显整体感。既满足了男主人对主卫干湿分离的要求,还做到实用性和空间感。
次卫洗手台采用墨绿色格子墙砖搭配大理石洗手台,亮面靓丽多彩,上墙效果不要太惊艳了,清新舒适、又有点轻复古意味~
前段时间全网爆火的卧室背景墙设计,床头半墙背景+隐藏灯带,营造见光不见灯的效果,半墙使用木饰面材质,原木纹理更有森林质感。高级墨绿色的被子在自己的主卧,拥有不被定义的风格。绿植与烛台的结合,好像春回大地既有黎明的曙光,又有生机勃勃的绿洲。
衣柜内嵌灯带,能起到小夜灯的作用。用低饱和度的粉色做大面积设计,搭配白色,温馨梦幻,长期使用也不会造成视觉疲劳。当世界都在催着你长大的同时,只有女儿房给你带来的温柔才能守住你的童话。
相关案例推荐
张东林
设计师相关作品

粤公网安备 44010602000156号