前言:
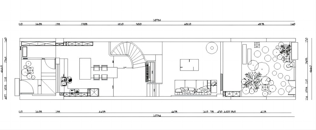
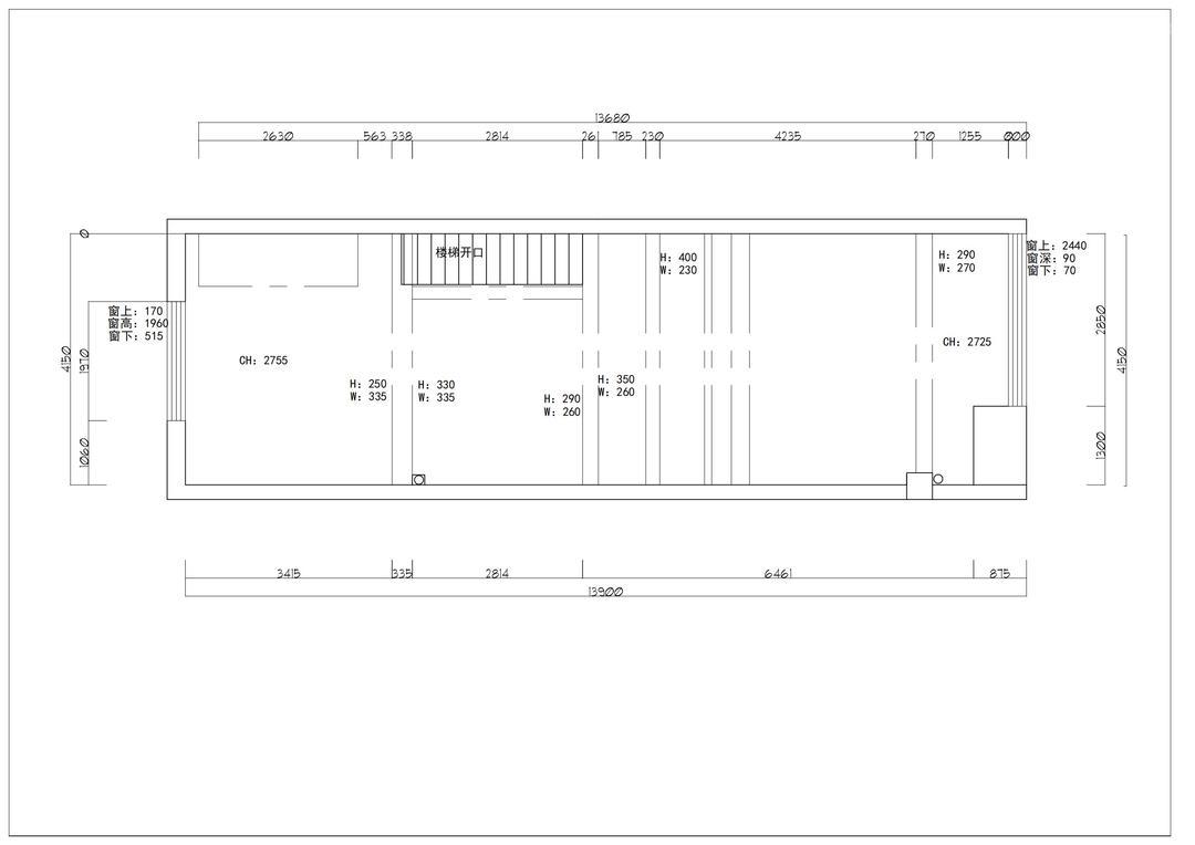
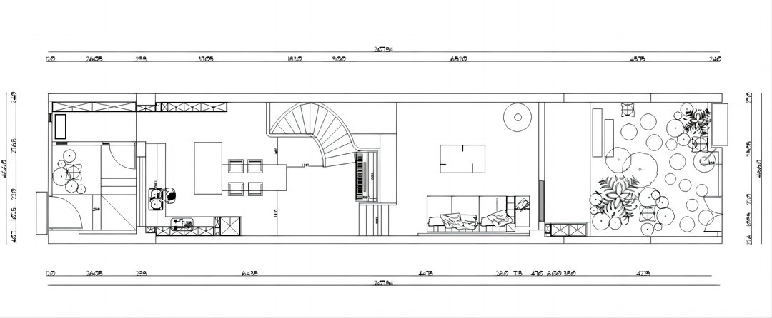
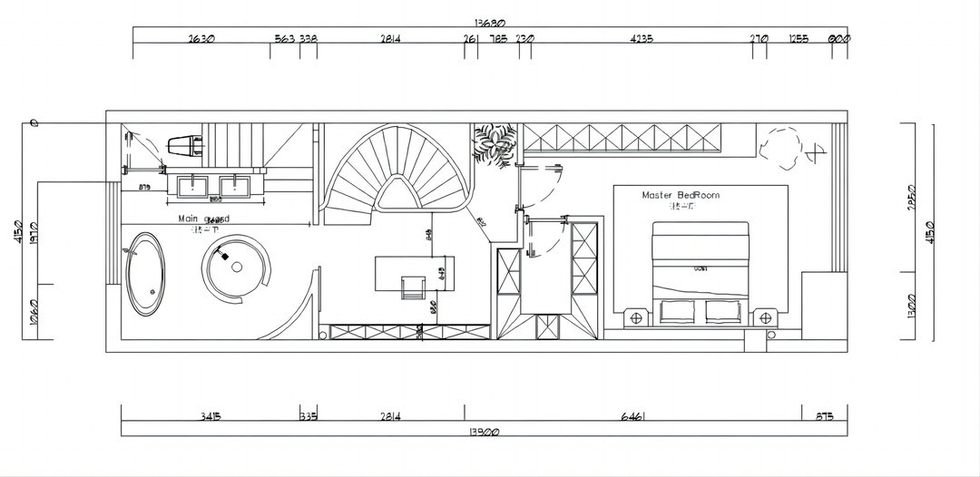
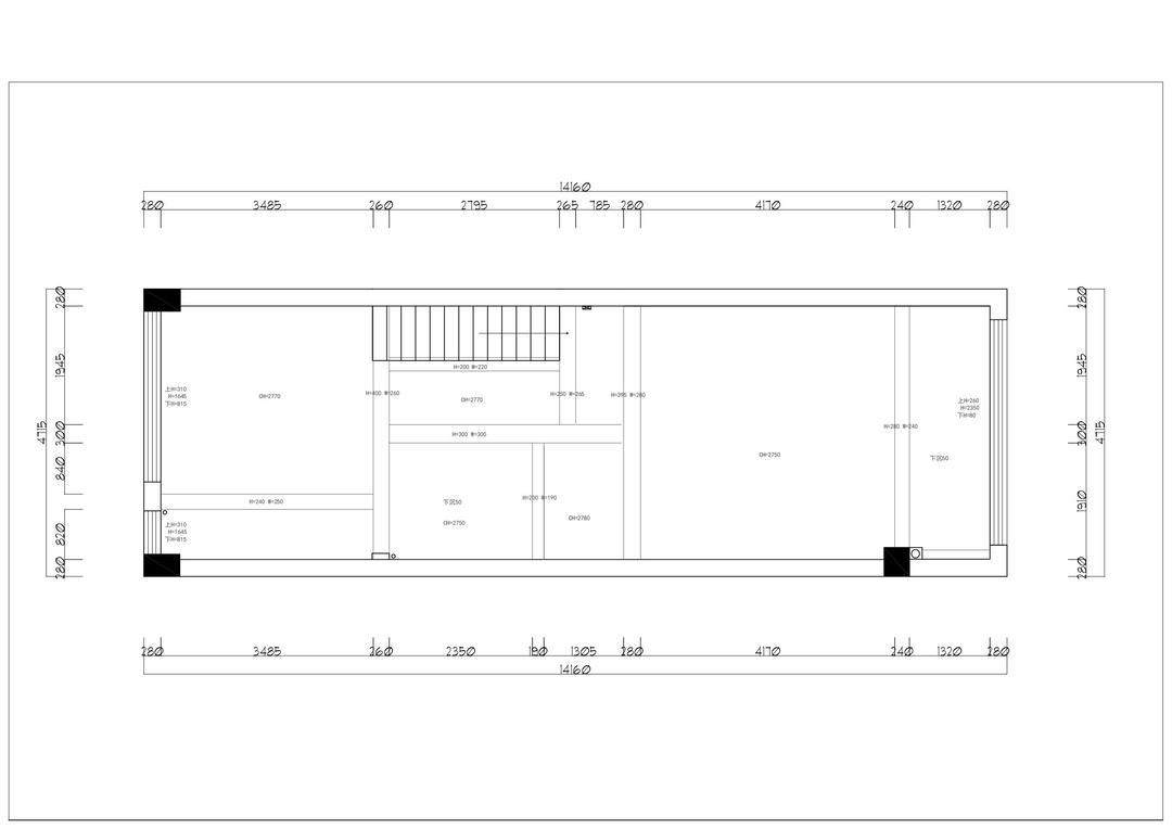
案例设计时间为2020年年底 落地时间为2022年3月 项目为旧别墅改造,房子本身的年龄也有近二十年了,之前的居住情况我也有幸去参观,潮气重,采光差,层高错乱、每层空间出现高低错落的地板完成面,上下不方便且每层之间行动也不顺畅 细长的房型只在前后两端有窗户 好在楼顶有一个小天窗可以解决楼梯的整体采光 改造之前的楼梯 是一个单跑直梯 因为单怕跑楼梯下到最下部容易撞头 后来经过设计调整修改为半旋转楼梯 结构上也做了一些改造,外玄关的扩展也让整个家多了过度的玄关空间同时也解决了收纳问题 餐厨一体的设计改变了老旧的分离状态,让使用空间尽量最大化 二楼主要由两个卧室构成,一个女儿房一个老人房。女儿房根据孩子的喜好设置成了日式床榻状态 三楼由三个空间组成、开放式的洗浴区(单独的马桶间)、书房及主卧空间 四楼还有一个男主人单独的茶室 项目历程相对艰辛,物流也受上海疫情的影响,因为壁炉卡在上海,目前都没有拍摄完整现场照片。
■利用楼顶的小天窗可以解决楼梯的整体采光,改造之前的楼梯是一个单跑直梯,后来经过设计调整修改为半旋转楼梯,结构上也做了一些改造。
■外玄关的扩展也让整个家多了过度的玄关空间同时也解决了收纳问题。
■餐厨一体的设计改变了老旧的分离状态,让使用空间尽量最大化。
■二楼主要由两个卧室构成,一个女儿房一个老人房。女儿房根据孩子的喜好设置成了日式床榻状态。
■三楼由三个空间组成、开放式的洗浴区(单独的马桶间)、书房及主卧空间。
在侘寂的基调上整体采用木制进行搭配。木色,黑色,藤编,隐去多余的装饰,其本质的设计在于自然与人的调和,人本存于自然,在静谧的空间,于朝阳低语,于晚霞呢喃,日照生长夜晚沉静。
巧妙地利用了旋转楼梯的底部留白区域做光源,美观使用。木制的内敛又充满故事的触感赋予家温馨的生活,深浅的木纹搭配出空间的层次感,令人舒心的恬淡意境。
主视觉中没有华丽的元素,结构感和留白赋予了沉静的高级感。几处圆弧形的元素像相呼应,简洁而具有设计感,沉淀岁月的美,淡泊浮华。
浓厚的木制,素净的色调和质感呈现原生态的质朴美感,可见忽隐忽现禅意之美,书房里独具高级的松恐感。
与主卧之间的透景使得整体更加透气,增加一些互动感。自然而至纯,淡泊浮华之感像是更为高级的极简,留白打破穿插的结构在空间中的运营恰到好处。更突出了除去形式感而忽略的内部本身的美。
相关案例推荐
吾同设计
设计师相关作品

粤公网安备 44010602000156号