前言:
有宠物的家庭,装修之初就将之后的生活情景在脑海中绘演了一遍。寻一个闲适的周末,跟狗狗在客厅一起玩耍,就餐时间到了,那就和爱人共做一顿美味餐饭,下午在静谧的精致角落,看看书,喝喝茶,享受繁华都市中的静谧一刻。
这是一对新婚夫妻的婚房,两个人都很喜欢简约的风格,但是又不希望家中过于单调,所以我们最终确定了简约与侘寂的混搭风格,既符合屋主的审美偏好,又将居者对生活的热爱具象化传达至空间。
改造前户型图:
其实整体户型变动不大,但是部分区域采光通风不足。
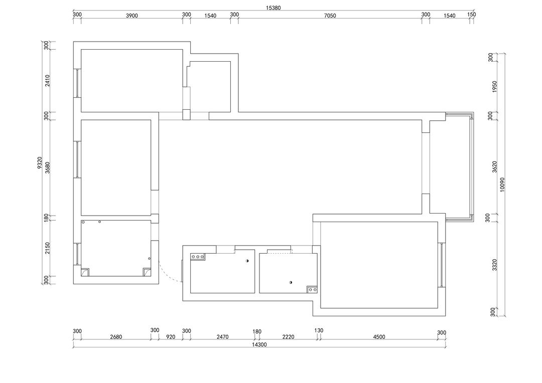
改造后户型图:
设计亮点:
1.本案客餐厅的空间连通性较强,阳台空间包入室内,但做了地台抬高处理,区隔了两个不同的空间,同时又以储物柜进行两者的衔接。
2.利用卫生间外客厅的部分空间,打造出主卧的衣帽间,打造出一个集睡眠、梳妆、换衣、洗漱于一体的卧室套房。
3.中岛+储物柜打造开放式的西厨区,延续了厨房的功能,也让中厨、西厨、餐厅的空间互动性更强。
4.主卧卫生间墙体,部分采用了玻璃砖,为空间增加了更为丰富的装饰元素,同时也保持了两个空间的通透性。
5.全屋设计风格以现代简约为主,棉麻、石膏、木质等天然的材质,又自带一丝侘寂的味道。
踏入家中,一侧的拱形门墙柜,既是引导空间优雅氛围的点睛之笔,也是实用的收纳之地。
玄关柜,搭配上部弧形的壁龛区域,形成了入户处别致的情调。
绿植
简约
现代
玄关
自然风
侘寂
现代简约
椅子
装饰
原木
目光进一步延伸,走廊处用轻简的手法,制造虚实相生的艺术情境,灯光、绿植、藤编长椅,形成轻侘寂的独特韵味。
影音投影
茶几
简约
现代
地毯
客厅
自然风
沙发
侘寂
现代简约
原木
客厅大胆留白,给居者留下充足的人宠互动空间,归家之后,生活的压力和束缚悄然消散。
木质地板叠加纹理地毯,填补空间视觉上的空寂,搭配暖调沙发,家的温馨感在不知不觉间溢满客厅。阳台和客厅联动,通过地面抬高的方式,明确区域界线,巧妙的设计语言,让空间和居者取得精神上的共鸣。
全屋设计风格以现代简约为主,棉麻、石膏、木质等天然的材质,又自带一丝侘寂的味道。业主摈弃了传统的电视机,选择安装投影仪+幕布,所以全屋墙面以留白居多,却也成就了独特简约意味。
客餐厅以一种完全开敞的结构呈现,让小户型有了豪宅的轩敞感,通铺的地板和上方延伸的线性灯,上下呼应,形成视觉拉伸,公区的统一性进一步凸显。
墙面下方的石膏线条,让简约的空间多了几分优雅意味,在上方弧线转角和浪漫光影衬托下,墙面在简约和丰盈之间找到最大公约数。
简约
现代
客厅
自然风
储物柜
沙发
侘寂
现代简约
原木
客厅选用便于移动的模块沙发,棉麻的质地营造出自然舒适的气息。
地台做了加宽处理,根据屋主生活需求,合理划分出两方自由休闲区。地台区靠墙定制的高柜,成为客厅的收纳主力区,轻松整理,减轻屋主家务负担。
柜门局部选择艺术玻璃,空间更显灵动轻盈,柜门周遭的立体线条,与客厅墙面的石膏线条形成呼应,通过细节,增加居室的连续感。
阳台采用了地台设计,并且加宽到了客厅,扩大了阳台活动区的面积。
组合沙发巧妙拼色,灵活的体块座包和天然的棉麻材质,让客厅更加灵活自由。下班归家,放松躺在沙发上,快节奏都市中,享受惬意的躺平时光~
摒弃常规电视布局,以投影仪+幕布的组合,给居者更好的观影体验。收放自如的幕布,丝毫不会造成视觉凌乱,迎合轻侘寂风的整体基调,形成简约又独特的韵味。
客厅和阳台之间,以地台进行空间的区隔。
客厅沙发区细节。
客厅顶部线性灯细节。
简约
现代
自然风
侘寂
油烟机
现代简约
瓷砖
橱柜
厨房
嵌入式家电
原木
厨房收纳柜分外吸睛,清新的粉绿色,让做饭犹如置身自然丛林。吊顶部分点缀优雅花纹,加上有序布置的隐藏筒灯,厨房自带复古浪漫气质。
冰箱
餐厅
简约
现代
自然风
侘寂
现代简约
吊灯
厨房
嵌入式家电
原木
中岛+储物柜打造开放式的西厨区,延续了厨房的功能,也让中厨、西厨、餐厅的空间互动性更强。筒灯+吊顶的形式,构成了西厨区的照明布局
增设的岛台区兼具西厨和收纳功能,分担厨房收纳压力,也让烹饪就餐空间形成功能上的延续。
岛台加装水池,处理冷食,烹煮咖啡茶饮都非常方便,为屋主留下一方饭后闲饮之地,生活更有小资情调。
木质高脚餐桌自带慵懒自然感,搭配融入藤编元素的餐椅,每一次就餐都像在度假餐厅享受美食。
轻奢金属、玲珑玻璃、曼妙光影,渲染出一片艺术之景,日常餐饭在光影材质碰撞中,犹如加了美食滤镜,打造出色味同享的就餐空间。
玻璃砖在空间设计中通常作为隔断、屏风,它半透明的效果保证了私密,同时也能用来装饰遮隔和分割空间。别小看玻璃砖,它的隔音性同样很好。
玻璃砖墙将卧室光线引入卫生间,凸显出室内的色彩搭配,舒适宜人。两个空间也好像从完全独立,到有了若隐若现的关联。
简约
现代
自然风
侘寂
现代简约
床头柜
壁灯
卧室
原木
床头柜与另一侧的梳妆台风格呼应,典雅复古的置物台,让收纳变得更有时光韵味。设计借用软装家具的细节处理,打破时间与空间的既定定律,塑造出一种能够被感知的能量场。
简约
现代
桌
凳子
自然风
侘寂
现代简约
壁灯
卧室
原木
主卫洗手区隔墙外移,形成更加宽绰的洗漱空间,局部隔墙用玻璃砖代替,借卧室窗户引入的光线,妥善解决主卫采光问题。
床头的复古梳妆台,搭配艺术单人凳,为睡眠空间注入更多优雅气质。黄铜壁灯不仅是空间的补充光源,还是卧室的精致装饰,典雅的灯体造型,带人穿越至文艺复兴时代。
主卧借客厅部分面积,并改变开门方向,打造出集合睡眠、储物、收纳功能于一体的套房式卧室。暖橙色、白色、木色交织出一个暖意丛生又大气简洁的私密空间。
无主灯设计,视觉上拉升层高,根据居者的生活情景布置光源,顶部的筒灯和床头的壁灯光域交错,在卧室上演光影变奏曲。
简约
现代
自然风
储物柜
侘寂
现代简约
壁灯
卧室
原木
可以看到,卧室和卫生间的隔墙,采用了收纳柜+墙体的形式。玻璃砖元素的嵌入,保证了两个空间的连通性和通透性。
相关案例推荐
玖柞制作私宅设计
设计师相关作品

粤公网安备 44010602000156号