前言:
本案业主是一对热爱生活,眼界开阔且重视细节的年轻夫妇。结合屋主的家庭结构和审美偏好,以白色和原木色为主调呼应屋主自由随性的生活态度,原木的温润质感,也让家的温馨纯粹感含蓄的表达出来。
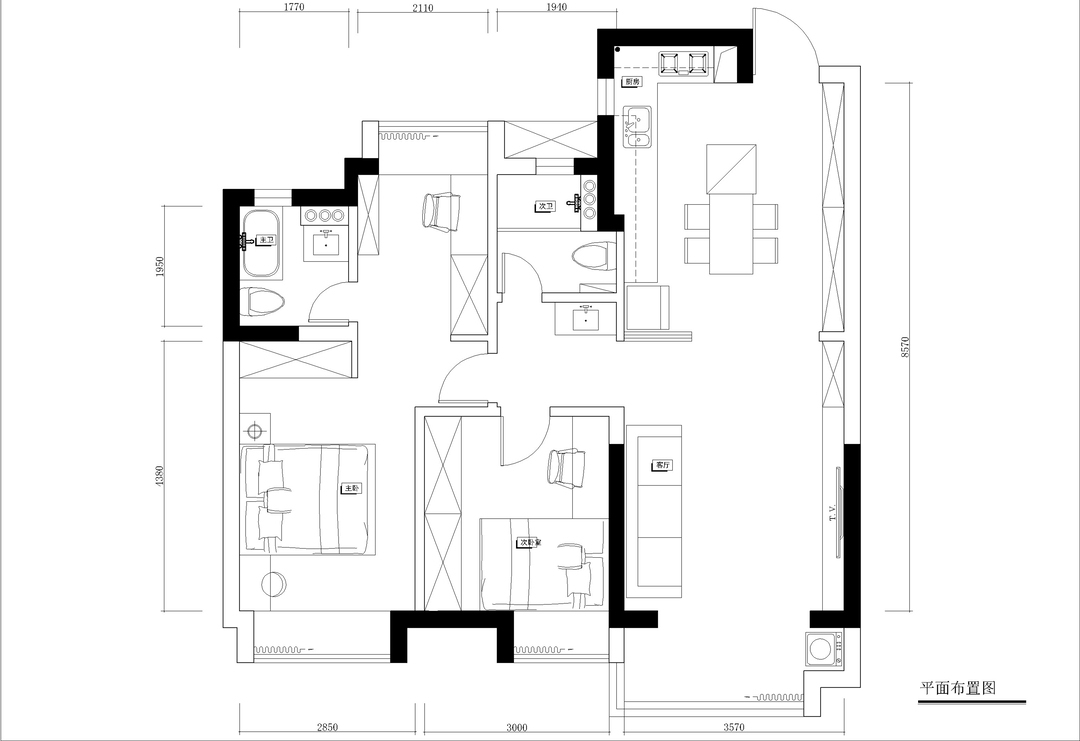
玄关︱归家后左边鞋柜做开放格设计,整面的储物高柜,为屋主回家后提供了充足的收纳空间。
客厅︱拆除与阳台隔门,优化公区采光条件,同时增扩视野,营造自由慵懒的客厅氛围。电视柜结合餐边柜一体打造,保持室内区域的自然连接。白色的柜体板结合无把手设计,延续公区的简洁纯粹基调。
餐厅︱沿用LDK设计布局,选用了岛台+餐桌一体化设计,一方面能增加用餐的位置,另一方面岛台能增加收纳空间,还能充当西厨操作台,方便下厨时与家人朋友交流。
相关案例推荐
网友评论
Michael

粤公网安备 44010602000156号