前言: 屋主的父母选择了我们设计,诞生了作品《贰·屋》。同样他们也选择了我们,把他们的婚房交给我们重新打造给他们一个全新的家 考虑到户型本身的承重结构分布,在不影响安全性的前提下,我们让空间的一些墙体重新做了一些组合和变化,也更加让空间本身的视野动线有了更多选择和延伸。
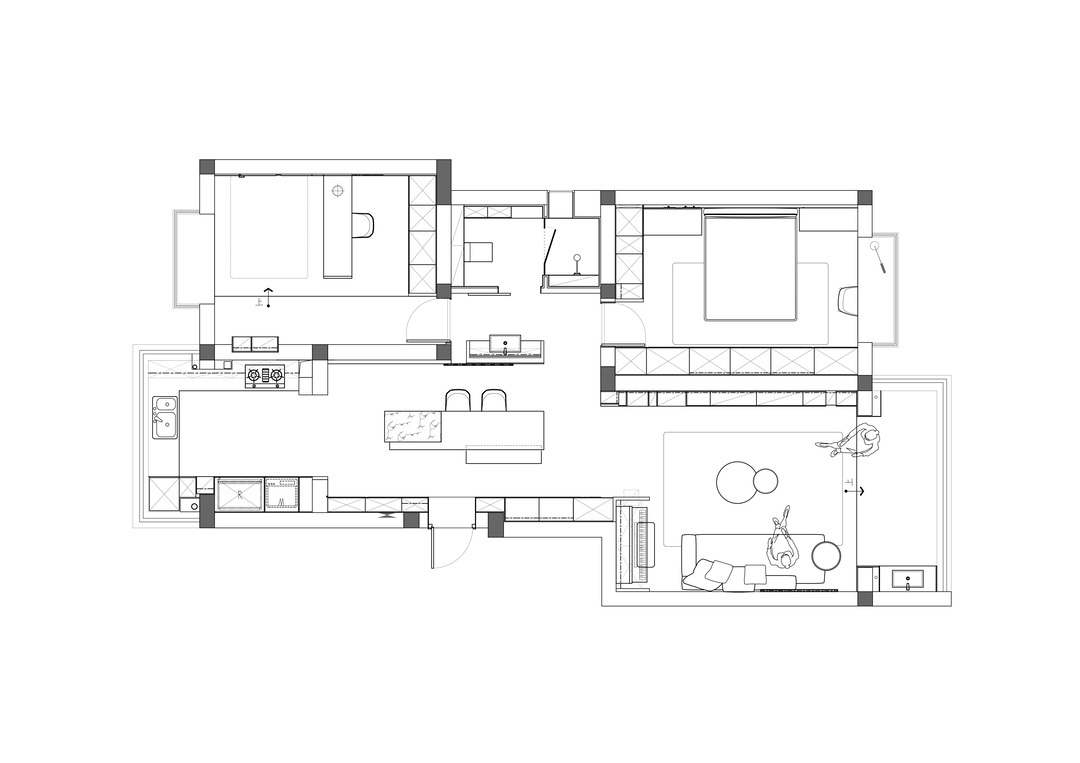
原始户型格局相对封闭,不够开敞.空间中存在一定浪费,且原有功能之间的关系也不够满足屋主要求
户型格局,考虑到屋主基本的诉求,对于原卫生间格局希望有一定的扩大,可以做到干湿分区.平时以两个人居住为多,阳台希望可以补充客厅的关系变成一个可以娱乐休闲的区域.结合这些诉求,基于户型可以进行拆改的墙体,我们对于原北卧室的尺度去做一些调整,更好的扩充外面餐区的活动尺度,结合业主本身需要干湿分区的需求,我们通过柜体与干区台盆的组合构成洄游动线,岛台+餐桌的结合方式配合外部电器柜满足西厨操作的需求...
独立式的岛台,深色富有质感的岩板台面与墙面的线条形成一种呼应
片墙的组合也打破了原有封闭的墙体,让空间更加灵活
进门空间看到的是一体式的岛台与餐桌的形体增加了进门视野的中心感,同时远处的墙体变化也让进入者更好的感受空间
灰白之间的比配
质感的岩板台面
墙面的开洞设计,也体现设计者对于空间希望所表达的一种情感
透景
餐厅与厨房的连接,我们通过开放式手法更好的将两者组合 在一起,同时不同材质和形体引导空间的律动
灰色艺术漆的满刷与暖色墙板、木色的柜体表达的都恰到好处
慵懒的氛围
光与景的变化
远处的盒子阳台也是屋主目前常待的区域,享受每日美好的阳光
冬日里,坐在沙发上享受着和煦的阳光,也是一种美好
光影变化
体块与构成
相关案例推荐
BS_Studio
设计师相关作品

粤公网安备 44010602000156号