前言:
入行十来年,浑浑噩噩的在各种装饰公司待了好多年,钱没有赚到,设计能力也止步不前,更是连一套像样的落地案例都没有,都是各种套路,签单签单还是签单,这不是自己想要的的设计,或者说压根做不了设计,从职业生涯的长远考虑最终选择离职做独立设计师,
做独立设计师的这3年,收获很多,开始也挺难的,没有客户,没有资源,只能从身边的亲戚、朋友做起,全身心的投入进去,慢慢的案子能落地了,客户资源也多了起来,就向着越好越好的方向发展。
现在我成立了自己的工作室,希望自己的团队越好越好,给客户提供更优质的服务,获得更多的支持和认可。
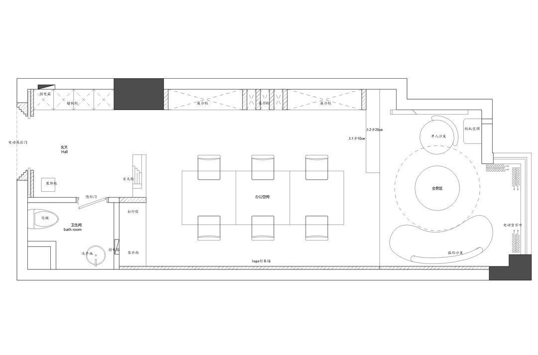
办公区
整个空间我们界定成一个白色的空间,除了洽谈区地面,其他的所有墙顶地都是白色。
办公区的墙面我们设计了整面的材料展示柜,后期会放置各个主材商的各种材料样品。
办公空间的一角。
办公区6人位,满载3个设计师岗位和3个助理岗位。
为达成一个白色的空间,从地面白色微水泥,墙面佐敦涂料,到桌椅、柜体全都用白色来做。
12个小方格,理想状态是收集各个名椅的缩略版本,展示出来。
相关案例推荐
网友评论
郝泽伟设计工作室
设计师相关作品

粤公网安备 44010602000156号