前言:
本案例是退休老师的家,前半生为教育事业奉献自己,后半生打算享受自己的生活,不被束缚,与家人享受天伦之乐。房子不大,足够生活居住,屋主对于居住生活有要求,希望自然舒适不压抑,对于色彩的接受度很高。
设计师了解屋主的需求后,重新对房屋进行布局,为了整体美观性,把收纳集中在了客厅,色彩上运用了高级灰和复古绿,混搭出自然舒适的居住环境。
原始平面图:
1、缺少独立卧室,私密性差。
2、阳台空间独立,占用整体面积过大,影响户型通透性。
3、厨房7字型,不规则,拐角处空间小对于厨房作用不大。
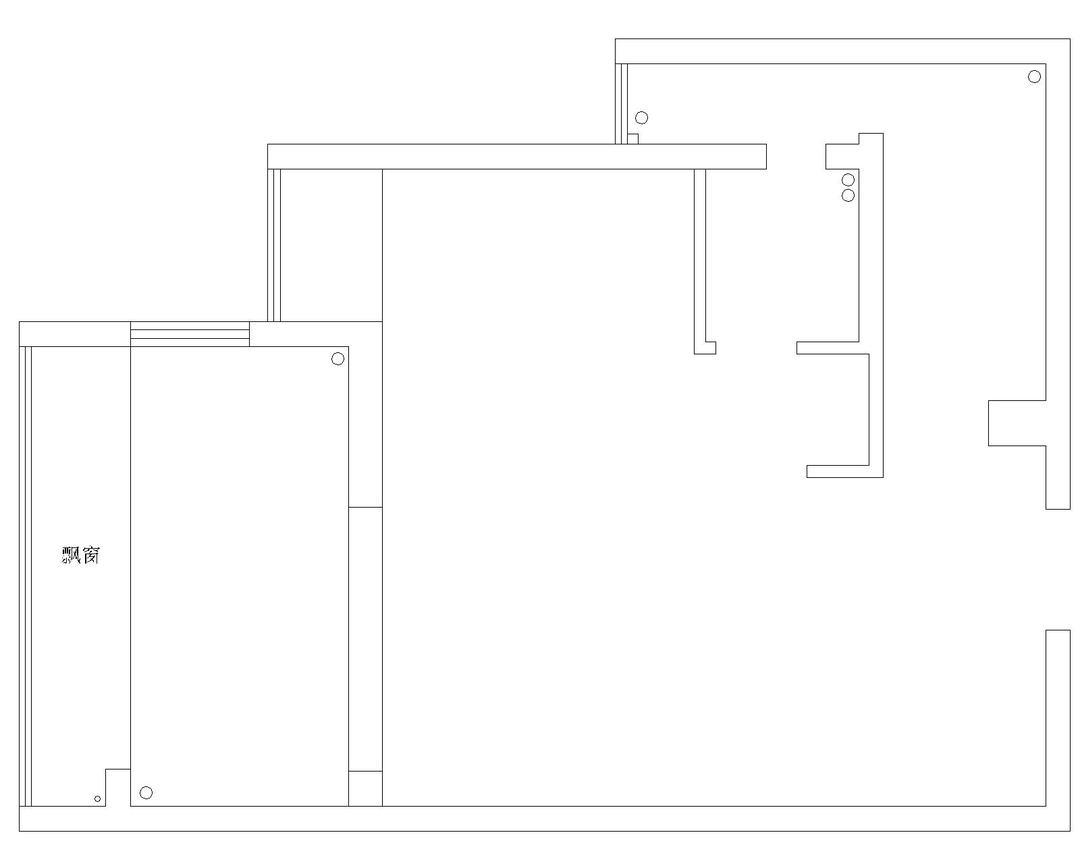
改造后平面:
1、拆除阳台飘窗,拆除移门,增加功能区,把阳台与客厅连成一体,扩大空间,增加房子的通透性。
2、在卫生间边的小飘窗处隔出一个独立的房间,增加起居私密性。
3、把厨房的一部分分给卫生间,让厨房规则实用的同时,让卫生间内推而不缩小,让卫生间干区与厨房墙齐平,整体更合理美观。
4、把整体收纳集中在客厅区域,整体更美观且实用。
客厅的底色还是比较保守的木色鱼骨拼地板,但在家具和软装上大胆地运用了撞色搭配,亮橙色的沙发与复古绿的沙发背景色彩搭配,地毯上多色的图案搭配,无一不体现着撞色的魅力。
灰色是客厅空间电视背景的主色调,整面墙都制作了收纳柜,柜门选择了现代灰,覆满整面墙的灰色门板让空间有了色彩基础。功能上又满足了生活的收纳需求。
一面是复古的小资情调一面是现代感的灰色,站在这个角度看二面产生了色彩的碰撞,当家具搭配进来显得柔和优雅,在这一空间中,撞色的运用显得相对比较温和。
客厅与卧室的隔墙中间是个透明的大窗户,卧室那面用纱帘遮挡。丰富的色彩出现在空间的各个角落,绿色墙面与白色的纱帘、橙色的沙发、多色的地毯,多种色彩元素混搭让空间显得十分充实。
沙发背景墙是透明玻璃,卧室里面有纱帘,休息时拉上纱帘保护隐私,不休息也可以拉开纱帘,让空间在视觉上延伸,整个空间显得宽敞不压抑。增加了室内外的互动性。
沙发一侧的置物架,配上一盏柔和的读书灯,表达着这一角落的个性。
将目光从客厅切换到餐厅,一以贯之的空间美学得以延续。
高级灰加上黑色的不事张扬,为餐厅营造出优雅、端庄的高级氛围。简约的餐椅以蓝色演绎复古优雅风,一盏复古吊灯给人传递一种不动声色的优雅与美感。
餐边柜上展示着各种小摆件和精装的茶具,每一件都透露着女主有颗年轻的心,在这里放个小电视,别开声面。
在客厅与阳台之间,设计师没有刻意去强调空间的界限,而是巧妙通过在客厅收纳柜中间设计一到展示柜来区分空间的延续与变化,来凸显两者之间的微妙关系。阳台延续着客厅的灰色收纳柜,而又逐渐变换开来。
在客厅到阳台的变换当中,功能也由之变化,在阳台部分,设立了洗衣区,书架,以及休闲桌椅,让人不仅在视觉的转换,现实中也是功能性的转换。
厨房门口六角砖和地板的不规则拼接,预示着空间的过渡,厨房门外的收纳柜上做了个性黑板墙,是屋主小孙子的娱乐之地,上面的照片记录着一家人的天伦之乐。
墨蓝色的橱柜门配上水磨石墙面,让厨房充满了小资情调,在这样漂亮的厨房做饭,心情都非常的舒畅。
卫生间干区浪漫清新的绿色成为视觉焦点,这离不开柜子高级灰的衬托,低调内敛的灰色柜子,冷静优雅,赋予干区的宁静、舒缓的格调,以此为基础,复古绿色才能呼之欲出,让人赏心而悦目。
绿色墙面搭配白色门,清新自然,整体精致时尚。
在卫生间的地面和墙上铺贴花砖,营造出一种“低头是复古,抬头是时尚”的视觉效果。花砖用在卫生间墙上,可以突出一些区域,既有背景墙的效果,又能分出层次,增添空间趣味。
相关案例推荐
山舍建筑设计
设计师相关作品

粤公网安备 44010602000156号