前言: 从前期设计,到施工,后期的选材,家居,软装,很感谢一直以来的信任和配合,一起完成的一套作品
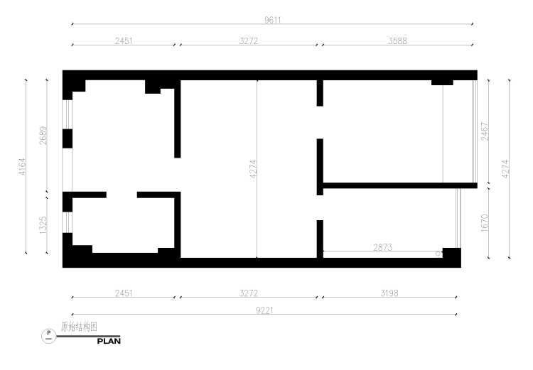
户型图
原始框架图,两室一厅
老房原貌
老房原貌
房子随然不大,做了整面墙20个投影面积的储物空间,满足了女主,大大的收藏功能
卫生间
谷仓门,在入户门处的卫生间门,加了镜子,真的是实用又方便!
无框淋浴隔断,简洁实用型
镜柜尺寸图纸
相关案例推荐
网友评论
胖蛋蛋
设计师相关作品

粤公网安备 44010602000156号