前言:
本案是一座85年的老旧小型联排复式,屋主为三口之家,闲暇时喜欢自驾旅游体验自然风光,对于家的理想愿望是既可以满足丰富的储物需求又可以让自然与空间有效结合
让孩子可以在家里赤脚奔跑,周末也可以与家人共同观看电影制作手工
女主人在闲暇时可以在庭院中种植花草和植物
男主人在家中偶尔的轻办公与阅读,可以在安静的空间中思考新的方向
在有限的空间中创造更多的视觉延伸在生活中的场景使用上更加从容
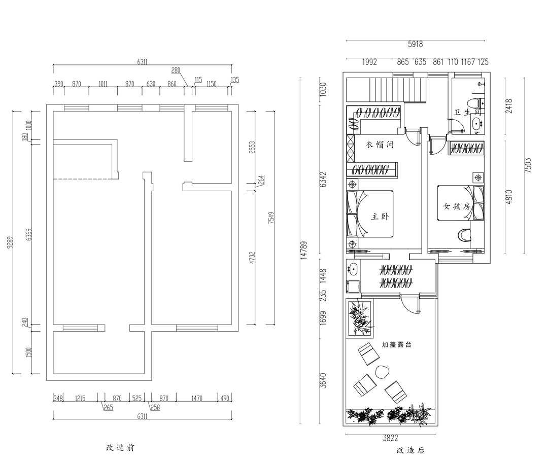
1. 原始户型上下楼的面积只有110平米,可以满足基本的入住条件,但是无法承载更多的功能需求。
2. 一楼客厅空间窄小,采光差,无法做到客餐厅的功能分区。
3. 厨房原有位置在一楼的东北角落中,因为老房全部采用砖混结构,所有墙面均为承重,原有厨房的面积无法完成现代生活对厨房多种功能使用上的需求。
4. 室内入户区域无法满足更衣换鞋等功能需求。
5. 二楼西侧卧室空间过于狭长造成空间浪费,原有小衣帽间区域有一个高度400mm的地台,使用中也会造成诸多不便。
一楼改造对比
1. 一楼庭院与耳房全部推翻重建,重改进院入口,把原有的西侧区域进行加盖,在减少一楼庭院的情况下增加出来我们二楼的空中庭院,也可以解决一楼庭院采光不足的缺陷。
2. 加盖后空间与入户门相对应区域预留采光天井,下方增加静态植物景观,让光与植物形成的阴影成为一道动态景观,右侧同时内嵌收纳系统柜,柜门使用镜面处理,满足储物的同时又是我们的衣帽镜。
3. 原有东北角厨房全部迁移到新加盖区域,重新梳理空间格局,把开放式厨房与餐厅结合,需要时餐桌随时可以被我们当做中岛征用。
4. 原有厨房拆除后改造成客房,满足一楼简单的入住需求。
5.原客厅空间狭小,为了把客厅扩大我们精密计算结构承重,重建客厅与卧室之间格局
二楼改造对比
1. 主卧我们重新划分功能区域,在满足床头富裕的空间同时在重新设计我们的收纳系统,做到男女主人都可以拥有各自的储物收纳。
2. 加盖处作为新的休闲露台,可以满足女主人喜欢在庭院中种植花草和植物的需求,也使我们的主卧空间可以与庭院中的绿植相互借景呼应,再一次的扩展卧室的空间视线
3. 我们在女孩房区域保留了老房庭院中的一颗老树,原窗面改造全窗落地,让自然与我们的卧室更加贴近
你印象中,家的样子是什么样的?
作为一处亲子宅,需求回归至 ”以人为本” 的情感面,期望创造「家」与「人」更为紧密的给予及索求,因此,住宅的公共区域,便成为设计的最佳。
不浪费基地难得可贵的优势-自然光,设计师打通空间隔阂,一整面的开窗,让光得以尽情地撒落。白日里,甚至无须人造灯的点缀,点亮纯净空间的推手是阳光的温暖,温暖了满屋的情感。
入门玄关在建筑中预留天井,让阳光与绿植形成的动态光影成为入户的自然景观
简约
绿植
现代
玄关
鞋柜
自然风
门厅柜
现代简约
玄关柜
明暗柜的墙壁收纳,让立面空间的储物彰显得体的有序感
镜面柜门内藏丰富的储物收纳空间,满足入户的换鞋与更衣需求,关闭时又成为我们的出入衣帽镜
简约
绿植
现代
挂画
装饰画
客厅
自然风
沙发
现代简约
全部拆除后的扩展,增加进光总面积的同时,让自然景观有效与室内串联
大面积的留白让植物与光影成为室内最好的装饰
楼梯处的局部拆除使得双空间有效连接、延展
双空间合并后使多功能区可以共享客厅阳光与景观,曲线的灯具让简单的生活更加温暖柔和
弱化客厅界限感,去掉传统电视墙与电视机的安置,利用沙发侧面的凹嵌处制作生活收纳系统,隐藏收纳的同时也可以展示生活中的小小艺术,弧形造型的自然处理与下方加湿仿真壁炉形成另一处的自然小景,在夜晚时分可以与家人体验围坐火炉的氛围感
在新客厅区域做了下沉式处理,保留视觉开阔的同时无形中为空间做好功能规划,同时也使我们常坐空间与室外小景更加贴近
我们对于自我的渴望,单纯的、真实的、简单的、丰沛的、趣味的....
与一个理想的空间所应具有的品质是如此相似
经由空间、光影唤醒人与空间的多种相处之道,也正是一个人在空间中与自我的对话
多功能桌的设置满足日常不同使用需求,设计环绕动线的同时也是空间的交际中心点
简单有序独立的生活,总是容易忽略真实情感的释放。在纵横交错的城市,空气中漂浮着活跃的因子,人在其中奔忙,漂泊不定之感也愈加强烈。设计师反思当下的社会生活、社交方式、工作压力给个体带来的挤压,根据建筑的特性,将空间定义为“向内而生”
半高收纳柜的设计不影响立面空间需求的同时,增加更多的功能使用,让日常的游戏机收纳,咖啡机,直饮机有更多的扩展使用空间,也可以随手拿取喜欢的书籍阅读
楼梯与客厅共墙的局部拆除,让本就狭小的空间得到了难得的延展释放,纯白与原木的搭配让空间更加简洁自然
空间被划分为地上两层,就像一个树形堡垒,每一层有限的面积承载着人简单的生活需求
一层作为正式的餐厨空间,以简洁开放式的格局,让自然光、风能够自由穿梭,营造一个明媚舒适的生活场
院子里保留的老树与新做落地窗形成的光影让空间产生不同的动态景观,也可以让孩子在空间中感受时间与生命的美好
相关案例推荐
森维设计事务所
设计师相关作品
编辑精选

粤公网安备 44010602000156号