前言:
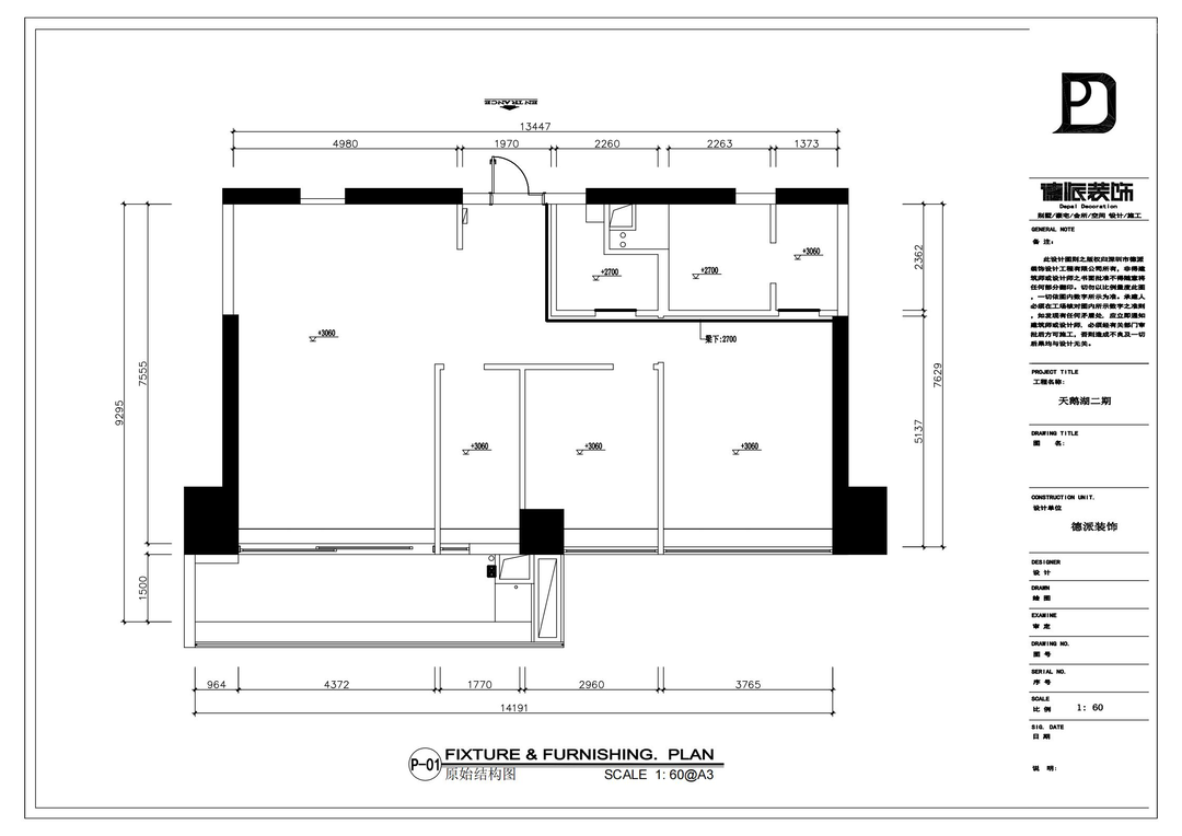
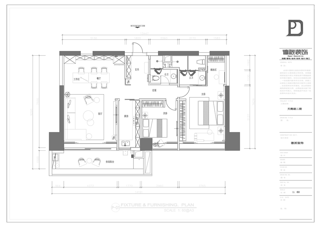
项目名称:新天鹅堡二期
项目地点:深圳市南山区
服务模式:一站式整装
项目面积:130㎡
风格定位:现代
整装团队:德派装饰&君尚软装&摩洛卡家居
注重资源整合,自营工厂,拒绝中间商!相当于千家万户的长期团购,采购量大,在工厂那里可以为客户争取最大化的话语权,整体价低25%
设计理念
设计不仅仅是对房屋结构的重新认知,而是专业、艺术、创新和美学完美的结合。有效地设计和装饰空间的目标不仅仅是一张美丽的图画,而是一种专业营造的氛围和精心打造的形象,实现理想中家的样子。
对于空间有限的户型而言,既想要维持空间的通透感,又想得到合理的区域划分,玻璃的运用就是一个不错的选择,搭配纤细的边框设计,令整体空间看起来格调十足,既时尚又美观。
它在发挥基本的隔断作用的同时,还能够瞬间提升空间颜值!
玄关处到顶的柜子,很好的解决了入门处的收纳与放置功能,造型简约又时尚!
客厅中,设计师选用原木色与高级灰作为空间的主色调,再搭配大理石与金属元素作为空间的点缀,精致细腻的纹理提升了空间的整体质感,散发着轻奢气息。不同材质的搭配相得益彰,在空间质感上精雕细琢,凸显品味与个性。
墙面的大理石增添了空间的轻奢气息。上方的环形吊灯富有设计美感。
餐厅位于客厅旁边,开放式的设计保证了空间的完整性。白色的长条形餐桌与木质中岛台形成了整体材质上的呼应。靠墙定制了大面积的深色储物柜,巧妙地将电器、餐具和杂物统统隐藏起来。具有隔断作用的操作台面,还兼顾了收纳需求及空间弹性,达到美感与机能的平衡。
主卧室
用温暖舒适的色调与干净利落的线条,糅合成一种非常纯粹的空间语汇,帮助主人找到忠于自我的表达。
卧室中,高级的暖灰色调充斥着整片空间,大气有格调,营造温馨舒适的居住氛围。床头的水晶灯设计让空间散发出别样的美感。
大面的落地窗为室内提供了充足的光线,窗前摆放着舒适的贵妃椅,让人舒适而惬意的度过午后的美好时光。
在房间的角落里,还安排了一个精致的化妆间,方便女主人的日常护肤
次卧室
卧室中,设计师选用浅灰色与木色作为空间的主色调,没有多余的矫饰,简约而不失质感。
无主灯设计奠定简约风格,搭配上白色的床品,呈现出极简与优雅的完美结合。整个空间充满了宁静感,营造安静的休憩空间。
自然的材质,低调而平实的色彩,设计师通过极简的设计手法传达空间的灵性与气质,以达到实现生活中自然感和功能美学相结合的氛围。
相关案例推荐
德派装饰
设计师相关作品

粤公网安备 44010602000156号