前言: 在第一次和设计师见面之时,对于一起生活的空间;因为投缘,白狐和翔狸就畅所欲言,勾勒了想要的美好状态[设计师努力回忆中……那是16年的11月末]对,时间就是真的过去这么久了,不断的见面,不断的沟通,碰撞新的想法和思维,在春节之前,在共同的努力下,完成了对于这个家形态的最终绘制稿。17年就是各种施工,各种推进,然后落地,搬家,拖延症的我们,18年终于上毕业照了。
一楼原始结构图 [关于白狐与翔狸在一起生活的故事] 小白狐是女生的江湖外号,男生就用surface画了两人的专属微信头像—小白狐和翔狸 “我们之间就是我喜欢做美食给他吃;看他吃的很开心,我就很高兴;他是全自动洗碗机;然后喜欢一起窝着看美食节目;经常我改论文,他打游戏;在一起各做各的事情,但是觉得很安心;周末早上一起刷牙,一起打扫卫生,一起健身……” —来自白狐自述
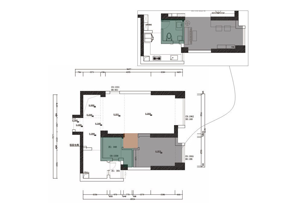
二楼原始结构图 两人的设计诉求很多也很丰满,划重点就是这是一个两人生活的空间,互相都比较粘;四年左右不会考虑小孩,比较强调舒适性与实用性,要简洁,好收拾,喜欢多功能,能体现人性化,条理性,更自由随性一些;下面就是我们从抽象到具象的演变开始了。
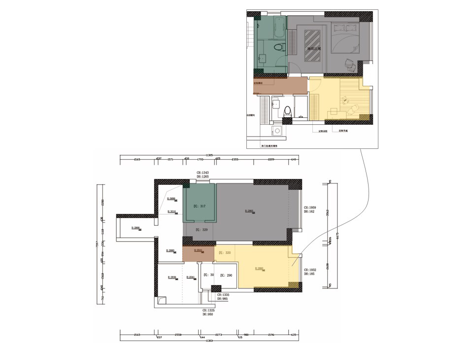
一楼平面布局图 从白狐与翔狸在家的相处模式里得来启发,将一楼全部打造成公共活动空间,楼梯起步以地台形式转角连接至西厨,构成区域围合关系,将鞋柜一置于楼梯下方,有效的利用空间,然后再进行空间取舍,楼梯侧面下方归类烤箱电器类及西厨储物柜体;再取消掉单一的客厅,餐厅模式,将卫生间面积缩小,改变进门方向,书房与公区墙体打开,增大使用性,使这个公共活动空间的开阔性与动线更流畅;一楼最终布局完全就是两人在家的生活缩影。
二楼平面布局图 二楼划分的功能区有主卧,未来儿童房,衣帽间,储物间,洗衣区,主卧我们想要营造的可能性更多一些,他们的生活习惯上也需要满足不同的诉求,所以以地台床的方式进行打造,节约了空间的同时,又可以包容许多不同的功能在里面。门洞的改造更是将主卫的使用性提高了不少,二楼在墙体改动上比较少,但是每个空间布局结合地面、墙面,顶面的设计是特别花心思的。
设计从一开始就是要取消掉客厅的概念;因为它会是运动场所+游戏场所+聚会场所+休憩看电视场所+晒太阳喝茶喝咖啡的场所,总之,它是有很多可能性的,所以这个空间并没有基础沙发,采用地毯围合懒人沙发+鹅卵石靠枕,随意性的体现方便移动,收纳,整合,待客……
任意围合的活动区域,可以让两人在家随时以最舒适的姿态伸展。也可以轻松变身朋友来家中聚会开趴
软塌塌的懒人沙发,拉伸出来,可坐可躺。
有效利用原建筑结构凹凸缺陷,将公区背景进行主题颜色处理,杏黄乳胶漆色与鼠灰质感的碰撞,具象的创造空间层次。
鹅卵石靠枕真的不要太实用,可坐可抱,并且颜值在线。
西厨忙碌的身影与吧台等食的目光交织,白狐与翔狸的生活状态里不需要餐桌。
每一个小细节都可以创造生活的美好。
原始墙结构的凹凸不平之处我们都有花心思进行暴露或是隐藏式的不同处理;用餐氛围的周边环境这是可以提高生活精神享受的。
卧室除了舒适的睡眠,狐狸们也想在床的外空间,随时有可坐可躺的地方,自由,随性,还可以伸手就能触及那些随手放置的物件。
所以我们在考虑卧室设计上从点、线、面的原理出发将地面、立面、顶面围合出更整体的多样空间,从梯步式床体连接多功能坐台延伸至衣柜,在空间功能划分上面有分离有包容,告别单一的卧室布局。
床头壁灯与吊灯独立控制两方,满足白狐与翔狸不同的生活习惯,这样的梯步式床体与床头,给到生活中的随意性更强。
转角坐台上方与卫生间的开窗空间通透性互动更是增加生活情趣,可调节百叶,亦将卧室与卫生间光线互享。
夜晚,放一部喜欢的电影进入梦里,这样的多样空间,在家,就可享受私人影院配置;有时候狐狸也会直接投影到顶上,反馈说没有任何不舒适,就是会悄悄睡着……
此空间现在是作为二楼多功能活动空间随性使用,但是我们要为以后小天使的降临考虑,所以现场用防腐木上漆做了小榻榻米的一个层次空间,并且延伸至墙面,以不同规格尺寸拼接,未来还可增加墙面垂挂置物,(帐篷,蚊帐,衣物类……)不管实用还是装饰,我们留够了各种可能性,根据家庭成员的变化,这个小天地也可以自由轻松变身;吊顶将区域做了明确划分,将榻榻米空间围合出一个独立的区域,现在是休闲茶座,以后可作为宝宝的玩耍区,再大一些,放上床垫,这就是睡眠区域,多样性的考虑也是充分结合狐狸们的实际需求来设计。
相关案例推荐
初懿设计工作室
设计师相关作品

粤公网安备 44010602000156号