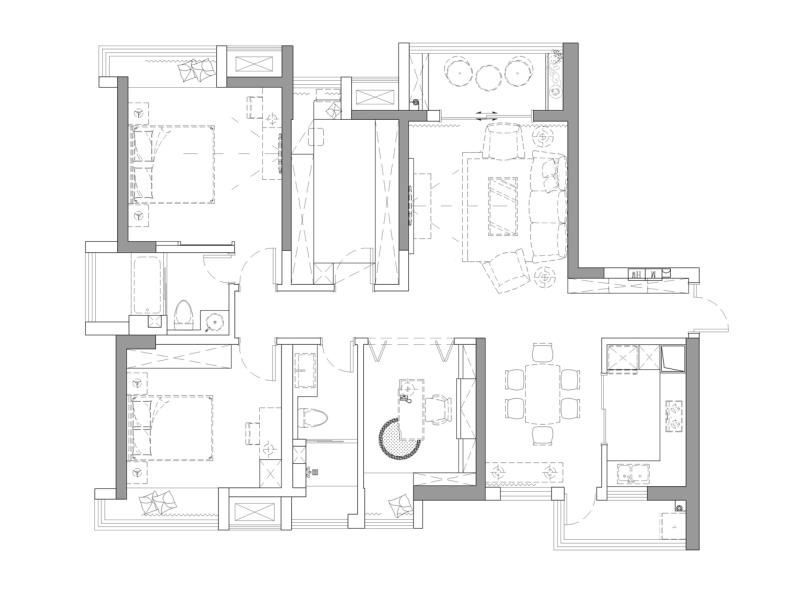
前言: 户型是精装房,只在局部空间做了重新定义。
客厅
米白色的墙壁营造出家的温和简约,天花没有做过多的改造增加线条加以修饰,大面积的采光把户外的温暖照进家的温暖和乐。
明亮的绿色活跃了空间,单个的躺椅沙发让休闲时间多了一份享受。
打通书房隔墙,将折叠门取而代之,增加空间互动。
相关案例推荐
网友评论
武汉壹零空间设计
设计师相关作品

粤公网安备 44010602000156号