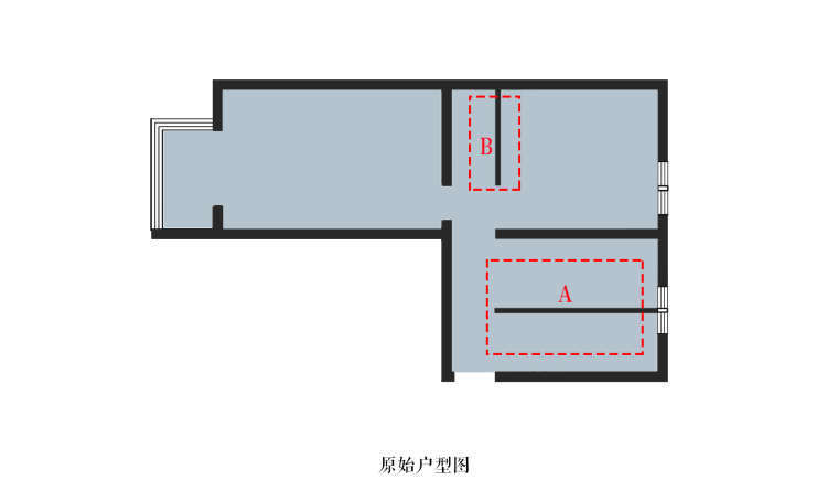
当初量房的时候,就被房子奇怪的格局给尴尬到了,首先是一进入户门的厨房区域,也就是A,厨房与餐厅之间一墙之隔,两个空间过于狭长,业主女士说,这样的厨房限制了我的厨艺,我表示很赞同,另外就是B卫生间区域,空间局促,与外围空间的交互性也很差,感觉很拥挤。说说结构:
厨房与餐厅之间的隔墙,使得动线很不舒服,需要绕行;在空间利用上,互通性很差,就只是两个比较狭长且独立的空间而已;给人的视觉感受也很闭塞,不通透,这样的起居环境,真的不知道如何才能开心的生活。
首先是拆除隔墙,两个小空间变一个大空间征得房主的同意,做L型开放式厨房冰箱和洗衣机都有“预谋”的规划其中餐厅也有了合理舒服的摆放位置设置吧台,给空间提提气,也是与过道的阻隔
红框区域相当于是各个空间的中转站,它的出现基于这样的改造:改变卫生间和卧室门的位置,墙体外移改变卫生间和卧室的面积大小卫生间面积增大,淋浴、洗手盆和蹲位都有了合理的位置,避免了原户型直线型的摆放卧室门位置移动,留出了衣柜的进深这样改造之后,空间关系很舒服,不会有拥挤感了
客厅的格局没有太问题,基本没变,就是增加了一些储物功能,稍后见实景吧
最终平面布置图
入户处做了简单的玄关,换鞋凳、鞋柜一样也不能少,上方的挂板让回家后的外套和包包都有了去处。
女主人心灵手巧,让我们专门留出来的家庭板报,没事在上面写写画画,让生活变得有意思起来。
两小变一大的厨房,就是现在这样子了,墙体的颜色,满足了女主人粉红的少女梦,橱柜台面以上500mm处的位置使用的是白色文化砖,一是做饭时溅上油渍好清理,另外,白色和粉色也是经典的少年系配色,暖暖的,温馨又可爱。
白色的用餐桌椅也是一种延续,与原木色也是互相衬托,加上枫叶花砖,桃之夭夭,灼灼其华。
这样的厨房,再也不用怕会限制自己烹饪的想象力了。
通过空间的加减,打造出的空间中转站,虽然朦胧,却也看得出颇具颜值。
惜福二字,道出知足常乐,且行且珍惜的生活态度。
加一道小立柜,就解决了很多杂物的安置问题。
造型简约米色布艺沙发,迷你茶几,搭配灰色木地板,自然而舒适。
为了迎合节日气氛,加几个暖黄色的靠枕,气氛立刻就变的温暖起来。
把单人沙发移动到阳台,一个惬意的小角落,让人流连忘返,安静看会书是个不错的选择。
阳台增加了储物柜,装幅小小的挂画,有点意思,也蛮有意境。
相关案例推荐
壹目设计
设计师相关作品

粤公网安备 44010602000156号