前言:
									这个案子位于北京朝阳区的炫特区,是个套内面积50㎡的一居室。业主是一位青年导演,他是一个对自己居住需求非常清晰的人, 很明确的告诉我们,想要一个能融合MCM、日式和复古的家,同时他对色彩的接受度很高,让我们有了更多机会去创造更多设计的可能性。
									
【改造档案】
改造需求和目标:
1.在有限的面积中,拓展更多收纳空间。
2.业主非常喜爱乐高手办,需要有足够空间能够展示和收藏。
3.业主的鞋子比较多,希望入户的鞋柜容量越大越好。
4.希望空间整体配色和氛围,符合男士独居的感觉。
最大的改变:
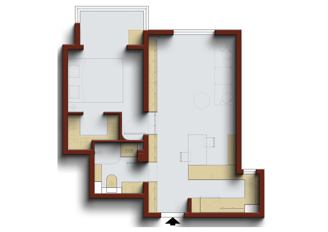
1.拆除厨房与餐厅之间的墙体,将客餐厨全部打通,形成开放式布局。
2.将卫生间的墙体向卧室方向移动,扩大卫生间面积。
3.主卧砌墙围合成独立衣帽间,形成更高效的储物布局。
业主买这套房子之前,就租住在一模一样布局的空间中。他非常了解自己的居住需求与房子的原始缺陷,主要存在收纳空间不够、活动范围局限等问题。
乐高手办是业主最钟爱的解压方式,他收藏了很多绝版作品。因此在有限的空间中合理规划手办的陈列与收纳,也是空间布局中需要同步考虑的重点
入门需要兼顾鞋柜、手办陈列等,并以白色标注为统一区域,合理调度空间布局关系。
公共区域以收纳需求作为主线,将收纳内容归类为陈列展示、高频次使用、低频次使用等不同功能层级,使日常用品的拿取、使用更加方便。
业主身高将近1.84米,同时也需要宽阔的活动空间,因此我们也考虑到物品收纳和日常活动之间的协调性。
上下分层的收纳方式,疏密有致,空间更加干净整洁。
客厅区域以蓝色进行标识区分,背景墙除去卧室门的距离,正好可以容纳电视机的尺寸,与沙发的距离正好,满足日常观影需要。整体空间上深下浅的颜色搭配,通过天顶的透明镂空,不会显得头重脚轻。
电视机柜的抽屉、隔断可以放不同尺寸的磁带书籍、多余闲物,日常活动中不会显得杂乱
浅色体块搭配深色线条勾勒,增强内建筑的立体感。
环顾空间,可以明显察觉整个框架被线条穿梭包裹,形成大小不一的“盒子”,互相拼接、堆叠、错落,富有层次感。仿佛每一个柜门后面,都收藏着意想不到的生活好物,这里也暗藏了一个我们的“小私心” ——希望每个角落都能被物尽其用,而不仅仅是为了收纳存在。
门与天花板之间的吊顶处,围合了一圈狭窄的收纳空间。部分采用亚克力柜门,可作为小型手办陈列展示,视觉上延伸并轻盈了空间感官。
餐厨采用黄、绿、白、红木色拼接组合成“棋盘式”结构,色彩布局依循场景秩序,繁而不乱。
把厨房和餐厅做成日式小酒馆的感觉,灵感还来自于我们的业主。
他平时忙到没有时间做饭,唯有朋友来家里时才有机会“开火”,于是我们就想把厨房的利用率提高下,让厨房除了做饭外,还能拥有其他功能,比如社交、调酒、乐高收纳等等。
入户之后就是厨房,门口的灯箱亮起,象征着小酒馆开门营业了!
开放式餐厨将鲜艳、明亮的“蒙德里安”色系充分释放,通过色彩标识,给予不同场景更清晰的定位。厨房区域以黄色调为主,餐厅采用白绿拼接,冷暖呼应,慢慢充盈生活的厚度。
每一个小柜子、每一块层板,处处体现着收纳的极致运用。
大型乐高内嵌在岛台内部,透明亚克力进行展陈,站在不同角度都能看到这份心中所爱。
打通了厨房和餐厅之间的墙体后,客餐厨整个公共区连贯成一体,以去中心化的方式,形成了自由流动的开放式布局。煤气管道是餐厨之间唯一的阻隔,通过黄色饰面包裹,将其作为空间一部分,融入厨房区域。
结束一天的疲惫回家,灯牌和暖光亮起,私人“深夜食堂”开张啦~
厨房与吧台构成“U”形布局,2处平行料理台围合1处烹饪区,兼顾中西式料理功能,不需要多余走动就能包揽万象,几个人一起下厨做饭也不会觉得很拥挤。
客人们可以围坐在餐厅闲聊,餐桌与餐边柜组合成了E人互动的天地。自助倒酒、随手切果盘、帮忙在吧台区打打下手,通过设计提升空间的社交属性。
卧室入门,也是入寝放松的前奏,不宜直白尖锐。因此入门角落处特意设置了一定的弧形,进行舒缓过渡。
衣帽间的柜子把手采用哑光复古的金属扣,开放式门框与阳台框呼应,正好适合一人单独换衣。
 
衣帽间背面就是卫生间,设计将两处相连的墙体像卧室区域内移些许,使卫生间形成方正格局,衣帽间形成长宽不规整的结构。因此可以在衣帽间窄处存放小饰品,宽处悬挂外套,基本上都能囊括生活中的衣物收纳
主卧铺展了大面积的黄蓝配色,与客厅呼应。门框用红色勾勒,加深了内建筑的立体感,就像一个“礼品盒”,每天都能打开奇妙惊喜。
白色吊灯轻盈整体氛围,圆形弧度舒缓了线条体块的尖锐,回归舒缓的包裹感。
主卧整体布局比较简单,主要利用了原始狭长的优势,围合出一个独立衣帽间。黄蓝撞色将冷暖饱和度进行了调和,同时中部采用深棕色床品,奠定男性沉稳基调。
相关案例推荐
 
							两个设计师设计事务所
设计师相关作品
 
 
 编辑精选
编辑精选 
												
													
														
															
																 
												
													
														
															
																 
												
													
														
															
																 
												
													
														
															
																 
												
													
														
															
																 
												
													
														
															
																 
												
													
														
															
																 
												
													
														
															
																 
												
													
														
															
																 
												
													
														
															
																 
												
													
														
															
																 
												
													
														
															
																 
												
													
														
															
																 
												
													
														
															
																 
												
													
														
															
																 
												
													
														
															
																 
												
													
														
															
																 
												
													
														
															
																 
												
													
														
															
																 
												
													
														
															
																 
												
													
														
															
																 
												
													
														
															
																 
												
													
														
															
																 
												
													
														
															
																 
												
													
														
															
																 
												
													
														
															
																 
												
													
														
															
																 
												
													
														
															
																 
												
													
														
															
																 
												
													
														
															
																 
                                                     
                                                         
                                                     
                                                         
                                                     
                                                         
                                                     
                                                         
                                                     
                                                         
                                                     
											
											
										 
											 
											 
											 
											 
											 
														 
														 
														 
														 
														 
				 
                
 粤公网安备 44010602000156号
粤公网安备 44010602000156号