前言: 男主是一位英俊潇洒,风流倜傥的IT男,快节奏的生活让他没有时间料理自己的感情生活,初次见面就相谈甚好,为其还是单身男感到惋惜,不料等房子装修好,女主也出现在他的生活里,希望他的生活永远阳光灿烂
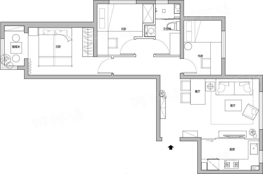
原始户型图,92平的三居,是西边户,可以想象每个房间的大小,采光稍差些,厨卫都很小,还好男主暂时一个人住,只有红色墙体可以拆。
无改造不设计一直是我坚持的原则,我理解的设计一定是从功能格局入手,解决业主最基本的需求。
没有特别划分出玄关,空间小尽量保持开放。进门左手的鞋架,衣帽架日常使用,鞋子多了就放在右边封闭的鞋柜里。
改造一:入户门正对面开始是卫生间的门,无论从风水还是视觉上都有问题,直接改到了侧面,可以在前面的户型图上看到。
改造二:把客厅和厨房之间墙拆除,做成整面格栅,让更多的采光能进来,也让彼此之间多一些互动。
白色文化砖炒鸡好看,就是人工费太高了,一百多一平米,真是为了颜值也是拼了,墙上的格栅是在逛完整个高碑店家具店(没找到合适的),又跑到一个超级破的老货市场淘的,设计师都是事儿逼。ps:小空间的家具一定体量要小,自己整不了这活就请设计师吧。
厨房的空间很紧凑,旁边就是冰箱,我可用的是广角镜头,也没能拍出豪宅的赶脚,惭愧。。。配色上水泥砖+木色+白色比较适合业主这样的暖男。
透过格栅看厨房,四樘格栅都是活动的,方便清洁格栅后面的玻璃,玻璃为了解决实际的油烟问题。
我一直在想,格子衬衫是IT男的标配吗,衣帽架上的收纳盒因为拍摄需要被拿到旁边的屋子了。主卧比较素,远处的是阳台一会儿还有近景。
在图库里找了找,没找到衣柜(衣柜是白色)的角度,床头柜上的壁灯自己带开关的,很方便,晚上老温馨了。
这里是次卧,黑色的门增添了些许神秘感,空间也会更清爽,配套的3公分的踢脚线也是黑色,在设计师看来每一处都得用心啊。
简单床铺方便亲戚朋友来小住一下,底下全是储物的空间
相关案例推荐
 
							陈晓辉
设计师相关作品
 
 
 
												
													
														
															
																 
												
													
														
															
																 
												
													
														
															
																 
												
													
														
															
																 
												
													
														
															
																 
												
													
														
															
																 
												
													
														
															
																 
												
													
														
															
																 
												
													
														
															
																 
												
													
														
															
																 
												
													
														
															
																 
												
													
														
															
																 
												
													
														
															
																 
												
													
														
															
																 
												
													
														
															
																 
												
													
														
															
																 
												
													
														
															
																 
												
													
														
															
																 
												
													
														
															
																 
                                                     
                                                         
                                                     
                                                         
                                                     
                                                         
                                                     
                                                         
                                                     
                                                         
                                                     
                                                         
											
										 
											 
											 
											 
											 
											 
														 
														 
														 
														 
														 
				 
                
 粤公网安备 44010602000156号
粤公网安备 44010602000156号