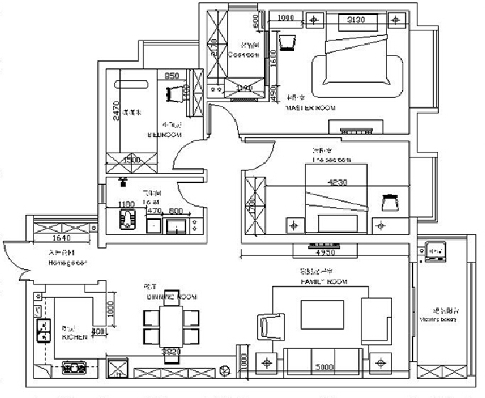
前言: 两个人,从相识、相知、相爱,到组建一个小家,过着简简单单的生活,已是当下极具现代风格的年轻人写照。本套案例所讲述的,就是这么一个简单而浪漫的爱情故事。虽然没有“继承者们”令人目瞪口呆的奢华,但现代简约式的家装毫不含糊。不需要过多的家具和装修,且看餐厅里那串星光闪闪的吊灯,胜却千言万语。
相关案例推荐
网友评论
佳园装饰
设计师相关作品

粤公网安备 44010602000156号