前言:
前提:这个空间位于贵阳市观山湖新区,站在屋主的阳台,视野好到能将观山湖公园尽收眼底。这里将要成为未来很长一段时间里屋主的小世界。从事金融行业的夫妻俩,是这个家的主人。与深色西装、浅色衬衣形成强烈反差的是,玩音乐、收藏手办、看漫画、读小说,和好朋友们在家聚会玩耍,才是他们在生活里感到最舒服的真实状态。
由于屋主和父母同住一个小区,这个房子基本上是目前小两口以及将来的一家三口使用,所以我们按10年使用期进行规划。核心是将房屋变得更开敞,将更有趣的生活方式与业主的设计需求融合,空间动线也自由无阻;在这个居室里,有可以观山望远的静态空间,也有可以一日三餐一边做饭一边聊天的趣味餐厨空间,也有类似livehous情调般可聚会的动态空间,更有为将来留白的成长空间。我们希望通过我们的设计让整个空间是灵活动感有人气的,屋主的生活也能变得丰富和充满幸福感。
在整体的色调上,大面积的“黑白灰”搭配局部原木(偏灰)暖色,既有酷酷个性化的“动”,又有休闲舒适的“静”。营造出可静可动的现代休闲空间。
△原始户型图
存在的缺陷:
①入户门正对主卧门,入户虽然有门厅,但显得空间不够开敞;
②客厅,餐厅,阳台,厨房公共空间不够连贯,互动性太弱;
③主卧收纳空间不多,主卫面积不大,品质不高;
总体来说整个原始户型空间方正,也比较中规中矩。
虽然开始设计时业主写了很多自己的设计需求,但总的来归纳一下:
①客餐厅要营造宽敞空间。
②进门视觉希望做一些设计,不想像原户型一样进门视觉正对主卧门,希望有一些遮挡。
③收纳合理,不用太多大型家具,要将房子宽敞出来。
④能拥有自己的书房,但不局限于传统书房,想象中这个书房就像属于自己的角落,也可以是承载复合功能的娱乐休闲区域。
⑤房屋按10年期做规划,要考虑将来小孩的活动空间,不能只顾眼前的2人世界。
⑥房屋整体设计要有独特性,能够突出屋主的个人风格,关键词:自由、随性,适当偏冷,在某些局部处可以增加一些暖色。
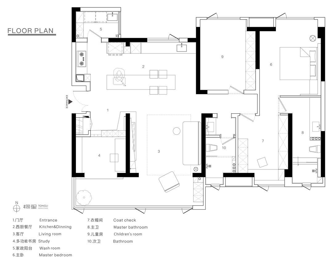
△改造后平面布局图
由于屋主和父母同住一个小区,这个房子基本上是目前小两口以及将来的一家三口使用;
①我们首先将入户门厅进行调整,拆除原厨房的墙体,并且调整原入户右下房间的空间占比,这样将原本封闭的厨房开放出来,将门厅、厨房、餐客厅空间一体化。
②由于调整了原入户右下房间的空间占比,我们将这个房间原隔墙往后退,这样退出来一个3m²的收纳和门厅“凹”空间,从视觉上也放大了门厅,并且我们将门厅鞋柜和书房的隔墙做了透光设计,让入户的感受更加宽敞有趣也不失储物功能。
③将餐厨一体化,在餐厅设计3.8米长,无高差的餐岛台,就像是一个“枢纽”,连接着客厅与其它空间。长岛台一侧是洗菜盆和洗碗机,一侧是将近2米的长餐桌,无高差的设计让餐岛使用畅通无阻。同时也在餐厨形成环形动线,屋主操作走动起来也非常宽敞方便。
④餐岛的背后设置冰箱高柜和西厨式操作长台(3米长),操作长台上的大窗户让它完全敞亮出来,餐厨的采光也是非常明亮的。这样的餐厨房一日三餐更像一种享受。也满足了屋主对社交,做饭,有生活品质的需求。
⑤由于玄关处的改动,我们将原先横亘于客厅阳台与书房之间的隔断墙去掉,把它整个打开来,以地台整体抬高房间地面,最终呈现了一个:随性席地坐,可眺望远方,也可拨动琴弦的多功能书房。
⑥客厅的休闲阳台采光和视野都非常棒,我们就让它空一点,留白出来,先不去放置太多家具,由于这个阳台也和书房相连
我们将原本的入户做了较大程度的改动,拆除原厨房的隔墙以及原入户右边的房间隔墙,将门厅空间向多功能房“退了”3m²,重新形成半围合和更开阔的玄关。
多功能书房和门厅相隔上,用到透光不透影的玻璃砖和悬挑鞋柜整体造型,不仅将采光引进来,玄关层次也更加丰富有趣。
△门厅局部空间分析图
利用打开后的空间,依托墙面,入户我们“退出”3m²的门厅,也“退出”1m²的“800库”,即:进深800mm,占地1㎡左右的步入式玄关收纳间。虽然不大但方便进出衣物的存放和换取,婴儿车、玩具车、购物车等以及可以完全自定义的储物搁架的设定,这点也是非常实用的。
“800库”以柜门的形式打开,和旁边的墙板做成一体的隐形门。平时关上似一整面墙的效果,在视觉上也很整体流畅。
打开后的空间,不仅使入户后的区域更为宽敞明亮,让气息得以流动起来。八百库与地台上高柜的组合,让日常的琐碎杂物也有了更得当的收纳。
得益于和父母家“一碗汤的距离”(同住一个小区),屋主的餐厨区可以做更为open的考虑。
一块3.8米长、0.8米宽,无高度差的超长餐岛台,放置在餐厨公共区域的中心位置,超长餐岛台就像厨房的中岛台同时也连接着餐厨区和客厅。岛台一侧嵌入台下盆,接入净水系统,下置收纳柜、洗碗机、置物架。高度统一做到0.9米高,尽管它比常规的餐桌更高,但下面的空间利用起来也很有效,高度问题只用将常规餐椅换成吧椅就能解决,但却可以拥有不设限的惬意!
▽下图为餐岛台的具体分析图
△图为餐岛台的具体分析图
超长的餐岛可以满足烘焙、亲子、工作、用餐、吧台等超多种使用需求,与顶面层次丰富的灯光布局配合起来,就像是在家里内置了一个酒吧。
△图为门厅,厨房,餐厅空间收纳及柜体整体分析图
餐岛的台面设计为全深色(接近黑色)岩板,仔细近看会有少许斑驳的纹理质感(像天然岩石自然的感觉),这样颜色简洁质朴的材质非常耐看,岩板作为餐厨台面也非常好打理卫生。并且岩板台面全哑光,这样的材质搭配超长餐岛,也体现出整体的高级感。
我们对客厅做了装饰性吊顶(延展自餐厨区)、几何造型电视背景墙等处理。以体块与线条的构建出一个简单不呆板的客厅,从任何一个角度望去,都能因为光影投射出的不同块面,获得不一样的视觉体验。
客厅不放置大件家具,用小巧的模块化沙发。这款沙发是来自比利时Ethnicraft/N701的组合沙发,这款沙发只有0.9米宽,非常轻巧,而且坐感舒适,可以灵活组合搬动,非常契合屋主想要的灵活空间。茶几组合来自丹麦品牌HAY,茶几直径只有65cm,边几直径35cm,这样组合起来非常小巧。并且也可以随意移动
他们家的阳台可以将贵阳市的观山湖尽收眼底,风景绝佳,因此我们除在阳台隐藏收纳空间,还将空间留白,从长远去做考虑,先不放置太多家具,由于这个阳台和书房相连,我们也可以将它和书房看作成长性空间,未来的小朋友也可以在这里奔跑,或者搭个小帐篷,或者成为一家人的娱乐读书角,也让这里成为家里的副中心。
△图为客厅,客厅阳台,书房区域多变生活空间的示意分析:
由于这个阳台和客厅及书房相连,我们将空间留白,将来它拥有多种生活方式的考虑。
可以是亲自空间;也可以为第二餐厅,完全可以摆放一张800mm直径的圆形餐桌;也可以是屋主坐在书房观山发呆的地方;也可以成为屋主弹吉他玩音乐的空间...
休闲阳台的视觉处理上,我们加入了局部木质吊顶这样的自然元素,让整个黑白灰的空间又搭配了温润的原木,非常契合这样惬意又能让人放松的休闲阳台。
书房将地面整体抬高120mm,最终呈现了一个:随性席地坐,可眺望远方,也可拨动琴弦的多功能书房。
原来的主卧大小是多少有点尴尬的,至少不足以实现女主一直向往的、大大的衣帽间。于是,我们把对面几乎用不上的次卧利用起来,调整进出的路线,主卧套房就生成了。
主卧整体色调延续客厅的“黑白灰”,加入温暖的灯光氛围,暗一点但更有助于入睡。
主卧的墙地砖整体使用一块深色砖,同样是仿岩石的全哑光效果,2米长的盥洗台则采用纯白色岩板台面,在深色中一块干净的白色台面,整体搭配出来也非常和谐和有质感。
把次卧变作衣帽间后,我们把主卫生间做了拓展和品质的提升。不仅以一块2米长的纯白岩板用作盥洗区的台面,还增设计了大大的、带“亲子属性”的多用泡池。
△图为主卫生间的分析图
砖砌泡池做好防水+表面贴砖,既比浴缸防滑,又好打理卫生。
在施工过程中小宝宝还在妈妈的肚子里,未来至少五年时间里小朋友主要的睡眠空间也会是和爸爸妈妈在一起。因此,对于儿童房的设计着重考虑可变性。它既能成为一个独立的游乐室,也能在父母偶尔过来照看小朋友时的成为临时卧房。再以后,他们也可以和小孩子一同去创造。
相关案例推荐
桐里设计Studio
设计师相关作品
编辑精选

粤公网安备 44010602000156号