前言:
业主曾留学于西班牙,感受过佛朗明哥热烈又激情的舞步,穿梭过巴塞罗那的小巷,在巷子转角的咖啡厅驻足,喝着咖啡并享受着午后的阳光——回到家乡也同样热爱着成都这座城市独有的舒适安逸,在成都的市郊购入一处依山带院的叠墅,这栋房子如同避世田园,一家三口生活在这里可以完全放松下来;享受大自然的阳光、和煦的微风、院里的鸟叫...
DATA:其实这样的避世居所也是我们每个人都向往的,当接到这样的委托案时,我的内心也充满了激动和想象。业主家常住人口为一家三口,也经常会有不少朋友来串门,业主夫妇也是非常热情好客的,所以他们的重点诉求就是:1.希望一楼只作为公共空间,尽量开敞,能给家人和朋友更多活动的空间,小朋友可以完全释放天性在房子里无拘束的跑动,一体化餐厨空间,满足朋友一起的聚会。2.业主夫妇并不喜欢繁复的装饰,他们希望家里充满温暖、放松和追求一家人在一起欢声笑语的生活感。
在我看来也是非常欣赏业主对家的观点,所以就一拍即合,面对这样的需求,这样的建筑,我想将空间作为重点,我一直都认为建筑和室内是不可分割的,他们应该是自然而然平衡存在的。
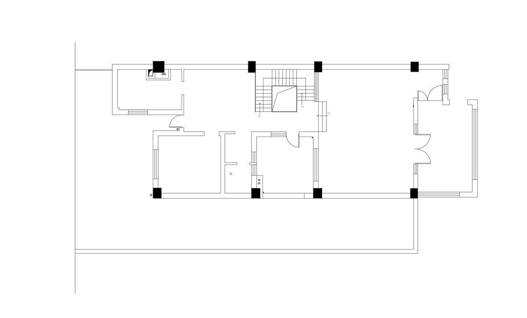
▲一楼原始平面图:①客厅与餐厅是错层关系,原始梯步狭窄,客厅缺少与餐厅的过渡。②厨房功能缺失,餐厅较小,采光极差。③空间动线不流畅,功能单一。
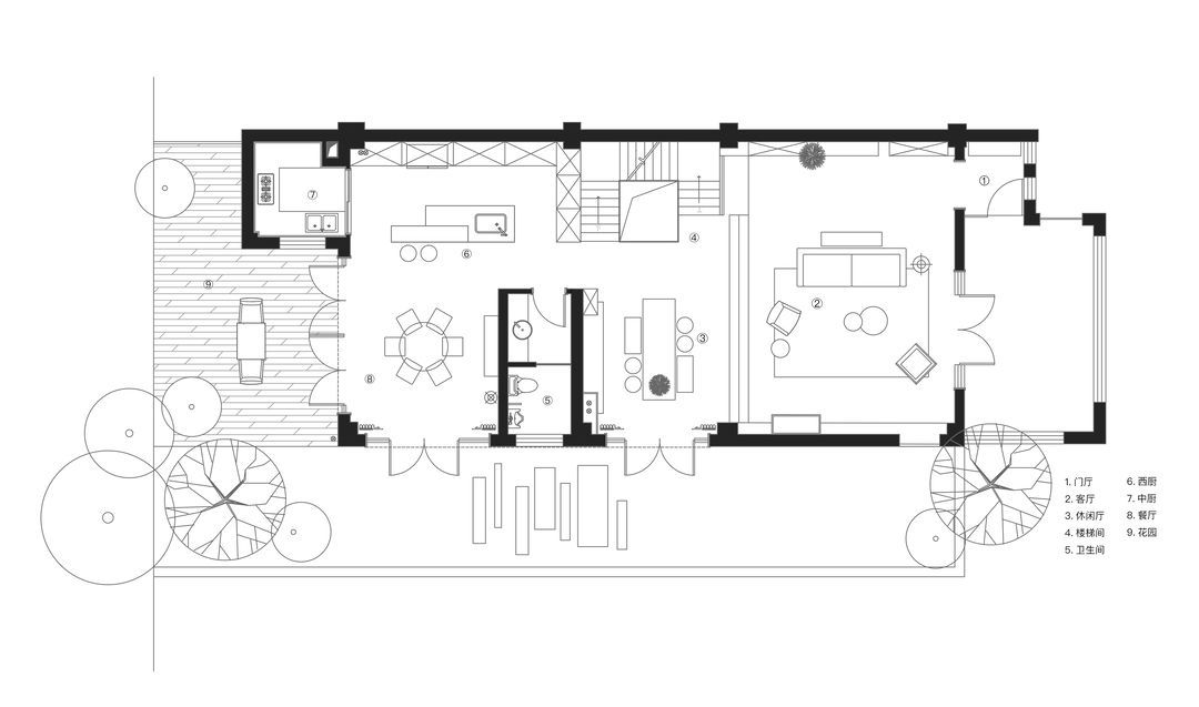
▲一楼改造后平面图,改造空间重点:打破空间的束缚,将1F整层空间变成一个开敞的大空间,会客厅、休闲茶室、轻食厨房、花园餐厅作为“大客厅”的四个部分,划分为相对独立而又相互流通的空间。 ①打开原户型2个卧室,将卧室的空间都纳入LDK公共空间,让LDK空间一体化,动线通畅,视线开阔。②1楼的公共空间全部设计回旋动线,这样空间流动、贯通、隔而不离,开敞的公共区域也为家人和朋友带来更多的活动空间,同时释放小朋友活泼好动的天性。③尽可能多的引光入室,追求更好的自然通风,拆开餐厅的外墙,改造成大落地玻璃门窗,打开门窗将花园与西厨餐厅融入一体,打造阳光花园式的就餐环境,让更多充足的阳光洒入西厨和餐厅,开敞明亮的烹饪条
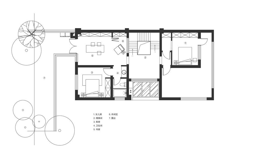
▲二楼原始平面图
▲二楼改造后平面图:2楼整层基本作为客人及女儿的休息空间来考虑,在原建筑的空间上并未做更多的改动,在客房外面设计了书房兼读书区,也是作为女儿房的配套功能。
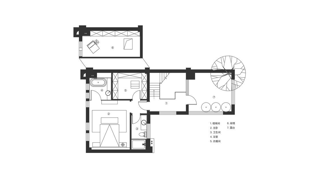
▲三楼原始平面图
▲三楼改造后平面图,改造空间重点:三楼整层为主人房使用,主人房由卧室、衣帽间、私密阁楼、卫浴、屋顶花园组合构成,独享一份私密的惬意。①泡澡区与卫生间采用分离式设计,半开放式的泡澡空间又与卧室空间“流通”,用自然垂落的沙帘作为遮挡,半渗透的山景,无意间又为主卧室增添浪漫的气息。②在衣帽间和泡澡区上方利用空间高度,搭建阁楼增加主卧更多的收纳空间。
会客厅设计为围坐的形式,家人和朋友可以惬意的交流,自由随性的家具摆放,也难得一份自在。在装饰的表达上不特定风格形式,更多使用有机自然的材质,质朴的色调和舒适的家具反而让人感觉到内心的宁静和柔软。
非常注重设计细节的表达,在我认为设计细节并不全是施工细节,而是一种对生活人文的理解。一把摇椅一盏吊灯,吊灯里洒出的温暖灯光,人们聚在这里,完全放松身心,喝茶聊天。这也是想从设计上想带给业主的生活品质。
在设计上并没有过多的处理电视墙,而是利用建筑本身的结构优势,增加一个真火壁炉,舒适的壁炉,宽大的沙发,灵活又可以自由移动的单椅,各种复古织品制成的抱枕,开敞充足的活动空间,打开音乐,点燃壁炉,和朋友家人一起追综艺闲话家常。
电视墙的拱形窗也是特意设计的,原本的建筑这里是没有采光的。但我认为室内装饰和建筑空间本身是分不开的,便用一种更自然不刻意的手法将装饰和建筑融合,地台上也可以坐人,形成一个舒适安宁的自我角落,同时也和客厅的沙发区形成大围合,在空间中“流通”。
错层的休闲茶室与会客厅也相互连贯,流通,满足家人不同的休闲需求。
摆放2.4米的大茶桌,这里不仅采光优良,大长桌也为小朋友提供了手工空间,大人们喝茶在客厅聊天,小朋友便可以在长桌上做手工玩乐。大人们在长桌上喝茶,小朋友们可以围着客厅打闹玩耍。其实这里也是客厅的配套空间,公共共享,实现家人不同的空间需求。
一杯茶、一本书,逃离喧嚣,都市中求得一方静谧,有种小隐隐于野,大隐隐于市之感。
拆掉原始一楼客卧将餐厅延展扩大,并设置"L"型落地窗,引入更多的室外自然通风及采光,将餐厅打造成优雅花园式餐厅,摆放1.6米直径的大圆桌,满足朋友及家人聚会时的用餐需求。落地门窗将室内空间引向户外花园,室内向室外延伸,花园向室内渗透。
软装上搭配部分复古休闲家具,犹如欧洲乡村的早晨。设计上对氛围的把握,让餐厅既现代又复古感,又能休闲舒适。大面的餐厅艺术挂画,更显活色生香。
西厨空间与阳光餐厅融为一体,也是餐厅的一部分,兼具休闲与实用,西厨高柜满足更多收纳。
岛台部分专门设计了高一些(8公分)的挑台作为吧台功能,这样整个岛台在空间上的比例更加和谐有层次,岛台两边都可以坐/站人沟通交流,这样的设计也为西厨和餐厅带来更多的家庭成员间的交流沟通。也非常适合朋友欢聚。
餐厅外面就是户外花园,推开餐厅的玻璃门,便能感受更多阳光与自然,开放式的空间设计使得室内室外相得益彰,既流通又灵动。
主卧延续着整个空间的调性,卧室顶面设计为人字形的屋顶,木制的造型、粗糙的艺术墙面,凸显乡村的度假的感觉。高挂的罗马杆纱帘,柔软的棉麻质感床品,也为卧室带来浪漫的氛围。
主卧的台灯作为氛围灯光,我选择3000K色温的灯光效果,十分温馨舒适。这一设计细节,也为业主在生活上增加更多体验感。
相关案例推荐
桐里设计Studio
设计师相关作品

粤公网安备 44010602000156号