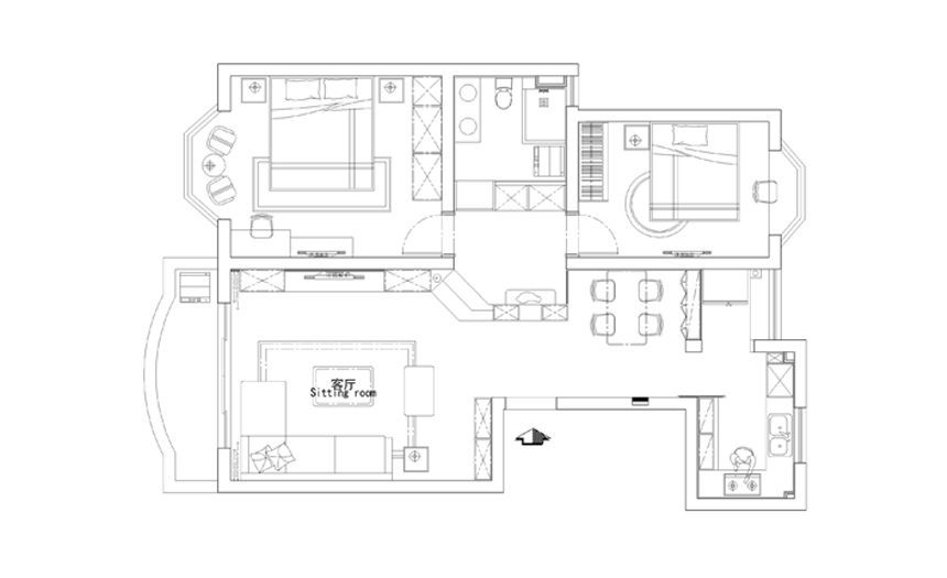
前言: 项目名称:保利叶之林 户型:两居室 风格:现代简约风格 总造价:11.6万 客厅设计: 现代风格家居重视功能和空间组织,注意发挥结构构成本身的形式美,造型简洁,反对多余装饰,崇尚合理的构成工艺,尊重材料的性能,讲究材料自身的质地和色彩的配置效果,发展了非传统的以功能布局为依据的不对称的构图手法。无论房间多大,一定要显得宽敞。
相关案例推荐
网友评论
孙进进
设计师相关作品

粤公网安备 44010602000156号