前言: 这是一套北欧风格的装修案例,高颜值拼色墙提升空间格调,再缀以软装配饰丰富空间细节,区别常规。希望这套装修案例能给大家带来一些灵感。
这个空间是屋主喜欢的其中一角,尤其是阳光正好的下午,清风正温柔,忙忙碌碌的生活,琐碎繁杂的事务,在这一刻放慢了脚步。窗前的阳光透过窗帘的间隙随意地洒在房内每一个角落,给自己沏一杯沁人心扉的香茶,浅酌慢品,用心去享受惬意的下午茶时光。
家是人们对生活的一种情感表达,一种生活态度的追求,而现代轻奢是一种最终生活品质的生活方式,它代表着对品质生活细节的追求。
茶余饭后全家围在长桌聊天、看书、学习,享受家庭时光。与餐桌紧密相连的手作区也是这个空间的亮点。
餐厅,并非只是厨房的衍生品,它更是一家人享受美食与情感交流之所。餐桌上的微景观让食物和酒饮别有一番风味,也让这个家多一点自然的味道。
卫生间是家里使用频率非常高的空间,没有装修好就直接影响着居住舒适度。
卫生间是我们日常生活中都会使用到的功能区,卫生间设计时,一定要注意卫生间的实用性,并且要合理巧妙地利用有限的空间。卫生间是一个追求舒适的地方,只有整洁统一的色调才能给人以最舒适的感觉。
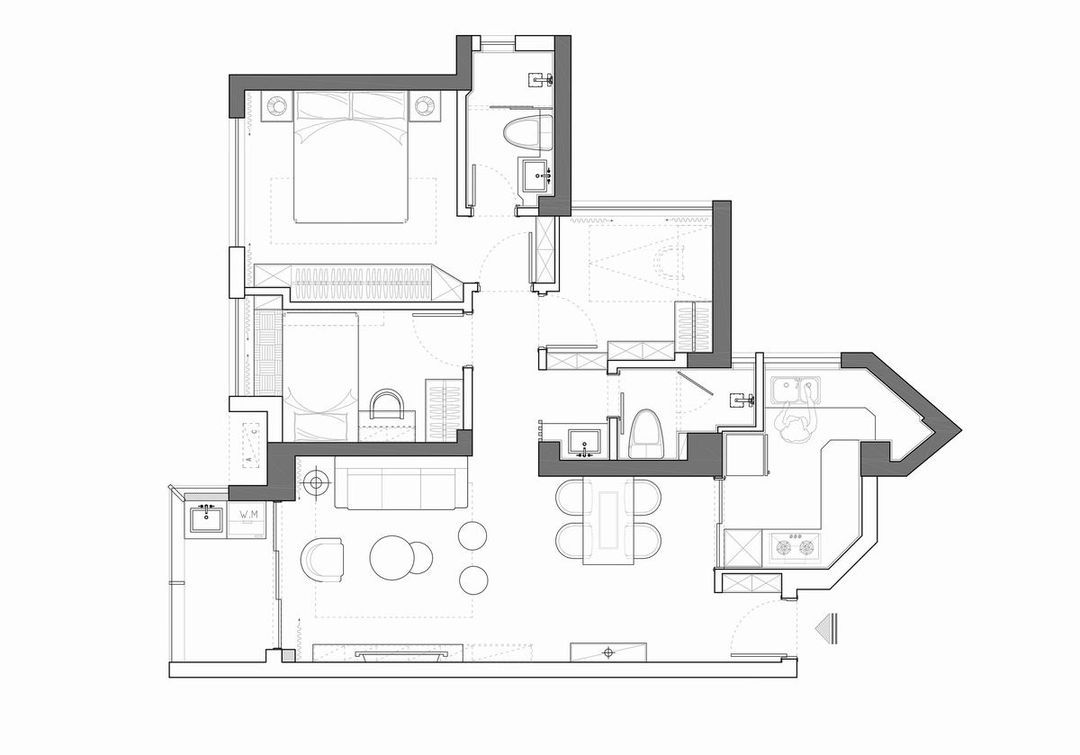
主卧光线充沛空间宽敞,被划分为睡眠区、衣帽间以及梳妆区,整体的搭配贴合空间主人的日常需求。
对于喜欢低调生活的屋主来说,个人空间希望可以尽量简约,因此除了背景墙硬包+金属线条的造型,主卧几乎并无装饰,床头两边不对称吊灯带来变化,驱走单调。
相关案例推荐
张永忠
设计师相关作品

粤公网安备 44010602000156号