前言:
项目基本资料
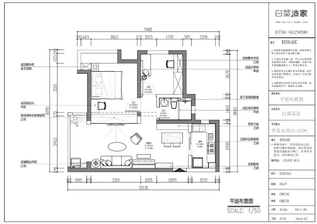
项目地址:华发水岸
作品名称:亚舍
项目面积:67平
户型结构:平层两房一卫
设计施工:白菜适家
合作模式:全程托管
主要材料:生态饰面板、假小白砖、芬琳诺娃彩色墙面漆、亦安软配
竣工时间:2019/10
设计师感言
《哑舍》是玄色出品的小说作品。
在2013年改编成漫画开始连载,讲述的是一间名为“哑舍”古董店里,每一件古物自己的故事。
就像亚当的家一样,每件摆件、每个饰品、每一张椅子....都有属于它们与她专属的故事。
本案设计的主旨在于适合自然法则的协调,让木质在有限的修饰下尽情呈现出原始的色泽与质感,让生活散发出清香气。
房子,是工作一天,可以卸下包袱的地方,偶尔的心灵放空之地,不想要过多繁杂装饰,干净明朗,舒适惬意就好。家里的每一件小物件都在表现着小女生可爱的少女心,享受着被宠溺的充实感,也带来一缕慵懒之意,与美好不期而遇,这就是少女和家的味道。
这个家充满了更多属于业主自己的生活基调,它便成了独一无二。
客厅整体空间温暖不失自然,采用浅灰色与木质色彩叠加,给室内带来一种温暖轻松的视觉效果,带来视觉的放松与身心的休憩;落地的大阳台门让空间有了充足的光照,慵懒的夏日午后可以躺坐在珊瑚红豆包里偷得浮生半日闲。
进门映入眼帘的,是我们的餐厅,多功能的卡座让空间利用率更高.
墙上定制的软木板,将游玩拍的美照钉上去,慢慢把生活记录在上面,也多了一些生活的仪式感。
左边则是一面到顶的鞋柜,底部悬空式设计能更好的遮掩日常穿着的鞋子,分类收纳更加整齐,中空部分则可以放置些小摆设和存放日常使用的钥匙、包包等小物件。
主卧原本的布局比较局限,正常的摆放,让衣物储物的空间和空间的利用率都不高。我们将主卧和客厅电视背景墙之间的墙体进行拆除,用满墙的衣柜和水泥板来做两个空间的隔断,当然考虑到隔音的问题,我们采用了专用的隔音棉。
在衣柜的背面,是客厅的电视背景墙,嵌入式的电视柜让客厅的空间得到解放,这样的设计,让两个空间各取所需,也大大的满足业主对于大衣柜的需求。
相关案例推荐
白菜适家空间设计
设计师相关作品

粤公网安备 44010602000156号