前言:
项目基本资料
项目地址:华发山庄
作品名称:瓦尔登 · 湖
项目面积:170平
户型结构:平层四房三卫
设计施工:白菜适家
合作模式:半包模式
主要材料:卡布基诺灰大理石、墙布、芬琳诺娃彩色墙面漆、水曲柳面板、玫瑰金不锈钢。
竣工时间:2019/04
设计师感言
业主非常注重生活品质和风格设计,想要一个成熟有质感的家。
起初,业主在网络上看过我们的作品,也对我们有一定的了解,经过多家公司对比,最终决定将设计与施工一同委托予我们。
在装修过程中,他们越来越清晰地明白自己的想法,从设计到家具,从材质到选色,都植根于内心的态度与欢喜。
设计师则遵循他们的意愿,运用大面积的暖灰色调、石膏线与金属搭配木饰面墙布的点缀,打造现代美式轻奢风格,营造出低调舒适又不失高贵雅致的格调。
设计师与业主共同精心挑选的家具与配饰,给这个家注入了不一样的精彩。
祝愿业主糖糖在新家享受瓦尔登湖般的宁静而又幸福的生活。
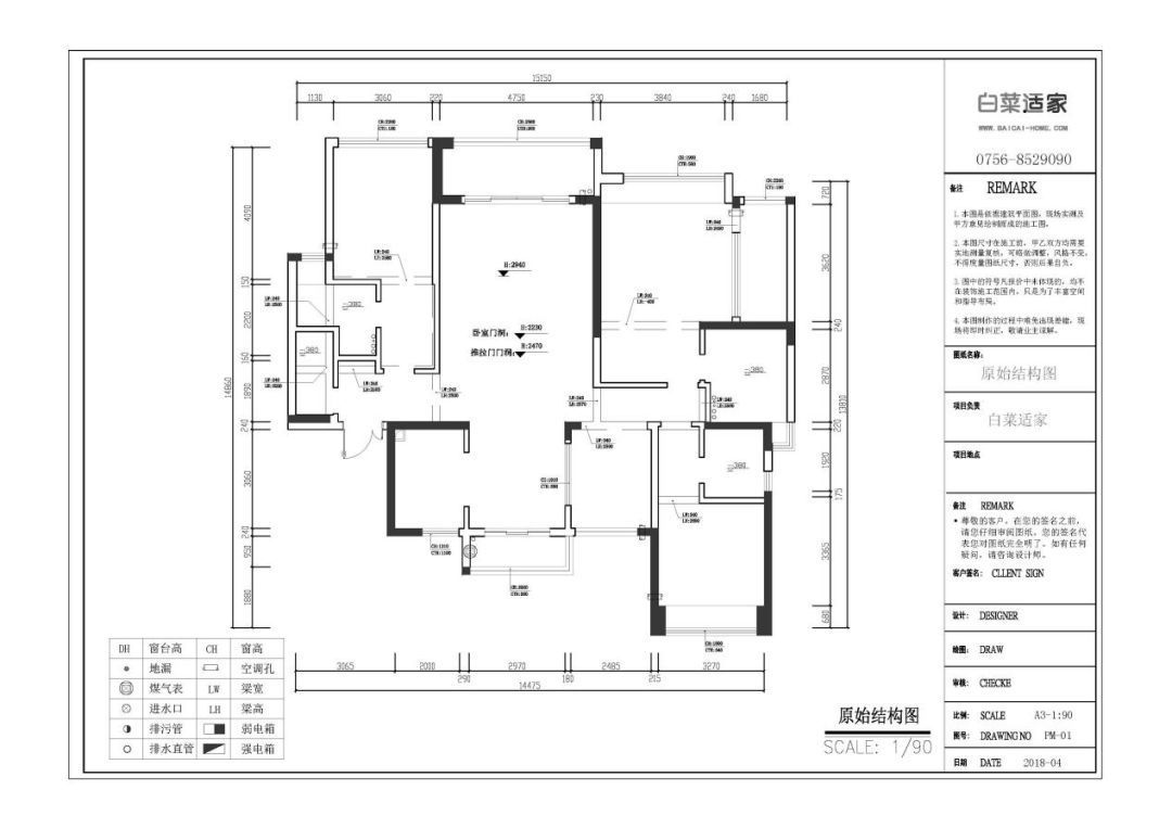
▲ 原始结构图
▲ 平面布置图
非常标准的一个户型,南北通透,要想有餐边柜,也不想占用餐厅位置,书房也要有足够舒服的空间,其次就是女主人想要一个私人的衣帽间。
主要利用墙体进行了改造,厨房的全隐藏式门,书柜与餐边柜的共用位置,不影响餐厅空间,利用主卧墙体极限的控制衣帽间的位置,满足女主人需求,剩下的就是需求与美观上的细节。
整洁优雅的就餐环境,才是进餐该有的享受。餐厅里,线条简洁,颜色温馨,美式餐边柜与餐桌餐椅的搭配十分协调,同时厨房门还是全隐藏式的设计。
干净敞亮的烹饪空间,才是厨房该有的样子;利用感应式灯带,安放在吊柜之下,告别黑暗的空间,生活更加方便。
白菜适家空间设计
设计师相关作品

粤公网安备 44010602000156号