前言:
主设计师丨Designer:山由
项目名称丨Project Name:贵安新天地
设计机构丨Designe Agency:引力设计
项目面积丨Project Area:138平米
摄影丨Photo:王圣杰
“家不单是身体的住所,也是心灵的寄托。家要体现居住者的性格,家要有自己的温度,家就是一屋两人三餐四季。”
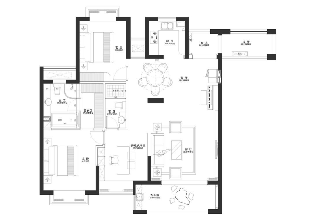
本案的业主是一对四十多岁的夫妇,初次见面时对家要装成什么样毫无头绪,经过与业主一系列的沟通后,了解到本套房子是用于度假。
于是我根据户型建议保留两间卧室,把次卧做成书房,设计成开放的空间,我把卫生间的位置也做了调整,让原本昏暗无光的餐厅一下通透起来。
原始布局:
1:厨房面积不小,但是开门位置导致其利用率不高。
2:餐厅和过道共用,生活不是特便利。
3:过道昏暗无光,且梁位众多。
4:过道直通主卧门,私密性不佳。
改造布局:
1:拆除玄关和餐厅之间的墙体,增加南北的通透性。
2:把卫生间移位,腾出餐厅的空间,把冰箱放到原餐厅处,增加厨房的操作空间。
3:把书房设计成半开放空间,客厅和书房打通,让空间视觉效果更通透。
4:拆除阳台的门,增加通透性。
5:主卫改变开门位置,与主卧之间做成半隔断,增加卫生间的采光。
本案由于是度假来用,所以业主希望在控制造价的前提下,又有好的视觉效果,所以全屋的瓷砖都是在TB上选购的自带拼花效果的艺术砖,省钱的同时效果也很不错,还省了一大笔的人工费(要知道这种拼花的工费是高于普通贴砖的价格的)!
这就是进门那个长条的过道,说实话刚看到这个户型时山由很诧异,开发商的脑洞实在无法理解,把过道放在邻居的厨房外面,即使中间有个通风井,山由心里还是觉得怪怪的。
客厅大面积使用白色护墙板,电视背景采用艺术砖相结合,吊顶也只做了简单的处理,使得空间干净明亮。
这是客厅看向餐厅的视角,原建筑中间有一个大柱子,山由采用一半做护墙板,上面刷白的方式来降低它的存在感,改造后的餐厅的通透感好到爆,跟厨房的互动也更方便。
卫生间改位后,真正实现了南北通透的效果,而且把冰箱放到原餐厅位,使得厨房的操作空间增大,在客厅拿取饮料什么的也更便利了。
印花壁纸也是TB选购的
来几张细节照
本案的配色大多采用亮色系,姜黄色的餐椅,白色大理石餐桌,美式的风格中也混搭着一些轻奢的元素,相得益彰。
挂灯的位置上是原建筑的一根大梁,经过改造,藏在吊顶里,削弱了它的压抑感。
书房挂画位置是原承重墙,利用柜子把它藏起来,削弱了它的边角,储物空间也得到提升。
书柜内部设计了灯带,方便看清书本,同时也更美观。
这是客厅看向书房的视角。
相关案例推荐
山由
设计师相关作品

粤公网安备 44010602000156号