前言:
将中国的传统文化融入到
现代人的生活方式中
使之既能传达出中式的传统神韵
又能符合现代人的生活与审美需求
兼容并蓄,追求创新
无疑是对新中式风格最好的诠释
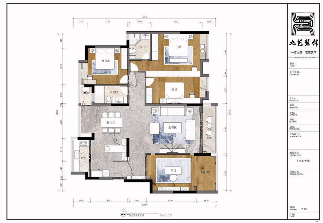
户型图
把入户打开之后整个空间变得敞亮大气,跟楼上楼下瞬间不一样了,现在客厅的感觉才有了大宅的感觉,整个空间也活了
原格局没有大宅的感觉,入户玄关光线很差
相关案例推荐
网友评论
眭力凡
设计师相关作品

粤公网安备 44010602000156号