前言:
本案业主为一对90后新婚小夫妻,房子是上海砖混结构的老房,位于六层加一个阁楼,承重墙较多,所以改造比较受限。
初次见面时,业主就给了我一本十多页的装修需求小本本,要求罗列的非常细致,其中的第一条就是“要充分考虑到家中有猫”,所以我在方案开始时就是先做各种关于“猫”的研究,习性,行为方式,以及猫砂盆的位置等,在后期材料选择上也要十分注意。
所以设计围绕“两人一猫,四季三餐”这个主题展开,我希望将“猫”变成家庭成员之一,也有属于它自己的空间。另外,女主人从小练习芭蕾希望家中可以有一个练功区,在50平的空间里,还要拥有一个能同时容纳两人办公的空间,一个次卧室,再加上小空间的收纳问题,让方案难度直线升级。
一层原始户型图,砖混结构老房,多数为承重墙。
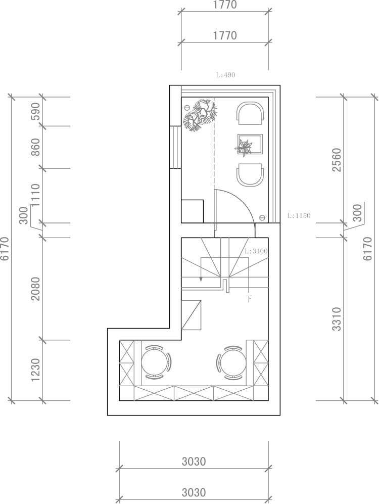
二层是加送的阁楼和露台,虽然面积不大,但是五脏俱全,有一种城中别墅的感觉。
改造后的方案将餐厅纳入厨房,改变了客厅,卫生间与厨房的动线关系,使得卫生间干湿分离,厨房拥有了双开门冰箱和高柜区,同时改善了通风和采光。
二层为两人的办公区域,利用原始3.5m的坡屋顶优势,隔出了第三层客卧区。
入户后的第一个角度,注意看空调是无插座无排水管的哦。
客厅沿墙设计了一整面的组合柜,其中第一,二组为衣帽柜和鞋柜,收纳出门常穿的衣物和50多双鞋,底部的开放架用来放拖鞋。楼梯故意暴露结构的设计非常有建筑感,下方为暗门可以用来储藏家中低频使用的物品。
第三组柜是一个猫的乐园,小猫可以通过底部圆洞进入,最后爬到高处,因为猫的习性是喜爱攀爬和居高临下。中间是主卧隐形门,第四组柜为女主练功区。
练功区延续了拱形,中间的“十”字装饰条,实为掩盖玻璃拼缝的压条,充满几何感的组合柜整体形成“三小一大夹一方”的韵律感,拱形的运用给新婚小夫妻增添一丝趣味和浪漫感。地插是为了日后万一拆除把杆,变成电视区的备用方案。
沙发一角,可以和文末的效果图做对比,连抱枕都是100%还原。
从客厅望向卫生间干区,用金色拉丝不锈钢做的拱形门套,呼应了整体造型。两侧的壁灯设计,让每次进出卫生间都多了一些仪式感。踢脚线是定制的纳米踢脚线,可以刷同色墙漆,增加统一感。
从卫生间望向客厅。练功区的镜面设计增大了空间,地面是强化复合地板,非常抗抓,墙面用了2019pantone年度色橘粉色作为空间的主调,明亮温暖,也非常贴合两人的年龄和气质。
壁灯细节
附一张客厅柜的施工图,难度五星。
厨房全景,将墨绿色水磨石延续到墙面,增强空间感,搭配哑光灰烤漆门板,金色圆点把手也是特意为客户定制的,作为点睛之笔。热水器柜做了底部开孔设计,会比百叶门好看很多。
改造后的厨房可以容纳一台双开门冰箱,一组高柜,内嵌微博炉和烤箱,非常实用。厨房没有任何吊顶,全部设计了明装筒灯做主照明,上柜下暗藏了灯带作为重点照明。
高低操作台的设计更人性化。
厨房一角。
卫生间干湿区间用的是长虹玻璃镀膜,防爆,透光不透影。墙漆为立邦防水漆系列。
推开移门后可以使北侧的光和空气,和卧室对流,南北通透,完全改变之前闷热潮湿之感。地面采用墨绿色哑光水磨石与墙面撞色,复古又洋气。
湿区的壁龛非常实用。
从楼梯望向干区,也是我非常爱的一个角度。
卧室硬是在有限的空间内做出了一个衣帽间,来满足女士们的仪式感。床体,床头柜,床头背板,都是定制,一为了整体感,二床体的高度设定为300mm,也是经过前期沟通,可以用来存放两人26寸的行李箱。
猴子灯来自seletti,墙纸来自cole&son,床头做了灯带设计,光线有利于夜晚看书玩手机。
阁楼全景,这个角度可以看出一层,二层,三层的关系。二层作为书房,层高为2.2m,楼板是用50x100mm的方管现场制作,后期定制饰面板做包覆的。三层设计了黑色铁艺的泳池梯,非常有艺术感。注意看楼梯的踏面每一步都挑出立板20mm,是为了在有限的空间里,尽可能的增大踏面,更舒适更安全。#书房#小户型#收纳#阁楼#tomdixon#铁艺#楼梯#书架#书桌#椅子
吊柜底部全部内嵌灯带,办公可以不用台灯,桌面更加干净。#书桌#椅子#书房#阁楼
一只可爱的白猫。#书房#楼梯
客厅柜的做工细节,弧形部分都是现场封边,不锈钢件的连接处也非常细致。#电视柜#鞋柜#橱柜#不锈钢#猫#猫架
这个角度拍楼梯非常美,注意看白色框框部分的踏步设计,是由于转角的休息平台到通往露台的门槛落差有近700mm,在无法改变总体尺寸的情况下,设计这个连接踏步,解决了问题。#楼梯#大理石#原木色
(照片来自客户实拍)#阳台#露台
相关案例推荐
张通
设计师相关作品

粤公网安备 44010602000156号