前言:
我喜欢少年感这个词,或坚定或迷茫,或温柔或冷漠,或开朗或敏感,但都有原则有锋芒,内心始终善良。也酷也哭,认真也轻浮,比阳光炙烈,比白雪轻柔。
少年感的外衣是矛盾的综合体,但内里都一样的。对所有的事都好奇和天真,对自我保持永不满足的探寻,并认真固执的按照自己期望的样子去生活。少年感无关年龄,无关阅历,是一种很难长久维持的品质。
难得我们遇到这样一位极具少年感的女业主,重度乐高迷,男孩子气却对宠物无微不至,果敢,大步流星,行动力十足,对家的想法精准,毫不拖泥带水。
业主需求:
大部分时间一个人居住,偶尔父母会过来小住;有很多乐高,需要足够的存储空间;平时做饭比较少,有宠物,风格简约随性不要落于俗套。
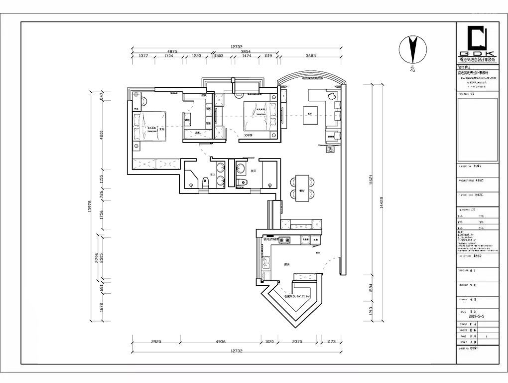
户型调整:
① 将原先零碎的厨房空间墙体拆除,重新划分一个方正的开放式厨房,异形部分隔出一个储藏间,存放乐高。
② 将原先的三居改成两居,扩大卧室使用面积,居住更舒适也增加储物可能。
本案的客餐厅区域在视觉上是一个整体连贯的长条形大块空间,沙发一侧长达11.6m墙面更是直接从入户口贯穿到底没有阻隔,设计师采用了蓝白撞色+石膏线的方式丰富墙面,很好的划分出功能区,同时避免空间的单调乏味。
蓝白搭配一般倾向于表达年轻、文艺,像白衬衫和牛仔裤,总让人轻松舒服。而这里我们用了深蓝和米白,更显质感,让轻松的氛围捎带重量。
驼色的皮质沙发、金色落地灯和壁灯,又从不同材质的层面缀以空间时尚、现代的气息。
以电视背景墙为主视角的另一面,棕色单椅以及暖木色电视柜与米白色的背景十分相衬,添了一些温度与柔和。
餐厅区域追求整体干净的区块和线条,黑色烤漆的餐边柜将视觉聚拢,灯具餐桌椅轻盈而有质感。
实木宽板餐桌,纹理更加完整舒张,铸铁腿的设计和加工有着十分的匠心,既有树木遒劲的力道,也在审美上与实木板之间产生微妙的共鸣,沉淀岁月,十分耐看。
燕尾榫,对木板进行二次加固,这一颇具古意的手法,也为桌面和凳子带来新巧的心思。
相关案例推荐
高迪愙设计事务所
设计师相关作品

粤公网安备 44010602000156号