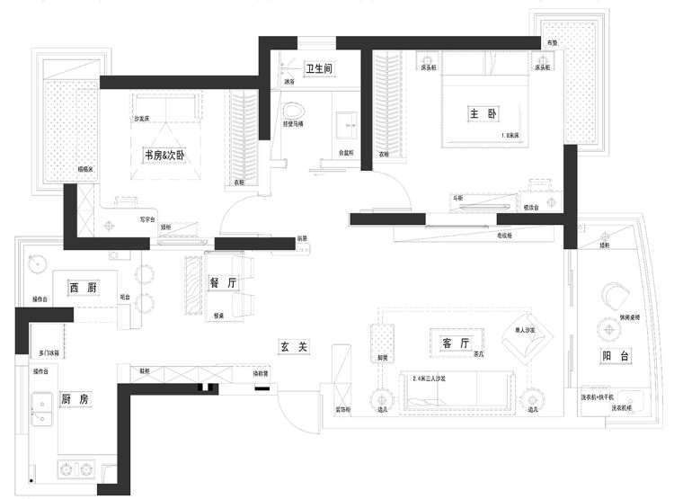
前言: 业主是一对新婚夫妻,住房刚需,买房耗费了大量的财力,因此留给装修的预算就一再缩减,所以需要设计师在保证功能齐备的基础上尽可能用最小的成本打造出年轻活力的气质,简洁大方又不失质感,因此在这套案例中,设计师大量采用了灰白木的自然色调,使得整体空间剔除了浮躁,打造了一种安定宁静的基调。而几抹清新色彩的单品点缀,衬托年轻的气息,活跃了空间精神层面的表达,进退有度的诠释出现代生活主张。
相关案例推荐
网友评论
翰高设计
设计师相关作品

粤公网安备 44010602000156号