前言:
这是一套位于上海虹口的顶复,2000年后的小高层小区,房屋间距小,人口密度少,小区绿化好加上顶复的格局和超大的露台,属实“结庐在人境,而无车马喧”的闹中取静理想居所。
我们的业主夫妇带着他们12岁的小朋友就居住在这样的环境中。作为外企高管的业主夫妇在平时繁忙快节奏的工作环境里,在下班回到家之后想要拥有静谧的生活环境,这也是当初他们定下这套房子的原因之一。为了满足男主爱好手办和电影器材以及小朋友爱好的乐高,需要足够的收纳、展示柜;我们的女主安妮则喜欢烘焙做料理,所以对于厨房的设计安妮表示了十分的看重;喜欢读书,家里也有很多很多书;喜欢种花,对于露台她也很有想法。
根据业主的需求,设计师做了如下改动:
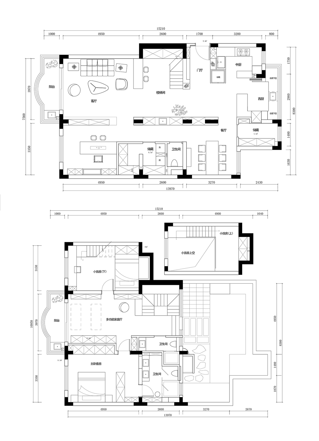
①增加厨房空间,中西厨加小仓库;
②一楼南北、东西两条动线要流畅,空间开阔,楼梯格局步数规划合理;
③二楼增加一个卫生间,中间的厅用来做书房,独立又宽敞;
④主卧多多的衣橱来增加收纳;
⑤儿童房做的更有趣味一点,增加阁楼,合理考虑阁楼上下动线和便利,同时满足小朋友书籍储藏和运动的需求
原始户型本身空间南北通透,户型很规整,一楼二楼都有厅,而且二楼的层高高,露台面积也大。
但还有一些需要设计师去优化的地方。
①比如一楼的厨房和卫生间面积较小,而且卫生间是暗卫,
②原始楼梯的结构不舒适,
③二楼只有一个卫生间,且房间面宽偏小,整体户型东西向视觉动线不流畅。
【户型改造重点】
● 将原户型一楼的卫生间位置扩展改为中厨,原厨房改为西厨,西厨边上独立储藏室
● 一楼暗卫压缩,房间打通,和客厅形成通透格局,卫生间二分离多出一个独立的衣物洗护空间
● 弧形楼梯改为U型折梯
● 二楼利用北厅和主卫部分空间,多增加一个明卫
● 主卧西墙利用南厅部分空间做整面柜子,增加收纳
● 二楼厅双向书柜,和主卧门,小孩房门保持整体设计,东面书橱镜面移门供运动塑形使用
正对入户门的是一条6米长的芬萨定制柜,这个柜体的设计是亮点所在,有许多设计细节和小心思的组合。细长开放格,加摆件形成宣贯端景的视觉效果。
背面在餐厅则是红酒柜,正对楼梯起步,则是双面通透的植物景观开放格。
弧形楼梯改U形折梯,梯步的设计取材便宜的中国黑烧毛面,立板则是纯白岩板,视觉上有类似悬浮的效果,墙面搭配石皮,行走其间,特别是从上往下正对景观柜的高大绿植,有宛若穿越“山”林的视觉感和心理感受,也是作品主题意义所在之一。
客厅放弃原始的电视背景墙,空间全部打通,用悬浮背景墙做激光投影屏幕,下面做蒸汽壁炉。
悬浮背景背面是25钢架基础包覆木板西能成的储物柜,需要事先精准绘制25*25钢架再包覆木板。
将原户型卫生间位置扩展改为中厨,原有厨房改为西厨,旁边增加厨房专用的独立储藏室,增加收纳的同时也使得空间利用更合理。
西厨边上有独立储藏室,栅格式隐藏门,自成一景。
主卧没有电视,让卧室回归它最原始的诉求-睡眠。西墙利用南厅部分空间,做出整面柜体,柜体和墙面衔接也做了门板的材质,整体感更完整。
隔断卫生间的衣橱则做了镂空的设计,依然是取景借景的概念,线性灯的光影让空间得以穿透和呼吸。
下沉无挡水,下沉交接处带钢筋现浇加湿贴,保障了卫生间的精致也杜绝了施工隐患。墙面阴角嵌入式挂画线,对墙顶精确度要求极高,简单无挂耳的窗台板,保证功能的同时尽量让人忽略他的存在。
超窄收边条,超窄脚线,悬浮顶,悬浮踏步以及分缝对齐、上下对齐、居中对齐等翰高精细工艺的体现。
墙体纯白哑光无缝处理,视觉通透,干净清爽得让人觉得洗浴和方便是舒适享受。
二层厅双向书柜,和主卧门,小孩房门保持整体设计,东面书橱镜面移门供运动塑形使用。整个开放空间是一个整体,次卧的门特意选用了纯白幽灵门,弱化上楼梯整面墙在空间的分量感。
楼梯侧面做整面墙的展示柜,增加收纳的同时还可以展示业主的各种收藏。
相关案例推荐
翰高设计
设计师相关作品
编辑精选

粤公网安备 44010602000156号