前言:
本案是一套小复式公寓改造,屋主是个身高比较高的小姐姐,独居生活,喜欢简约自然、奶油色,带有松弛感的空间氛围;以及酒店式的房间布局,储物空间要求多;?
以居者为主体,以自然、空间为引,?向外做减法、向内做加法的生活哲思;
一个人的生活场里自由舒适的空间,?细腻且温柔优雅的松弛感,?回归纯粹,恰如初见 ;
我们以极简无主灯硬装为基调,通过调整楼梯方向,以客餐厨一体交互设计释放空间感,灵活自由的布局,具有社交属性的流畅动线,结合自带温馨感的奶油+原木色调,再借助窗外自然景色做背景,让家时刻呈现轻松自在的氛围感;
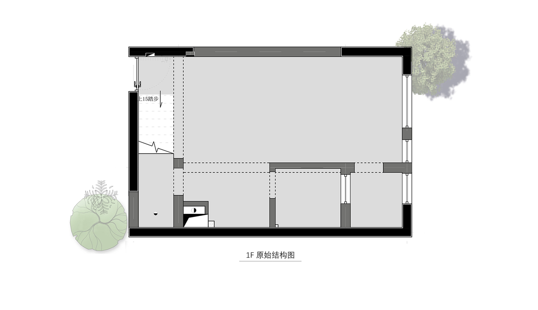
1F?改造前户型解析:
1.进门空间缺少储物;?
2.南北通透户型,客厅需重新规划布局打造慵懒放松感;?
3.如何合理规划厨房,与客餐厅做社交属性的空间布局;
★ 改造后设计亮点:以居者为主体,自然、空间为引,打造轻松自在的松弛感;
1、入户改变楼梯方向,玄关增加储物+换鞋凳,弧形楼梯解决原楼梯踏步深度问题;?
2、客餐厅一体化设计,把电视机结合餐桌做一体化设计;
3、开放式厨房一字型台面,打通原来小阳台,增加操作台面,与客餐形成社交平台;
?4、一楼预留卫生间,楼梯的重新设计给一楼增加洗手台盆的功能;
2F??改造前户型解析:
1、卧室/衣帽间/梳妆台/办公书桌多种功能需求,增加收纳;
?2、干湿分离卫生间的规划;
★ 改造后设计亮点:
1、原储藏间作为办公区来使用,使得睡觉和办公区分开来;
2、步入式的衣帽间,两排衣柜增加衣服的收纳;?
3、主卧1.5米地台式床+屏风+矮柜组合,满足主卧多种功能及隐私性;
4、卫生间做干湿分离设计,功能互不影响,;
入户门开始,拆除原木质楼梯,调整方向后利用叠级设计手法,在入户门口增加了鞋柜功能,与楼梯相结合形成一体化;左侧墙面则设计了洞洞板和穿衣镜,满足随手挂东西以及出门前整理妆容需求;
简约
绿植
现代
灯具
客厅
自然风
沙发
艺术漆
隔断
瓷砖
窗帘
原木
客厅灯光照明系统,动态展示~
一楼客厅设计上,把原厨房和小阳台墙体拆掉,保留了承重柱点,通过客餐一体形式,即高效的提升了利用空间率,又能在满足屋主的功能需求下,让空间具有社交属性;
简约
绿植
现代
客厅
自然风
沙发
艺术漆
隔断
瓷砖
原木
客厅地面通过抬高150mm做悬浮地台+内嵌灯带设计,有效的划分了功能区,周围一圈灯带也让空间充满了温馨氛围;地面上选用了奶油色系的地砖,美缝根据瓷砖颜色采用环氧彩砂马贝调色;
吊顶采用无主灯+弧形设计,顶面灯带从楼梯前口贯穿到客厅,吊顶两侧的圆弧与柱点两侧的圆弧形成呼应;
摒弃了传统客厅布局,没有做电视背景墙,配上单人沙发以自由灵活的摆放,营造一个很慵懒、放松的氛围感;
大面积的窗景作为背景,也为室内空间带来了怡人的自然气息;
餐厅利用拆除后的承重柱做拱形门洞造型,以餐桌+吧台+餐边柜一体式设计,正好把柱点下口包住,还设计了放置投影仪的位置;
整个餐桌桌面选用岩板材质包裹,与整体空间色调统一,会更加的干净整洁;窗外绿意与室内光影交织,自然光线就是最好的滤镜;
厨房采用开放式一字型上下柜的橱柜布局,同时把冰箱、洗衣机烘干机组合在一起,结合橱柜+家政区做一体化设计;?
考虑到洗衣机烘干机叠放起来的高度,和冰箱在一条线上,我们在洗衣机下面做了现浇抬高,同时外口包了木饰面,保证了外观材质的整体性;
结合实际需求和个人喜好进行个性化设计,确保了烹饪、用餐和社交活动的舒适性和便捷性;
利用叠级设计手法,让楼梯与鞋柜结合形成一体化;第一踏做了悬浮式+内嵌灯带处理,楼梯上吊顶把梁包住,顶面L型灯带贯穿到侧面墙体,与楼梯灯带形成呼应,让整个楼梯呈现温馨又干净的氛围感;
楼梯选用了微水泥与墙面涂料、鞋柜调色打样达到同色效果,线条与色调的统一让极简空间更凸显现代感的整洁和大气;
楼梯洞口上面则是用钢架+木饰面设计了隔板层,提高了原来楼梯洞的利用率,加上折叠楼梯的设计,在这里做了个可以冥想的休闲区;
过道顶面则是露梁处理,圆弧的设计与天际灯搭配,空间的氛围感得到了提升;通过斗柜和屏风结合划分了过道与卧室的功能区,也保证了卧室的隐私性;
过道里的衣帽间改成了开放式办公区,空间的氛围感得到了提升;通过斗柜和屏风结合划分了过道与卧室的功能区,也保证了卧室的隐私性;
转角来到开放式的衣帽间;
经过过道转角来到开放式的衣帽间,衣柜一门到顶的设计以凸显空间的极致简约;在衣帽间与卧室区域之间预留了轨道槽,方便后期装移门或者软隔断;搭配一盏小而精美的吊灯来满足不同照明需求,又能装饰空间;
绿植
简约
现代
地板
定制柜
灯具
自然风
衣柜
床
卧室
原木
卧室采用悬浮地台床设计,搭配感应灯带照明方便晚上起夜使用;床头以矮柜+整面玻璃做隔断,矮柜可以两面利用,卧室一侧做为床头木饰面靠背,过道一侧则用来储物;
简约
绿植
现代
飘窗
定制柜
自然风
床
卧室
窗帘
原木
床选用面对窗户的布局,小姐姐可以享受着每天被阳光唤醒的清晨;同时我们也可以利用床尾靠窗空间,增加了悬空式飘窗柜+梳妆台的叠加设计;
简约
绿植
现代
飘窗
地板
定制柜
自然风
床
卧室
窗帘
原木
因为小姐姐身高比较高,平时喜欢站着化妆,所以梳妆抬的高度则是根据小姐姐的身高及舒适度来量身定制的;
简约
现代
地板
自然风
干湿分离
浴室柜
镜子
隔断
瓷砖
原木
卫生间
主卫采用酒店式干湿分离设计,干区台盆选用亚克力一体式,即美观又方便清理;台盆柜上面做了透明的玻璃+吊镜,与衣帽间做了遮挡同时不影响采光;?因为没有传统的镜柜增加收纳,在台面左手边做了木色开放格加灯带;
卫生间与卧室的墙面通过玻璃砖和不锈钢做了窗景,玻璃砖采用15*15规格结合胶水密拼而成,工人师傅还要分两次密拼,防止一次密拼好不牢;通过黑色不锈钢的线框勾勒了空间的精致而利落的线条感;
卫生间采用墙地统一颜色及型号的瓷砖,保证了空间的整洁性;选用了壁挂马桶,即简洁又方便打扫卫生,同时在上面空闲区加了壁挂洗衣机,用于贴身衣物的清洗;
马桶与淋浴间采用一门到顶的玻璃隔断;顶面浴霸放在了淋浴区外面,避免浴霸的风直接对着人吹;
相关案例推荐
玖柞制作私宅设计
设计师相关作品
编辑精选

粤公网安备 44010602000156号